耗尽巨型地基
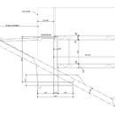
我已经拿到了我新房子的工程图纸(北卡罗莱纳州4区,陡坡)。在某些地方,上坡混凝土墙的底座超过了13英尺宽!我附上了一个有代表性的横截面。我应该怎样处理排水事宜?我打算在膜上喷上一层,上面有一个酒窝。过了地基/墙的连接处应该往下走多远?排水管的瓷砖应该放在哪里,仍然在基础的边缘?
GBA详细库
根据气候和房屋部分组织的一千个建筑细节的集合
搜寻及下载施工详情


你真的想删除这个列表吗,?
这不会删除你保存的文章,只是列表。
在beta站点预览期间,此功能已暂时禁用。
回复
凯文,
首先,关于排水的问题应该直接问你的工程师。
在如此陡峭的斜坡上,排水很重要——但不一定是你想的原因。
地下室的底座需要排水,以确保地下室保持干燥。但在我看来,你画的那栋楼里的所有房间都是高档的,所以地基不需要排水。
也就是说,你仍然需要一个场地规划,描述你将如何处理在暴雨期间从这个陡峭的斜坡上流下的水。
我只是想从那些以前可能处理过这个问题的人那里得到一些见解。
你的观点很有趣。然而,如果水从基础泄漏,它将进入爬行空间,这将不是一件好事,尽管封装。我想它也会一直延伸到下坡的墙上。
凯文,
从图中很难判断建筑最低层下的三角形截面区域是室外(这表明这是一个码头基础)还是室内(这表明这是一个爬行空间基础)。你最近的评论告诉我们这是一个爬行空间。
还有,这种情况下毛细血管破裂对我有好处吗?在墙壁的爬行空间一侧会有土壤,这可能会抵消毛细血管破裂带来的任何好处,但话又说回来,爬行空间一侧的土壤应该保持干燥(更干燥?)??
对于爬行空间外的等级和爬行空间内的等级,该图有点令人困惑。这是假设爬行空间是下桁架托梁下的三角形区域。
鉴于令人震惊的页脚宽度上墙,我怀疑,填补是有意对它的地方几乎整个高度。在非常厚的墙壁轮廓的顶部左侧悬挂的物体似乎是前门入口的混凝土垫(?)显然,对于上山的墙来说,一条实质性的排水路径是可取的。马丁非常正确地指出,工程师确实应该对排水提出建议。当地的土壤条件决定了水的行为,但记住海绵在整个表面上都能保持水分,直到水分满为止,这可能是有益的。过度饱和会导致水从土层的切口容易流出的地方流出。就像软海绵层放在硬海绵或桌子上。
在我居住的地方,土壤是非常分层的砂岩层和孔隙度差异很大的土壤。即使是在爬行空间中相对较小的斜坡,最终也会有水流出并聚集在下坡的墙壁上;当我第一次提议建造一个完整的地下室时,有人就警告过我。在房子建成后,这也是一个很难纠正的状况。在我的特殊情况下,这块地的斜坡几乎有四英尺宽。从地块上坡来的水通常会浸透大约5英尺长的混合剖面,然后在这一点上沿着砂岩基岩流得最快。我在地基周围有一个完整的排水系统,用于上层土壤产生的水。整个底部设置在基岩上,所以在基础周边,我坚持在楼板下使用所有洗过的石头来平整基岩。
令人惊讶的是,在我的地下室板下收集的水(在我的下坡角上排光)并不是直接来自上层土壤,而是来自基岩的裂缝。水是非常持久的,它会进入并穿过几乎任何一层。最初,基础人员想使用压实填充物,在石板下加一小层石头作为毛细血管断裂。然而,尽管每个人都觉得我很奇怪,但我一路上都在洗石头。如果我用泥土填充,砂岩就会流出水,大部分水会浸入其中,并停留在那里。石头不像海绵,让水通过。无论如何,我有了我梦想中的干燥地下室,尽管有三层,以容纳基岩。
冒着我对你提供的图纸的错误解释的风险,我建议你至少要在第二个下斜坡墙的内部有一个全宽的石头排水沟,出口到一个较低的下斜坡点。我将把它留给你,让你知道水流向哪里是否有HOA或湿地问题。我建议像安装氡气装置一样用塑料封住泥土。地基上的通风口很可能无法处理土壤产生的水分负荷,尤其是在像NC这样更温暖、更潮湿的环境中。我怀疑,考虑到你周围的坡度,爬行器内部土壤湿度的差异应该与外部相当。如果你在一个球形的山的一边可能会更干燥。如果你是在一个很长的斜坡上,那么我认为更有可能是水在土壤中流动会使这些值相等。再想想海绵,试着让一小块地方保持干燥。
至于上坡分级,我建议尽可能多地规划,把水引到房子周围的两侧。硬表面收集器,如车道,巷道和屋顶都需要仔细检查水出口点。显然,下水管应该有自己的排水管,与底部排水管分开。如果土壤的排水速度非常快,在上山墙的左边设置一个中等深度的排水管道,并在足迹的两侧排出良好的排水管道可能是有必要的。等待所有上山的水进入第一道墙底部的排水管可能太过分了。如果酒窝和脚底排水不够用的话,现在就做好预算可能比将来打扰人行道和景观美化要便宜得多。
希望这段相当长的论述对你有所帮助。
罗杰,谢谢你这么长时间的回复!爬行空间的等级将大致相同的等级外的足迹的房子。
爬行器肯定会被塑料包裹起来。我们已经开始按照你的建议进行排水计划,在水到达房子的墙壁之前就把水从道路/车道上引走。
我附上了工程师提供的基础详图。我不明白为什么下水道瓷砖比地基高4英尺。似乎是一个快速获得4英尺水的方法!他还特别指出,这里有大量的岩石,几乎没有土壤。这对我的钱包和我的园艺梦想都很不利。我有一堆问题要问工程师。感谢各位专家的评论。
哎呀,这是文件
斯佩尔曼先生,希望你不介意我再加一个不专业的2美分。工程师可能知道你当地的土壤能通过多少水。这种中线排水与我试图描述的是一致的。如果有什么不同的话,我希望在地基/墙壁相交处看到另一条更大的排水管道,以缓解内部爬行空间土壤线以下的积水,因为在一段短的“水平”段之后,你似乎在爬行空间内继续向下倾斜。我也会敦促,排水管放置在内部下坡墙/脚相交,以照顾水,将通过下巨型脚。也许它是指定的,但张贴的部分没有显示该区域。作为一个脑力练习,想象用饼干切割机(你的粉底)压在一个倾斜的楔形泡沫上,然后用水饱和。然后试着想象刀具内部的区域保持完全干燥。
我同意洗过的石头的数量令人沮丧。你所面对的垂直方向和我所面对的倾斜的基岩一样。我对12英寸升降机的压实说明有点困惑,因为我的水泥承包商告诉我,洗过的石头不能或不需要压实。因此,为楼板平整我的地下室洞几乎是一大笔成本,因为我们省去了在三个楼层上运行压实机的工时。浇上足够多的石头,在石板下面形成一个毛细血管断裂,这仍然意味着倾倒和耙石头,所以倾倒大量的石头,并将其耙平,一旦平衡。我不会去做所有的工作,我在所有的石头上设置3英寸的泡沫,或者我也设置了氡管。顺便说一下,如果你所在的地区有氡气问题,一定要把管道放在预定的爬行空间的密封塑料板下面。如果你需要更多的信息,可以问我,我会整理一些关于我翻新的另一所房子的笔记。
除了在土壤和地基之间提供一个巨大的缺口外,这种石头可能是唯一可行的填充挖掘的方法,而不需要特别的填充和压实。在我的雷达上更直接的是显示的相当极端的切割角度。底部沟槽将低于所示的倾斜切口12英尺,很少有土壤可以垂直切割而不冒坍塌的风险。特别是在挖掘过程中遇到大雨的时候。他们总是会这样,我不得不把我的地下室抽了四次才把排水管道缠上。不管怎样,出于保险和安全的考虑,一定要确认谁应该对这么深这么陡的伤口负责。
你是否真的需要把石头一直放在如图所示的高度,这是一个很好的问题。所示的土壤厚度约为8英寸左右,草可能还行,但正如你所注意到的,不是灌木。如果表面脱落处理得很好,我不明白为什么石头上的“顶部”层不能更像3英尺。可能不会说太多,如果有钱,但你将能够更自由地景观一点,而不是植物变干超快。
有一件事让我很困惑。你将如何处理地基外部的标高线?原来的斜线已经显示出来了,但是在角上发生了什么我猜是一个矩形平面形式。控制土壤的16英尺高的墙会有翅膀吗?加强梯田?只是问一下,以防在答案变成可怕的、没有预算的附加项目之前,现在可能有一些其他问题需要解决。
最后,我认为这个网站/论坛上的人不是沥青防水的大粉丝。这是你的口袋书,但橡胶版本可能值得考虑。应用前的固化时间可能是一个控制因素,我不确定。对于我来说,我使用了一种叫做Xypex的产品,它混合在混凝土中。这有点贵,尤其是当把它添加到50-60码的混凝土中时。我也有Grace防水膜在我的外部基础绝缘,所以我的腰带加背带裤可能是多余的,不要重复。关于Xypex添加剂,我听说过一件事;部分地区已批准作为地下室防水涂料的替代品。你可能还想查查凹凸点薄膜之类的东西。我想不起来是什么牌子了。 Not sure how that much rock will interact with the drainage board specced.
凯文,
当我看你的第一幅画时,我想我没有注意。我以为这是一座建在桥墩上的房子,我忽略了一个事实:房子的最低层低于地面,上坡一侧有一面混凝土墙。
这是一个非常棘手的网站。碎石是一种合适的回填材料,尽管罗杰可能是对的,你可以不压实碎石。我猜,工程师之所以担心沉降,是因为入口处有一块小石板——那块石板在10英尺厚的碎石上。
不管怎样,这都很棘手。一个错误的计算会导致各种各样的问题,所以我不会事后批评你的工程师。
好的,我和工程师谈过了。我让石头的数量大大减少,只剩下从立足点直起的面积。这使它减少到只有450吨左右。他说,压实的破碎机运行石基本上是不透水的,在地基上放一个排水瓦是没有用的。我不知道这是不是真的。