Feedback on 2nd floor cooling plans
I’m looking for feedback on my plan to cool the second floor of my house. I’m in zone 6. The main floor is heated and cooled by a Fujitsu 9k ductless, and the upstairs is supplemented by radiant electric heat. I found out last summer that while the heat migrates upstairs quite efficiently (the downstairs:upstairs heating ratio is over 9:1), it doesn’t work so well when cooling is what is needed (not surprisingly).
My two options are:
1)楼上另一个9K或6K无管,在大多数时间里打开门,尤其是在白天的时间
2)在大厅区域内隐藏的管道,直到四个房间。为此,我将建造一个舱壁以掩盖设备和管道。我们的天花板高8英尺6英寸。我在想一个4×6英寸或4×8英寸的后备线,在两个较大的负载室(〜1kbtu/hr)和3英寸的两个较小的较小的室(〜600btu/hr)上有4英寸的弹头。
我打算为这项工作做出一些原因。我认为这是一种奢侈品,而不是绝对需求。我付了专业人士来进行主层迷你拆分,尽管他们安装了错误,但在8个月的时间里,在他们弄清楚自己做错了什么之前,花了3次关闭和6次单独的访问。将这与两种选择的报价为$ 4000- $ 20,000,如果我自己这样做的话,$ 1200- $ 2000,这很难证明专业路线是合理的。
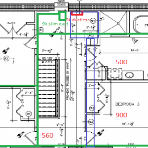
我已经附上了一个带有建议的安置的平面图。无管道上的无管道会在门打开的情况下提供足够的冷却,还是值得额外的努力来掩盖管道选项?该管道尺寸看起来足够吗?
GBA细节库
A collection of one thousand construction details organized by climate and house part
搜索和下载施工详细信息




Replies
If you are going through the trouble of installing the unit, I would go with a ducted unit.
I would try to tuck it further out of the way, even better go with one that can be mounted vertically and tuck it into the jog in the hallway (see attached). You can also run main trunk inside the rooms above the doors, this is much less visually noticable but more cutting to get through all the closets. 4" feels small for a room, don't forget to add on the heat from two people as well. For low static ducted units, usually for a larger bedroom I run 6" and 5" for the smaller ones.
对于穿过走廊的跑步,您可以使用3x10平方或6“/8”椭圆形管道,如果天花板低的天花板,则占用的空间要少得多。
Lot of the units have the option of changing the inlet to the bottom, this would save having to build a return air trunk.
Akos,
感谢您的提示。我希望低负载数将转化为CFM低要求,从而允许较小的管道。每个人的负载增加了约150btu,这是一个相当适度的增加(编辑要添加:大多数时候,人们在卧室中的大多数时候都会在较冷却时间,因此冷却负载仍将低于计算值)。如果我有两个6“和两个5”的分支管道,这是否意味着我需要按比例地支撑主干?如果我需要大于4英寸的圆形,我可能只需使用所有矩形管道。4x6英寸的产量几乎与6英寸的圆相同,并且会少得多。
走廊上的慢跑中有搁置。我可能会考虑删除一些以容纳热泵,但是在考虑空气返回时,我必须去除很多东西。
只是注意到图像没有附加(蓝色是我的图纸)。
9K头约为300厘米,为了保持速度和低损失,您正在寻找8x10躯干。通常,您可以将单元的最大流量大小,而不是实际负载。这也可以使您的净空有更多的净空,而无需您的管道开始唱歌。另外,不要忘记在夏季,二楼单元也将是您主楼层的冷却部分,而不仅仅是卧室。
您不需要返回后备箱。如果您可以将入口更改为底部(请参阅附件),则可以将过滤器盒间隔一点,然后将设备的主体用作返回。
每个人的热负荷约为400btu(明智和潜在),它的确增加了高效率的结构。这仅需要考虑到卧室。
拥有多个头而不是管道是有意义的吗?然后,您可以在每个空间中打电话/冷却。https://www.acwholesalers.com/LG-LMU24CHV-3-LMCN078HV-NG/p87718.html?gclid=CjwKCAiA0svwBRBhEiwAHqKjFhNTchQW75GkdFO0mbXBigv2gm43i9drA4acqlyOBoRWy_NqtKRY5xoCd3MQAvD_BwE
我认为,根据我以前在这里阅读的内容,负载太低了,无法允许多个头部。
What are the bedroom cooling loads and how warm (as compared to the hallway) can you tolerate?
The loads are (in BTU/hr):
bathroom: 500
master bedroom: 640
bedroom 2 and 3: ~900 each
走廊:560
I could probably tolerate maybe 4degF higher in the bedrooms than the hall.
As a rough ballpark of 320cfm for a 9,000 btu unit the cross sectional area for the trunk and for all the branch runs combined will need to be about 77 square inches. This gives you a 14 x 6 main trunk and 4 x 5" runs. Ultimately there should be a proper duct design done that takes into account the loads for each individual room, velocity and friction. The duct design is based on the airflow requirement of the equipment and the static pressure specified for the equipment, you need to make sure the cross sectional area of the duct can move the full amount of air that the equipment is moving. This will make or break the performance of the AC.