太阳能方向设计的权衡——艰难的决定
我有一个独特的机会,在我的地方为一个投资者建造一个净零规格的房子。这是一个1450平方英尺的牧场,在一块平板上有一个车库。建筑到“相当棒”的房子原则。密封、高R、三层玻璃欧式窗等。
我的困境是在外观吸引力、设计功能和太阳能光伏和玻璃的最佳太阳方向之间的权衡。
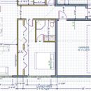
投资者想要“路边吸引力”,喜欢房子朝马路的长轴,长轴是N-S。我的解决方案是获得一个体面的南屋顶沿着“L”是由车库创建的一个髋屋顶。(见图)
唯一的问题是这把两间客房和客房浴室都放在南边。拥有最多玻璃的生活区位于西北角。对太阳能加热一点也不理想。
为了把起居室的玻璃角移到西南方向,我不得不在保留车库的同时翻转平面。这就产生了一个入口问题——通过车库进入的杂物间现在在另一边。从车库直接进入的唯一选择是创建一个从前面伸出的泥房。至少可以说很尴尬。
那么人们是怎么想的呢?即使有了交换,釉面情况也不是最佳的。只是把那个角落移到西北侧有点伤人。什么好主意吗?



回复
怎么了,你把选项一都翻了,包括车库,然后把桁架的N-S贯穿整栋房子。你朝南的屋顶不会那么宽,但会很高。
里德的天才!它只有48英尺长,我将有内部支柱,所以实际上椽子可以很好地工作。现在将有大量的南屋顶,良好的太阳能方向,没有摇摇欲坠的车库,现在髋骨屋顶框架。太棒了!
本,
这两个让你陷入如此困境的计划是从哪里来的?你是受到投资者的限制还是其他你没有提到的限制?
这份期刊:
这个计划已经被购买了,并被设计师一点一点地修改了,这有点偏离了我最初想要的。时间和金钱是这里的限制,因为从头开始重新设计是不可能的。然而,我想我有一个很好的解决方案从里德,我将向投资者。任何其他反馈当然是感激的。
谢谢!
本,
你可能可以重新设计卧室的布局——超过21英尺的壁橱是很多的——你可能会用这个空间来做更多的生活空间。通往浴室的通道可以在壁橱的对面,并在卧室中腾出空间放置梳妆台。被动式太阳能需要太阳加热板,你所展示的家具安排阻碍了这一要求。
很高兴这似乎行得通。我希望随着细节的落实,这个概念能够得到支持。