你觉得这个平面图怎么样?
我即将完成一栋1800平方英尺的两层被动房屋的设计阶段。[1]位于盐湖城(6B)的住宅[1],如果你们中有人有时间查看平面图,我很高兴得到你们的一些反馈,在项目[1]的背景下:
http://1010-design.blogspot.com/2012/07/take-iii.html
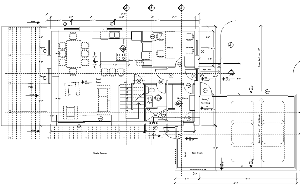
下面是第一层的平面图:
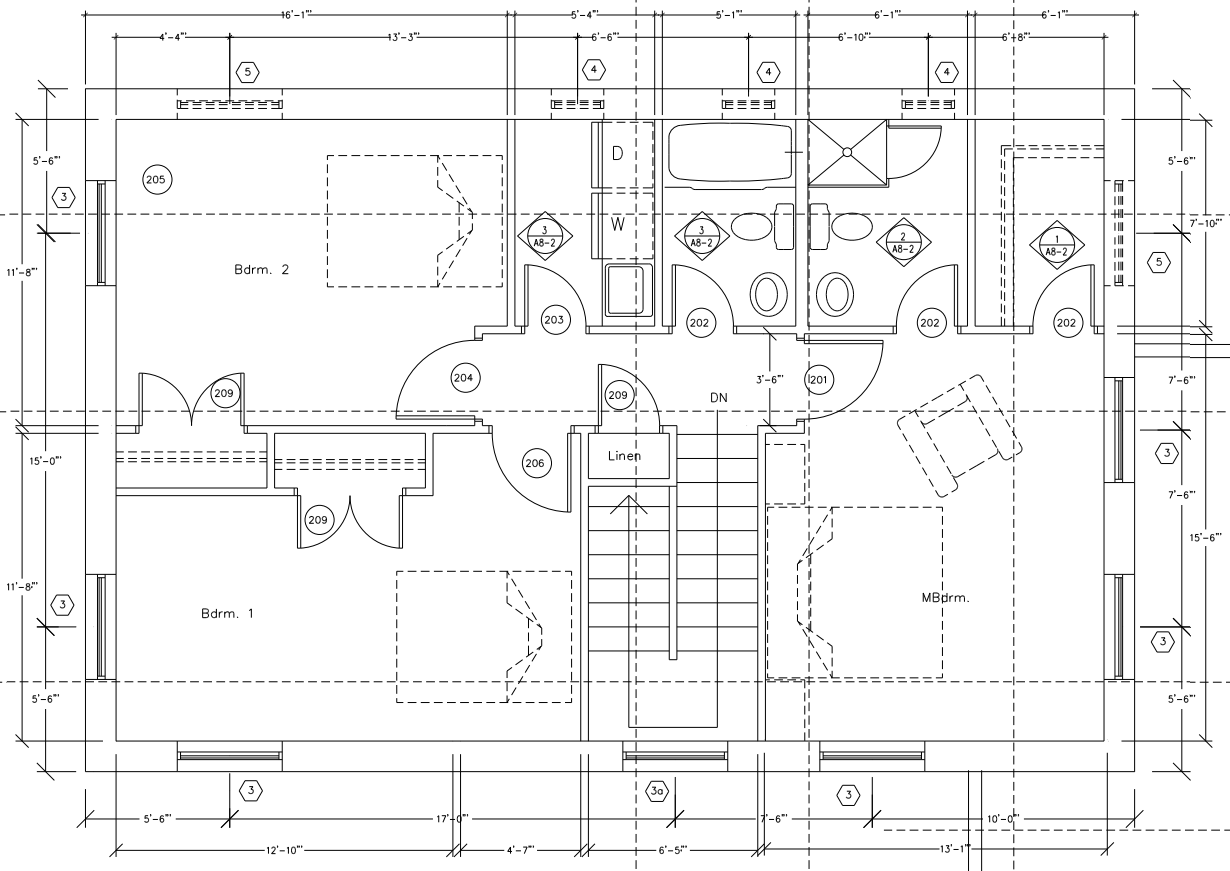
这是第二层的平面图:
欢呼,
1月
GBA细节库
一千个建筑细节的集合,由气候和房屋部分组织
搜索和下载施工细节


你真的想删除名单吗,?
这不会删除你保存的文章,只会删除列表。
此功能在beta站点预览期间暂时禁用。
回复
1月,
为什么把楼梯放在房子的南边?楼梯在北面。
如果可能的话,我更喜欢浴室里有自然光。完全用人造光洗澡有点令人毛骨悚然……
1月,
抱歉,如果我对你太疯狂了,但你有一个很好的概念开始,通过做一些小的调整,它会使它更宜居和用户友好。顺便说一句,设计是我的事。
1.以24英寸的增量设计你的房子,就像在外部尺寸上一样,你可以节省框架材料的钱。这是高级框架技术的一部分。
2.您的尺寸是任何框架和分包商的噩梦,它可能导致太多的错误。你的第一个维度线应该在外墙到下一个开口的中间到房间墙壁的一侧之间,从那里到下一个开口的中间到下一个房间墙壁的一侧,以此类推到外墙,所有这些都是连续的。第二维度线在同一房间墙壁之间。第三条尺寸线应该是从外墙到外墙。我建议不要标注壁厚的尺寸,因为它们会导致分数,因此更难阅读。
3.如果可以的话,我想把车库/储藏室/浴室朝北,办公室朝南。它会把1楼的水管和2楼的水管连接起来。另外,车库向南打开,我将允许雪融化,而不会有冰堆积。
4.重新设计储藏室以节省空间。交通模式损失了太多的面积。也许可以缩小储藏室,使之成为一个更大的入口室。
5.除非你有太多的外部访客/客户,否则我不明白在小房子里有“前厅”的想法,即使是办公室的交通也不行。在一个小的入口房间里有太多的门会造成交通噩梦,尤其是对于行动不便的人,你的长辈,或者将来的你。
6.也许如果办公室在南边,它可以有一个室外入口和更大的壁橱或嵌入式,这样就可以有更多的向南的大窗户
7.我会打开通往客厅的楼梯;这会给人一种更开放的感觉。
8.在一个小的厨房岛上放置一个炉子,在机动性、柜台空间和通风方面都很困难。有了通风,向下的气流是毫无价值的,下降的通风罩阻碍了能见度。我会翻转水槽和DW,把冰箱搬到东墙,把炉子搬到外墙;它更容易发泄,而且可以提供更好的交通模式,特别是当你有两个厨师的时候。
9.我会在餐厅和客厅之间安装一扇法式/滑动门,通往阴凉的西门廊。它创造了一个更好的交通模式,可以在户外玩耍或做饭。
10.考虑在西面的窗户和可能的门上遮阳。
11.1号床太不成比例了;室内尺寸为17 ' 10 ' x9 ' 4 '(?),两间卧室都有两个小壁橱。床#2似乎是14 ' 11“x11 ' 8”(?)。我将在床#1和床#2的东墙上设计两个壁橱,使床#1的尺寸为15 ' 6“x11 ' 8”(?),床#2的尺寸为12 ' 7“x11 ' 8”(?)。
12.主衣柜的壁橱门,如果从浴室安装,它会给你更多的架子/杆空间,一个人可以穿衣服而不打扰还在睡觉的人。有些人喜欢,有些人不喜欢。如果接下来的问题是关于你衣服的湿度,你应该有一个湿度控制风扇。
13.洗衣房的门似乎太小了,不能把盥洗室放进去。
还有一些想法:
14.马丁在北侧设计楼梯是对的,然而,在这种情况下,我宁愿把所有的管道都放在房子的一边。如果你需要被动式太阳能设计的帮助,我会在楼梯平台上方安装一个高窗户。
15.如果车库向北移动,即使是房子的北墙,也许你可以设计一个房子的南入口。
阿曼德……太棒了,太棒了
嗨,Martin @1:为什么楼梯应该在北面?
感谢您的快速回复!
阿曼多和马丁说的,还有那扇门是从泥房直接通向淋浴间的吗?我觉得这主意糟透了(铰链生锈了)。除了阿曼多对炉子的评论,图中所示的位置也是一个安全问题。左侧的台面太小意味着锅柄很容易突出到过道空间。对蹒跚学步的孩子来说很诱人,当成年人走过时很容易敲门。
入口太窄了。楼梯顶上的亚麻储藏柜会让人感到压抑。卧室的布局还可以更好。总的来说,很多角落太挤太紧了。楼梯上有17个升降梯:每层10英尺高,16个就足够了,你还可以在半平台上增加一个升降梯。这样就可以打开上层平台了。
我有个想法:喝几瓶啤酒,拿一支又粗又软的铅笔,再涂上一些涂抹痕迹,把它弄松一点——需要右脑思考。数字绘图很棒,但它可能会让你陷入困境。
嗨Eric @2:我完全同意——我也是一个自然光的大粉丝。楼下的浴室要让自然光从淋浴的窗户照进来有点困难,但出于这个原因,我把楼上浴室的窗户宽度扩大了一倍。
谢谢你花时间看我的设计!
嗨,Armando @3:该死的“嗯——很棒的反馈!我正在消化——给我一点,但在第二条,你能帮我理解吗?。在这个设计中,你可能已经读过了,结构墙是内部的(电子邮件保护)12“组件的墙壁,在外部有9.5”拉尔森桁架。因此,在东北角的办公室,“第一维度线”将办公室门放置在24英寸——从结构东墙的外部(入口)增加;“第二维度线”将南墙(走廊以北)置于与北结构墙外24英寸的增量中;并且,“第三维度线”将40'x26'移动到外部结构墙尺寸,从而将43'1 ' x29'1 '从外部移动到外部尺寸。我理解对了吗?
也许很难相信,盐湖城就在这里,但我们这里有几瓶不错的本地微酿啤酒,下次你来的时候我请客,阿曼多!
嗨,詹姆斯@ 7:在脏狗与不锈钢铰链之间的权衡中……狗赢了-我很乐意在铰链上多花一点。关于幼儿摔倒的技巧说得好…炉子移动。你觉得入口只有4英尺,看起来很窄(毕竟按照美国的标准,这是一栋“小”房子)?半着陆的位置很好,我看看能不能把南墙再往南移一点。
谢谢你看了这些计划!
前厅宽度:与客人打招呼和告别时,4英尺和5英尺之间有很大的区别,看起来你可以轻松地从泥房里偷一英尺而不会有很大的痛苦。然后,我将n&s储藏室墙壁上的门移到左边足够远的地方,在右边留出一整面墙的储物空间,这样很容易恢复功能。我猜有一只狗参与了淋浴门的布置:不管有没有铰链,门的门槛都很容易受到淋浴漏水和长期框架损坏的影响。我会把那扇门移到北边,这样它就能进入浴室的主要部分,而不是淋浴间。淋浴外壳的任何部分都不应该容易受到水的损坏,包括门本身。
你好,阿曼多@ 3:
1:有意义-在从这个角度审查计划后,我获得了许多框架简化;
2:同意-将尺寸改为以结构墙为基础;
我同意,但是,不幸的是,没有一个好的方法来做到这一点;
是的——正如James也注意到的——这是我现在正在考虑的,除了把泥屋的西内墙往东移一点,让房间更小;
5:门厅内的门是可选的——我还没决定;
不幸的是,把办公室搬到南方是不可能的;
7:考虑(实心提供墙面空间);
8:是的,我正在重新设计厨房的细节,让它工作得更好一点;
我更喜欢用“软”分隔(比如家具等);
是的,SGHC也被修改了——门廊提供了一些遮阳,但是,你知道,向西遮阳很难;
11:好主意-重新设计卧室,使其与BDRM 1和楼梯之间的小存储区对称-看起来会很好地工作;
12:很好的观点-不确定洗手间的通道,但我现在正在重新审视细节;而且,
13:门是2'4“,这应该适用于我的w/d。
再次感谢,Armando -你显然对设计充满热情,我非常感谢你周到的投入!
欢呼,
1月
嗨,詹姆斯@11:关于前厅的宽度和感觉的好观点-正在考虑它;储藏室-浴室的门会有点潮湿,这是事实,但浴帘应该首当其冲。谢谢你审阅计划!
首先,gba玩家们,感谢你们所有的精彩反馈。特别感谢Armando,他不仅在他的帖子中提供了很好的反馈,而且还进行了更深入的设计讨论(来自GBA网站)——太棒了。你们这些人,跟我是一类人。
我采纳了你的很多反馈,包括詹姆斯关于“喝几杯啤酒”的建议(我通常不是那种“越多越好”的人,但在这种情况下,我是个例外)。我还在考虑门厅宽度的建议,这似乎是个好主意,但我的左脑正在挡道……
所以,这是最终的平面图,就在对这个项目进行投标之前:
http://1010-design.blogspot.com/2012/09/floor-plans-iv.html
如果你有什么隐瞒,请不要——把它发送过来。
欢呼,
1月
P.S. Martin,你不会对此感到惊讶,但在我的项目博客上,我确实有一位当地的PH建筑师建议我也做一个小的分裂。