批评我的设计 约翰·蒂林斯塔斯特|发布了一般的问题在2019年1月9日下午03:00 我在4A区建造。附件是我创建的设计。我很欣赏任何建议。东部和西部海拔每个主要层面都有两个窗户。房子将建在南面山上。屋顶间距为10/12。 大型房间的大教堂上限是11 7/8“设计的I梁,阁楼区域使用桁架屋顶系统。 地基将浇筑混凝土。 我很难找到一个使用非常规技术的建筑工人,因为这里是农村,所有优秀的建筑工人现在都很忙。我希望在春天破土动工。 谢谢 回答 加入建筑科学专家的领先社区 成为GBA Prime会员,即时获取绿色建筑的最新发展、研究和现场报告。 开启免费体验 相关问题 请批评我的墙面设计 请批评我的底墙体详细信息 批评我的墙,思想欢迎 评论我的迷你分裂安置选项 回复 布伦丹Albano|2019年1月9日03:55 PM|#1 把北箭头放在每个计划上并用基本方向标记海拔(例如“北高升”)将帮助每个人。它看起来像在文件名中标记的海拔,但涂上图纸本身将增加清晰度。 如果你多分享一些关于程序、网站、项目目标等的信息,你可能会得到更多有用的评论。 谁住在这里?一个家庭吗?有多少成年人/孩子吗?主卧/儿童房/客卧有区别吗?这个巨大的空地下室的计划是什么?那阁楼呢?这是主入口(在我看来像前门的东西似乎也出现在标号为“后”的标号上)。风景在哪里?这座建筑建在山上有多陡,建在山上有多深? 我建议画出所有房间的家具,以便更好地了解如何使用它们。 绘制一些部分来了解信封以及建筑物如何与地形有关的可能是一个很好的呼叫。 由于这是绿色建设顾问,项目的绿色建筑有关的目标是什么? 专家成员 马尔科姆·泰勒|2019年1月9日04:03pm|#2 用户... 231, 乍一看我注意到了一些小无关的东西: - 您在厨房/用餐区之间缺少一些地板,在双层空间和奖金桁架之间。 - 奖金 - 桁架在房间的拐角处具有非常小的深度,在那里遇到屋顶。对于足够的绝缘和通风来说太小了。 - 地板高度显示为8英尺和9英尺。预切割螺柱和板材,如干墙,尺寸为您的尺寸,从底板顶部到顶部的顶部给您8'-1“和9'-1”。 祝你好运! AEDI.|2019年1月9日04:26pm|#3 你好用户-7294231, 你能告诉我们你的名字吗?这样更容易与人沟通。 您正在寻找任何特定的反馈吗?你会得到更多的回答,他们将更有用。然而,这个社区中的大多数人不是建筑师(我所包括)。您的计划几乎肯定必须得到建筑师的批准,以便无论如何都要建立它,因此您可能会合同,并要求他们进行反馈。 我的练习料看起来没有透露任何错误,并且在设计(简单的形状,简单的屋顶)上行使一般的绿色建筑实践。快速观察:-一楼浴室的情况有点奇怪。尤其是半浴似乎有点不合理,但每个人都有自己的喜好。很好,你把你的管道集中在建筑的一部分,靠近热水器。- 对我来说尚不清楚哪个门被认为是主要的入口。- 我对那个大型厨房桌子有点怀疑,因为当补充椅子时,似乎令人烦恼 - 我只是在眼中。- 整体布局不友好,但不幸的是,大多数家庭都是如此。-我认为,如果你愿意把另一间卧室搬到二楼,并把一楼搬来搬去,你可以在不失去任何功能的情况下,大幅缩小这个楼层(10-20%)。 约翰·蒂林斯塔斯特|2019年1月9日05:20 PM|#4 回复前3个回复: 我是一个单身男性,63岁。这将是我的周末撤退。我有3个婚子有家庭,他们会访问一些。我狩猎,并将有狩猎客人。我参与了男子部,将举办12人或更少的团体。这所房子围绕一张桌子设计了12张和3间卧室,每个卧室都可以容纳4人[使用双层床]。卧室位于东南角,毗邻大房间,是主床间。 “空”地下室将是一次最多12名男子的会议场所。阁楼主要是为了盛大的孩子。大多数时间通过较低水平/走出地下室将是主要的入口。房子面向南方,略带西方,我拥有一个美丽的山谷全景。山上是适度的陡峭,建筑物将大多在东部和西侧徘徊,完全在北侧较低。 3/4浴室和1/2浴室的原因是允许多个客人可以同时访问。在那里有12名男子,可以淋浴,另一个使用1/2浴。 我在考虑要一张2张甚至3张的桌子,可以合起来坐12个人。 沃尔特Ahlgrim.|2019年1月9日06:38pm|# 5 我喜欢家的方形,以及你如何保持所有管道如此靠近。我认为这些东西不属于高性能的房子。 1一半的故事设计。将室内空气与室外空气保持在这种设计中,需要如此多的额外工作,任何避免使用屋顶下的空间都会被吃掉,试图使其密密度。 2大教堂天花板难以忍受良好,昂贵。 3您不会每天都会通过窗口来看看。跳过被动太阳能的任何窗口。 你有没有在看起来熟悉之前发布了这个设计? Walta 斯科特威尔逊|2019年1月9日09:20 PM|#6 你好。我更多地进入了“设计”方面(而不是工程方面)所以我有一些关于你的布局的建议。 我会减少输入的宽度(泥厅?),使楼梯壁与卧室门壁对齐(在墙上有小慢跑而没有太大意义)。这将把你的楼梯拉到6-12英寸,并扩大你的走廊到浴室和卧室。还缩小了12英尺2 1/2的角落卧室,以与中间卧室相同的宽度(浴室梳妆台,亚麻柜和壁橱将保持相同的宽度,但走廊现在将更宽)。 把盥洗室紧挨着一间完整的浴室是没有什么意义的。我会把化妆室变成一个洗衣房,里面有洗衣机和存放亚麻制品的地方(把浴室里的亚麻制品柜拿出来,放在一个有双水槽的梳妆台里)。厨房的墙应该从新的洗衣房墙的边缘向后推12英寸,并在墙上放置书架。 如果移动入口门和直接相对的门(在摩擦室)超过18“中,您可以沿着右外墙运行一块窄的橱柜,以便存储(我会在钥匙上用柜台做较低的柜子,手套等,然后上柜)。 您在主浴室中不需要第二个亚麻柜。放入双重梳妆台。将主浴室门移动到卧室门的角落里,改变摆动,使其打开到墙上的浴室。现在,您可以延长主卧室壁橱。 你没有足够的空间放这么宽的餐桌(沿着墙坐在中间的人没有足够的空间通过其他椅子)。我建议把水槽放在岛上,可以看到大房间,并缩短橱柜的长度,这样你就可以为餐厅增加大约2英尺的宽度。 最后,角落壁炉是各地设计师的祸根。它让铺设了家具真的很难。也许将其沿着墙壁放到门廊(?)并用书柜和拐角填充墙壁。 一个工程学,阁楼的线条显示光束(阁楼的边缘)将在餐桌旁边的窗口结束,您应该移动窗口,以便阁楼光束由帖子支撑。 斯科特威尔逊|2019年1月10日07:32 PM|# 7 昨晚我决定用我的建筑软件画出你的主要楼层平面图。外墙为2x6结构,内墙为2x4结构,内部尺寸为“石膏板面到石膏板面”。如果你原来的外墙是2x4的结构,那么室内房间的尺寸会有点不同(显示的外部尺寸是内墙的中心)。你可以随心所欲地调整。 我立刻注意到的一件事是所有的小墙都突出在卧室/浴室的一边(和慢跑在墙壁上)。这为框架工作人员创造了很多额外的工作,所以我简化了墙壁和对齐的东西。 我也看到,对于这样一个大的主楼,没有多少储存。我几乎离开了房间,而是改变了一些入口门的地方。我也改变了你的主浴室,所以你拿着一个窗户,给了你一个大的散步穿过衣橱(我会使用壁橱柜,就像那些来自宜家那样的衣柜,而不是打开悬挂杆)。我在两个浴室的6英尺浴缸中展示了空间(在小孩访问的情况下,房子里至少有一个浴缸),但另一个可能是一个宽阔的淋浴。洗衣房仍然可以是粉末室,但你真的不需要它。 我在楼梯大厅里添加了储餐柜(有12个人,你需要存放很多食物),我也加了一把扫帚衣橱。 第二幅图所示的厨房设计是一个经典的“U”形,面对着餐桌(大房间一侧有一个凸起的吧台)。冰箱应在柜子的一端运行在“食品柜墙”的一侧,炉子在柜子的中间短运行和水槽在半岛运行。如果你想在餐桌和厨房之间有更多的空间,我会使用沿外墙的长长凳(这将减少在单独的椅子后面行走所需的空间,并允许桌子多移动2英尺左右)。 希望你喜欢我的一些想法。最好的运气与你的建造。 约翰·蒂林斯塔斯特|2019年1月14日08:52am|#8 谢谢斯科特。我已经远离观看了几天,只刚看到了你的建议。我非常欣赏他们,我将研究他们并融入 买壁炉的人告诉我,把壁炉放在内墙上,靠近顶部,可以改善通风。我还在琢磨那个元素。 登录或创建一个账户来发布答案。 报名 登录
回复
把北箭头放在每个计划上并用基本方向标记海拔(例如“北高升”)将帮助每个人。它看起来像在文件名中标记的海拔,但涂上图纸本身将增加清晰度。
如果你多分享一些关于程序、网站、项目目标等的信息,你可能会得到更多有用的评论。
谁住在这里?一个家庭吗?有多少成年人/孩子吗?主卧/儿童房/客卧有区别吗?这个巨大的空地下室的计划是什么?那阁楼呢?这是主入口(在我看来像前门的东西似乎也出现在标号为“后”的标号上)。风景在哪里?这座建筑建在山上有多陡,建在山上有多深?
我建议画出所有房间的家具,以便更好地了解如何使用它们。
绘制一些部分来了解信封以及建筑物如何与地形有关的可能是一个很好的呼叫。
由于这是绿色建设顾问,项目的绿色建筑有关的目标是什么?
用户... 231,
乍一看我注意到了一些小无关的东西:
- 您在厨房/用餐区之间缺少一些地板,在双层空间和奖金桁架之间。
- 奖金 - 桁架在房间的拐角处具有非常小的深度,在那里遇到屋顶。对于足够的绝缘和通风来说太小了。
- 地板高度显示为8英尺和9英尺。预切割螺柱和板材,如干墙,尺寸为您的尺寸,从底板顶部到顶部的顶部给您8'-1“和9'-1”。
祝你好运!
你好用户-7294231,
你能告诉我们你的名字吗?这样更容易与人沟通。
您正在寻找任何特定的反馈吗?你会得到更多的回答,他们将更有用。然而,这个社区中的大多数人不是建筑师(我所包括)。您的计划几乎肯定必须得到建筑师的批准,以便无论如何都要建立它,因此您可能会合同,并要求他们进行反馈。
我的练习料看起来没有透露任何错误,并且在设计(简单的形状,简单的屋顶)上行使一般的绿色建筑实践。快速观察:
-一楼浴室的情况有点奇怪。尤其是半浴似乎有点不合理,但每个人都有自己的喜好。很好,你把你的管道集中在建筑的一部分,靠近热水器。
- 对我来说尚不清楚哪个门被认为是主要的入口。
- 我对那个大型厨房桌子有点怀疑,因为当补充椅子时,似乎令人烦恼 - 我只是在眼中。
- 整体布局不友好,但不幸的是,大多数家庭都是如此。
-我认为,如果你愿意把另一间卧室搬到二楼,并把一楼搬来搬去,你可以在不失去任何功能的情况下,大幅缩小这个楼层(10-20%)。
回复前3个回复:
我是一个单身男性,63岁。这将是我的周末撤退。我有3个婚子有家庭,他们会访问一些。我狩猎,并将有狩猎客人。我参与了男子部,将举办12人或更少的团体。这所房子围绕一张桌子设计了12张和3间卧室,每个卧室都可以容纳4人[使用双层床]。卧室位于东南角,毗邻大房间,是主床间。
“空”地下室将是一次最多12名男子的会议场所。阁楼主要是为了盛大的孩子。大多数时间通过较低水平/走出地下室将是主要的入口。房子面向南方,略带西方,我拥有一个美丽的山谷全景。山上是适度的陡峭,建筑物将大多在东部和西侧徘徊,完全在北侧较低。
3/4浴室和1/2浴室的原因是允许多个客人可以同时访问。在那里有12名男子,可以淋浴,另一个使用1/2浴。
我在考虑要一张2张甚至3张的桌子,可以合起来坐12个人。
我喜欢家的方形,以及你如何保持所有管道如此靠近。
我认为这些东西不属于高性能的房子。
1一半的故事设计。将室内空气与室外空气保持在这种设计中,需要如此多的额外工作,任何避免使用屋顶下的空间都会被吃掉,试图使其密密度。
2大教堂天花板难以忍受良好,昂贵。
3您不会每天都会通过窗口来看看。跳过被动太阳能的任何窗口。
你有没有在看起来熟悉之前发布了这个设计?
Walta
你好。我更多地进入了“设计”方面(而不是工程方面)所以我有一些关于你的布局的建议。
我会减少输入的宽度(泥厅?),使楼梯壁与卧室门壁对齐(在墙上有小慢跑而没有太大意义)。这将把你的楼梯拉到6-12英寸,并扩大你的走廊到浴室和卧室。还缩小了12英尺2 1/2的角落卧室,以与中间卧室相同的宽度(浴室梳妆台,亚麻柜和壁橱将保持相同的宽度,但走廊现在将更宽)。
把盥洗室紧挨着一间完整的浴室是没有什么意义的。我会把化妆室变成一个洗衣房,里面有洗衣机和存放亚麻制品的地方(把浴室里的亚麻制品柜拿出来,放在一个有双水槽的梳妆台里)。厨房的墙应该从新的洗衣房墙的边缘向后推12英寸,并在墙上放置书架。
如果移动入口门和直接相对的门(在摩擦室)超过18“中,您可以沿着右外墙运行一块窄的橱柜,以便存储(我会在钥匙上用柜台做较低的柜子,手套等,然后上柜)。
您在主浴室中不需要第二个亚麻柜。放入双重梳妆台。将主浴室门移动到卧室门的角落里,改变摆动,使其打开到墙上的浴室。现在,您可以延长主卧室壁橱。
你没有足够的空间放这么宽的餐桌(沿着墙坐在中间的人没有足够的空间通过其他椅子)。我建议把水槽放在岛上,可以看到大房间,并缩短橱柜的长度,这样你就可以为餐厅增加大约2英尺的宽度。
最后,角落壁炉是各地设计师的祸根。它让铺设了家具真的很难。也许将其沿着墙壁放到门廊(?)并用书柜和拐角填充墙壁。
一个工程学,阁楼的线条显示光束(阁楼的边缘)将在餐桌旁边的窗口结束,您应该移动窗口,以便阁楼光束由帖子支撑。
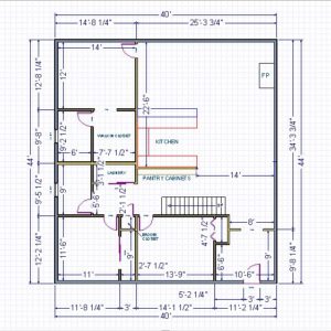
昨晚我决定用我的建筑软件画出你的主要楼层平面图。外墙为2x6结构,内墙为2x4结构,内部尺寸为“石膏板面到石膏板面”。如果你原来的外墙是2x4的结构,那么室内房间的尺寸会有点不同(显示的外部尺寸是内墙的中心)。你可以随心所欲地调整。
我立刻注意到的一件事是所有的小墙都突出在卧室/浴室的一边(和慢跑在墙壁上)。这为框架工作人员创造了很多额外的工作,所以我简化了墙壁和对齐的东西。
我也看到,对于这样一个大的主楼,没有多少储存。我几乎离开了房间,而是改变了一些入口门的地方。我也改变了你的主浴室,所以你拿着一个窗户,给了你一个大的散步穿过衣橱(我会使用壁橱柜,就像那些来自宜家那样的衣柜,而不是打开悬挂杆)。我在两个浴室的6英尺浴缸中展示了空间(在小孩访问的情况下,房子里至少有一个浴缸),但另一个可能是一个宽阔的淋浴。洗衣房仍然可以是粉末室,但你真的不需要它。
我在楼梯大厅里添加了储餐柜(有12个人,你需要存放很多食物),我也加了一把扫帚衣橱。
第二幅图所示的厨房设计是一个经典的“U”形,面对着餐桌(大房间一侧有一个凸起的吧台)。冰箱应在柜子的一端运行在“食品柜墙”的一侧,炉子在柜子的中间短运行和水槽在半岛运行。如果你想在餐桌和厨房之间有更多的空间,我会使用沿外墙的长长凳(这将减少在单独的椅子后面行走所需的空间,并允许桌子多移动2英尺左右)。
希望你喜欢我的一些想法。最好的运气与你的建造。
谢谢斯科特。我已经远离观看了几天,只刚看到了你的建议。我非常欣赏他们,我将研究他们并融入
买壁炉的人告诉我,把壁炉放在内墙上,靠近顶部,可以改善通风。我还在琢磨那个元素。