关于此平面图的意见
由于房屋是建造的,这主要是出于娱乐目的。直到为时已晚,我才发现这个网站,无法进行任何更改,否则我会提前要求反馈。与我们认为我们犯的错误相比,我对我们犯的错误感到好奇。
除了娱乐外,它还可以说明其他寻找平面图的想法的说明。
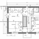
这所房子是坡度上的平板,面向北部。
GBA细节库
由气候和房屋部分组织的一千个建筑细节的集合
搜索和下载施工详细信息


您真的想删除列表吗??
这不会删除您保存的文章,只有列表。
在Beta站点预览期间,此功能已被暂时禁用。
答复
特雷弗,
它看起来真的很高效。从宜居性的角度来看,感觉如何?您是否希望有更大的入口,也许有气闸?而且我想您的能量模型推动了最小的窗户。如果您要完成它,您会放入更多或更大的窗户吗?
坚硬的。它离旧的四平方西尔斯房屋不远,每个维度只有几英尺。主要层次折断了“音乐学院”撞击。我敢肯定,这是最好的自然照明空间(我会花费最多的时间!)
小事:对于共享的第二层浴室,我喜欢分街,尤其是没有主浴室。餐厅似乎是通往更好定义空间的循环道路。
我会把这所房子带到我目前住的房子上。
批评计划的挑战是挑战,而没有更多地了解对您和您的家人重要的事情。
一般来说,我真的很喜欢您的平面图。我喜欢浴室和杂物间如何在附近以提高效率。我还喜欢您的窗户较少的房间(杂物间/浴室/厨房)在北墙上。勇敢!
我可能会重新考虑的某些元素(个人喜好):
- 有三个不同的“生活”区域。一个人就足够了吗?休息室使我成为一个需要家具但从未使用过的传统房间。:-)
- 将楼梯间放在房子的中间,您被迫在两层楼的一侧添加走廊。这占用了额外的平方英尺。
- 鉴于总平方英尺,我觉得您可以很容易地在楼下包括一间卧室/浴室。(这为未来的居民/家庭带来了机动性挑战的灵活性。)
- 还鉴于平方英尺,我觉得更有效的设计可以容纳客人浴室和二楼主卧室的步入式壁橱。
- 厨房通过在北墙上有两个角来减少可用的橱柜空间。另外,包括厨房的三个入口在可用的厨房区域切下来。
- 理想地,将管道搬迁到外墙上的淋浴会很棒。总是很好地保持在内墙或至少在服务腔内(您可能已经拥有)。喜欢一楼的2x6管道墙!
- 最终,我正在尝试考虑如何布置地板托梁。饭厅和音乐学院之间有钢梁吗?简单,高效的布局可以使地板框架变得更加容易和较低的体现能量。屋顶桁架相同:如果房子稍微窄,屋顶的音高为8/12或更低,您也许可以省略猪式桁架。(加拿大的大量负载法可能有所不同)这可以节省劳动力和材料。
特雷弗,
我希望当您收到足够的评论时,您会告诉我们您如何在那里生活,以及您在回顾方面所做的事情。
看起来像是一个很好的宜居计划。我可能会将主卧室中的壁橱从外墙移到对面的壁橱。我通常会尝试避免让床头板与另一间卧室共享墙。
我将房子描述为“很好”。我的妻子比我更喜欢它。
我最大的遗憾或我会改变的事情是:
- 二楼,然后使其成为更大的平房
- 拥有一个单独的(更大)的公用事业/储藏室。将那个房间作为入口只是倾向于将其垃圾,而且它实际上不能太多使用。根据停车垫所在的位置,这是最常用的入口。
- 将西侧门/侧灯组合起来,仅盖上更宽的玻璃单门
- 从一开始就挂起的小插图,而不是地板内部水力(现在已有效退休;我想您可以称其为备用热系统,但是我们已经有备用热量,所以现在我们有了三重冗余)
- 替代和转动窗户而不是casement
-
史蒂夫,
总体而言,这是非常宜居的。在我们用作跳跃点的原始计划中,前门有一个小小的撞击。为了简单起见,我们消除了这一点。我不介意那样;不过,从来没有想过要为此使用气闸。在放置和尺寸尺寸的窗户时,我们当然考虑了能源效率,但是我想说的玻璃实际上高于典型的玻璃。(除了前门外,还完全釉面了)。我有时希望的唯一一个是卧室3的东墙上有一个,因为这可以欣赏车道的景色。白天,这所房子自然可以很好地照亮,比我以前去过的任何房子都要好。
杰森,
我们开始使用的设计在热信封外面有一个真正的温室。这是爱尔兰设计。
里克,
我想拥有不同的领域,如果他们做不同的事情,他们可以去。这种楼梯的目的是将地板划分,尽管我可以看到如何沿途节省一些地板空间。它的东部的“走廊”被孩子们用作游乐区。
至于楼下的卧室/浴室,回想起来,我会把所有东西都放在主楼层上。原来,我不得不和我的妻子争论,只是把两件浴室放到楼下。她在一间浴室的房子里长大。我放下脚并坚持。
我们有服务空腔,因此任何外墙都没有。
地板托梁在房屋主要部分的12英寸中心为16英寸,在音乐学院上方12英寸的桁架。我认为这里还有一个12英寸的LSL,跨越了音乐学院入口。屋顶桁架是从头开始建造的。这是计划的变化,因为桁架的顺序有些混乱。我认为他们永远不会成为背包桁架。