在车库石板上绝缘壁橱
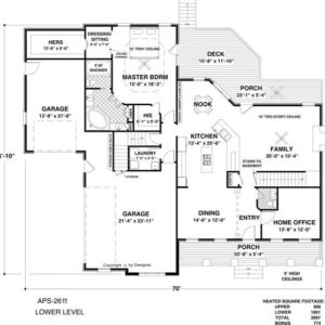
我目前正在伊利诺斯州中部4气候区建造一座住宅。我们的家有一个可走出的地下室,延伸到整个一楼,除了主卧室的壁橱。这个衣柜大约14英尺长,7英尺宽。壁橱基本上占据了一个车库的后部。混凝土承包商把车库地板倒在壁橱下面。然后地板搁栅在混凝土地板上运行。我猜衣柜下面有个大概18英寸高的爬行空间。我不知道如何使这个地区绝缘。任何建议都很好。我已经包括了平面图的一个镜头,因为我确信我没有很好地描述情况。
GBA细节图书馆
由气候和房屋部分组织的一千种建筑细节的集合
搜索和下载施工细节




回复
这是附件
乔纳森,
1.相邻房间下面标有“梳妆/坐姿”的地基是什么类型?
2.有建筑师或设计师吗?如果有,那个人在计划上说了什么?
3.我不喜欢爬行的空间,这种空间太低,人无法进入。如果这是我的房子,我会跳过搁栅,我会在楼板的顶部安装18英寸或24英寸(任何必要的)的EPS,然后由两层3/4英寸的胶合板组成,交错接缝,用螺丝固定在一起。这并不便宜——但否则你最终会得到一个有问题的细节。
我喜欢马丁的建议,但听起来可能太迟了。如果是这样,你可以简单地在混凝土上直接放置一层厚的EPS(4”?),让上面的空间开放。也绝缘和密封周边。
马丁:
1.梳妆/起居室下面的地基是一个9英尺的地下室。
2.我们没有建筑师或设计师。
3.除了你建议的移除搁栅和绝缘之外,你有什么其他的绝缘想法吗?
非常感谢您的及时回复。我从这个网站学到很多,只希望我已经发现这之前开始我们的建设。
搁栅底部离板有多远?
我想提醒《GBA》的读者,绝缘细节需要在设计阶段解决。在不知道建筑围护结构如何隔热的情况下,先给建筑框架,然后在框架工人离开工地时挠头,这是没有意义的。
乔纳森,
查理的建议很有道理。如果你想在这里使用搁栅,你需要找到一种方法,在混凝土板的顶部和搁栅的底面之间安装至少R-30的刚性泡沫。(根据2012年的IRC, R-30是气候区4的最低规范要求。)
如果搁栅在你的方式,你可以暂时移除每一个其他搁栅。一旦绝缘工作结束,你可以重新安装搁栅。
这种方法将需要你在房间的三面绝缘边缘托梁区域。最简单的方法是用闭孔喷雾泡沫。
如果你在边缘托梁上使用闭孔喷射泡沫,你可能想要雇佣一个喷射泡沫承包商来做所有的事情——包括在现有的平板上安装5英寸的闭孔喷射泡沫。这样你就不用拆掉搁栅了。
谢谢马丁和查理。当我们开始建造我们的房子时,我们的计划要求建造2X4的外墙,并使用绝缘材料。没有考虑空气密封的细节。我不是建筑工人或科学家。这种类型的设计在我们正在建设的小社区中很常见,所以我认为结构应该是足够的。
基于在这个网站上进行的几个小时的研究,我们修改了我们的计划,包括2x6墙与纤维素绝缘。我们在外墙增加了硬质泡沫绝缘材料。我们将胶带我们的外部OSB接缝,并将填塞所有内部螺柱连接和喷泡沫通过我们的信封所有突出。我们已包括喷雾泡沫为所有轮辋托梁。我们包括了HRV的使用,并将房子里的管道系统从一个没有空调的阁楼中搬了出来。我们已经升级为地源热泵。我们已经改变了我们的奖金房间在我们的膝盖墙后面的绝缘方案。我们升级了门窗。我们从设计中去掉了可以照明的灯。我还做了一个能量模型。
我完全同意这些细节应该在施工开始之前就考虑好。我只是没有意识到它们的重要性。我感谢这个网站上的每一个人,是他们让我挠头寻找解决方案,而不是不知道有一个问题需要解决。