三菱mini-splits
你好,
我在这个网站上读了大量的东西,一直在学习一些东西,所以提前感谢大家。这是我的第一个帖子,所以请温柔一点。
我住在马萨诸塞州波士顿地区。我正在整理地下室。我想有加热/冷却的选择,但我有头部空间的问题,所以我很自然地被吸引到地下室的迷你分裂的想法,以避免更多的管道工作。此外,我一楼的管道工作占用了地下室很大的净空空间。当我向几个承包商指出这一点时,他们建议将一楼的暖通空调并入迷你分体系统,并将一楼分成两个独立的管道空气处理器,每个都有一个备用的水力盘管,用于从我现有的燃油锅炉产生的热量。这将消除90%的高架管道系统,造成的问题与头部空间。我真的只和三菱的经销商讨论过这个问题。建议的设备有:
—室外单元为MXZ8C48NAHZ2
—一楼两侧布置SVZKP24NA和SVZKP12NA
-两个MSZFH09NA和一个MSZFH06NA的地下室的三个房间
几个月前,我收到了各种各样的成本报价。一些承包商在地下室只有三个6000 BTU系统。所有人都同意我需要在地下室放三个人头。
现在我已经接近完成安装,一些承包商说,他们的三菱代表已经建议反对这个计划,即使它是根据规格完成的。我很少得到关于为什么细节。一位经销商说,他担心地下室的小房间会因为一楼的住户打来电话而过热或过冷,即使地下室的住户已经关闭。我在这里的一篇文章中也看到过。三个单位在地下室的原因是,两个的房间通常会有自己的门关闭,双壁和门下方隔音材料,所以不会有很多空气流入,此外,可能会有很多人在媒体室,所以建议一个比它的大小可能决定。见附件以帮助解释。
所以,我有点不知所措。我喜欢回到我的头部空间,更有效率,对一楼的两边有更多的控制。但是,我不想这样做,如果它不能正常工作,或者效率不高。我在这个网站上读了一篇文章,说室外机1:1映射是最好的,但我真的不能在外面装5个室外机!我最多只能装下两辆车。所以我在想一楼的两个室内单元用一个室外单元,而地下室的三个单元用另一个室外单元是否更好,但我想优化我的花费,如果它能工作,只是因为室外空间的问题,我更喜欢一个。
很抱歉让您久等了,但如果您能提供任何帮助,我将不胜感激。你觉得三菱代表为什么不建议这么做?我还没有找到一个承包商,我觉得比我更了解这一点,所以这很麻烦……如果你知道波士顿地区的任何人,知道这一点就很有帮助!如果你认为不同的设备会更好的工作,请让我知道!
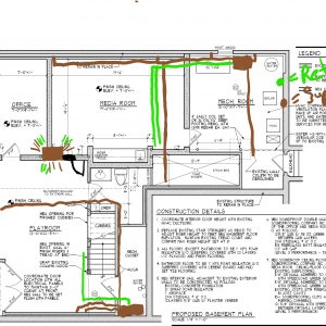
一楼和地下室的平面图剪报附在我的草图上。
谢谢,
安德鲁



回复
我们也在波士顿,刚刚完成了三菱的一个项目。我们与鲍彻能源系统公司合作,我们极力推荐他们。
我们有风机盘管(天然气锅炉)和交流设备,其中一个交流设备在室内盘管中泄漏。我们利用这个机会改用热泵,因为我们的服务是由城镇公用事业和太阳能电池板,这使我们的全部电费低于0.10美元/千瓦时。
我们的系统有一台MXZ8C48NAHZ2室外机,室内空气处理设备为SVZKP30(一楼)和SVZKP24NA(二楼)。我们做了一个手动J calc,把一楼的4吨和二楼的2.5吨缩小了。从冷却的角度来看,我们还是有点大,但从加热的角度来看,我们的规模还不错。
我们的经济平衡点是15F,系统已经没有问题加热到那里。
Mitsu空气处理器的水线圈是Aquecoil套管线圈。他们很好地建立:https://www.aquecoil.com/specs/hhuspecs/files/AQUECOIL_HHU_MI-Series.pdf
我们使用的是霍尼韦尔Prestige室内空气调节器和Mitsu恒温器接口。
我们在地下室有一台6K的空调用于夏季空调和除湿,但我不能帮你解决具体房间的问题。
号
“我还没有找到比我更了解这方面的承包商,所以这很麻烦……”
这种感觉我太熟悉了。不幸的是,我认为这在暖通空调行业是非常正确的。
今年早些时候,当我试图做出类似的决定时,我与8个不同的承包商进行了交谈。我最终得到了一个能够完成它应该做的事情的系统,但这是在我花了数周时间进行研究、阅读技术文档、指出设计和工艺上的缺陷并记录我所经历的性能问题之后。你可以在我的帖子中看到更多关于我遇到的问题的细节:
-//m.etiketa4.com/question/a-cautionary-tale-on-hvac-contractors
-//m.etiketa4.com/question/multi-zone-mitsubishi-system-not-performing-with-all-zones-running
如果让我重新来过,我想我会让一个独立的工程师设计一个合适的系统,然后根据设计从承包商那里收集报价。
一些额外的想法:
1.这个尺寸对我来说似乎很可疑——我知道你是在波士顿,但就房子的大小而言,我认为不需要一个4吨重的户外单元。此外,您的室内容量为60k BTU/h。虽然这是在130% (62k BTU/h)三菱允许的MXZ-8C48NAHZ与分支盒和SVZ空气处理,我不确定这是一个好主意。是否进行了适当的手动负荷计算,考虑到房屋的绝缘和换气率?
2.地下室办公室的6k头对我来说肯定是个问题。在这么大的室外机上安装这么小的头不仅是个坏主意(因为转弯率的下限),而且把这么小的房间放在它自己的区域上也没有意义。
3.如果你有两个室外单元的空间,我会考虑在地下室安装一个室外单元,在一楼安装另一个室外单元。这将有助于保持每层单元的大小相似
4.可以在热关闭时禁用风扇(要么通过切断控制板上的电阻,要么通过适当配置恒温器)。这可以帮助缓解过热/过冷区域的问题,在热关闭。
我错过了“我还没有找到一个我觉得比我更了解这方面的承包商,所以这很麻烦”的评论。我也有同样的感觉——前3个承包商并不了解三菱的东西(特别是在使用带有风扇盘管的双燃料系统时)。这三家公司的Manual-J计算方法都非常不同(而且是错误的)。
鲍彻最终看起来比我懂得多,他在双燃料系统方面有丰富的经验。
这个Mass-CEC的网页是寻找当地承包商的好资源(带有价格信息!)
https://www.masscec.com/cost-residential-air-source-heat-pumps
整件事听起来像太多的设备,大部分的头部荒谬地超出了可能的负荷,特别是地下室。我怀疑这可能是三菱不愿签约的原因。一个FH06头(或3/4微型导管盒)可能会超过整个地下室的加热负荷,而且它有一个非常小的(和大部分潜在的)冷负荷,即使是在媒体室有6个居住者(约350-400 BTU/小时每人潜在+敏感)。地下室的设计看起来有点过分了,但其他地方也太过了。
我怀疑SVZ的空气处理器对于一楼的负荷来说也太大了。最好是适当的尺寸,并使用一些热条(而不是油锅炉的水空气)来弥补寒流期间的差异。即使温度在-5F外,超加热MXZ上一个合适大小的SVZ的大部分热量将来自COP >1的热泵,热条弥补了差额。(辅助热片也不要太大。)在已经超大的锅炉的更低的占空比效率和燃油锅炉的燃料成本下,水力空气盘管没有任何优势。如果热泵彻底失效(而不是仅仅失效),就把锅炉封存起来作为“万福玛利亚”备份——不要让它闲置,不要把它用作辅助加热。
退一步,逐个房间,逐个区域手动j热负荷计算让第三方专业工程师来计算,而不是暖通空调承包商。
如果你有一些冬季加油锅炉,可以运行一个基于燃料使用的整个房子的热负荷,这可能会告诉你MXZ-8C48NAHZ是多么大的整个房子的负荷。在+5F外,-8C48NAHZ仍然可以提供54,000 BTU/小时无带加热,这将使它大约1.5倍的超大,我的子代码20世纪20年代古董2400' 1.5层楼+ 1600'绝缘地下室在伍斯特。(我真的希望你在完成这个空间的时候,已经把地基墙隔离起来了。)可能是你的三倍大。有关如何运行基于燃料使用的负荷计算的详细信息,请参见:
//m.etiketa4.com/article/out-with-the-old-in-with-the-new
(如果你愿意分享填满日期和金额&日期,你的邮政编码和锅炉的铭牌BTU输入/输出,我可以在这里的论坛为你运行crunch。)
从基础开始,让一个工程师,而不是暖通空调承包商,做一个手册J,找出你需要多少热量。能源先锋是一个很好的起点。最理想的是让他们设计整个系统,然后把它拿出来投标。
3号地下室的头太大了。在波士顿,你甚至不应该在正确选择的热泵上需要备用水电。
你目前想消除的管道工作在哪里?
理想的解决方案可能是每层安装一个管道系统。
我不能清楚地在平面图上读房子的尺寸,但它看起来可能是1500英尺的房子(?),大约180英尺的围墙,其中一些是毗邻车库。有10英尺高的天花板,总共有1800平方英尺高的墙面面积。如果窗/地比为15%(你的可能比这个小),大约225平方英尺的墙是窗户,另外21英尺是前门,所以只有大约1564平方英尺的墙。
粗略估计热负荷…
...假设99%的室外设计温度为+8F(波士顿是+12F,弗雷明汉是+6F), 60F的温差…
...一个2x4/R11墙~ U0.1 ..
...一个R20“整体装配(U0.05)天花板…
U0.5透明玻璃+透明风暴…
U0.5 2英寸实心木门
...设计热负荷大概是。
墙壁:1561' x U0.1 x 60F= 9366 BTU/hr
天花板:1500' x U0.05 x 60F= 4500 BTU/hr(假设是阁楼,上面没有空调)
门窗:286' x U0.5 x 60F= 8580 BTU/小时。
把这些都加起来,一楼的传导损耗是22446英热单位/小时。
根据ASHRAE 62.2表4.1a的通风率,你会看到在一层漏风/渗透损失为30立方英尺(= 1800立方英尺每小时),没有卧室(如果壁炉漏风,可能会很高),再加上另一层
1800'cf/h x 0.018 BTU/cf-degree x 60F= 92 BTU/hr
当与足够容量的MXZ-****NAHZ压缩机结合时,整个首台压缩机将低于SVZ-KP24(无热片)提供的25,000 BTU/hr。
http://meus1.mylinkdrive.com/files/M_SVZ-KP24NA_FOR_MULTI-ZONE_SYSTEMS_SUBMITTAL-en.pdf
楼上的卧室有暖气,一楼的热负荷不超过20000英热单位/小时。一楼的冷负荷会更低。
这是一个相当低的性能房子-你可能会比那个好一点(?)。
你绝对不可能需要超过10,900 BTU/hr的热量(除非你没有对地基墙壁进行绝缘,这将是一个严重的错误)或地下室的SEZ-KD09的8100 BTU/hr的制冷输出。如果使用托梁海湾容纳大部分管道运行和使用硬管道,它不需要是一个head banger,但你必须做一些仔细的测量和思考。
http://meus1.mylinkdrive.com/files/SEZ-KD09NA4_For_MXZ_MULTI-ZONE_SYSTEMS_Submittal.pdf
您可能可以做整个事情更干净的2吨3区富士通AOU24RLXFZH比较器,一个7RLFC管道盒为地下室和一对3/4吨ARU9RLFs为一楼,和无条形热备份:
https://www.fujitsugeneral.com/us/resources/pdf/support/downloads/submittal-sheets/ARU7RLF.pdf
https://hvacdirect.com/hvac/pdf/ARU9RLF5.pdf
http://portal.fujitsugeneral.com/files/catalog/files/24RLXFZH3.pdf
与-KDxxNA相比,ARUxxRLF卡带上的较高静压允许您使用更细的导管,并且垂直安装它们的能力节省了空间。它们不会像svz那样推那么高的静压,但它们也不需要——你不用跑一英里长的窄管道。
有类似的解决方案使用MXC-3C24NAHZ或MXC-3C30NAHZ压缩机和一对1吨SVZs和一个KD09,(或三个KD09或三个1吨SVZs),因为你被允许挂高达130%的压缩机容量的盒式磁带的压缩机价值。
http://meus1.mylinkdrive.com/files/MXZ-3C24NAHZ_Submittal.pdf
http://meus1.mylinkdrive.com/files/MXZ-3C30NAHZ2_ProductDataSheet.pdf
http://meus1.mylinkdrive.com/files/M_SVZ-KP12NA_FOR_MULTI-ZONE_SYSTEMS_SUBMITTAL-en.pdf
底线是,一个-8C48NAHZ和三个独立的区域在地下室是很荒谬的,你可能的负载。支付一个合格的和适当的负荷计算和安装正确尺寸的设备将比建议的解决方案的成本更低。
Dana,我刚想起来,我写了一个新帖子,而不是回复你的帖子,所以你可能没有看到我对你的回复……有机会的话,让我知道你的想法!谢谢!
我的天啊你们太棒了。在过去的几个小时里,我从你的帖子中学到的东西比过去几个月来我家的5、6个暖通空调承包商学到的还要多!谢谢你!
我的后续行动:
-杰夫-你推荐他们后我给鲍彻打了电话谢谢!他们预定在3月份安装,所以我告诉他们我会给他们回电话,因为那样会打乱我和地下室承包商的日程安排。谢谢你提供的其他信息!
很高兴听到我不是一个人!在你的建议之后,我确实联系了能源先锋公司,看他们是否能帮助设计。如果你(或任何人)在那里有特定的人,让我知道我应该交谈。
-丹娜-哇,这真是太棒了!也感谢你关于第三方工程师的想法。你住在伍斯特!我以前住在萨顿!随时欢迎您的光临!:)基于我在这个网站上看到的东西,我确实是在隔离墙壁和地基的地板。至于给你数据帮我进行计算,那就太棒了。现有的锅炉是172,000 BTU。我的邮政编码是02421。以下是去年的石油交付量:
日期数量价格金额
2019-11-18 204.9 $3.070 629.04
2019-08-06 112.9 $2.970 335.31
2019-04-15 119.6 $3.070 367.17
2019-03-11 149.5 $3.070 458.97
2019-02-15 167.3 $3.070 513.61
2019-01-21 203.3 $3.070 624.13
2018-12-20 170.4 $3.070 523.13
如果你愿意,我可以私下把计划的完整PDF发给你——只是觉得我不应该公开我的地址?如果你想要就告诉我!对不起,我没有提到二楼和三楼原来-看下面的更多信息。但是,我想我肯定比你想象的更封闭,所以数字可能会更好。在富士通上,你能推荐一个波士顿地区的经销商吗?
我不太明白为什么补热片比油浸线圈好?我油锅炉将继续活跃,2楼和3楼都照顾,空气处理程序,而且我间接热水箱和护壁板热在我的车库上面(让我女儿的房间被冻结,我意识到有可能是一个更好的解决方案,但婴儿的步骤。:))。
关于第三方工程师的想法也一样!为了回答你关于管道系统的问题,请查看新附上的图纸,上面有我用棕色标出的现有供应和退货的粗线。如你所见,它们基本上直接穿过我房间的关键走道,降低了头部空间。一旦你隔离了地板和隔音的天花板,我将只有几英寸以上的我的头,我真的想避免。通过将一楼系统一分为二,房间中间几乎不需要任何拱腹。
更多关于我的房子的信息和我之前被告知的信息:
-这栋房子目前已建成,占地面积约3800平方英尺,共三层楼。它建于2008年,如果这有助于你理解当时的绝缘代码的话。地下室将增加约900平方英尺。
-目前的HVAC系统实际上是两个循环空气处理器,称为一个燃油锅炉和两个单级交流压缩机(一楼3吨,楼上4吨)。一间位于一楼,另一间位于二楼和三楼。为了这个项目的目的,我忽略了楼上的系统,尽管如果我喜欢第一次尝试的结果,我也会计划在某一天用热泵替换它。
-一些承包商告诉我,他们已经做了一个手册J,以计算荷载的地下室和1楼,因为我最初的布局。但我对此的不信任让我来到了这里。:)
-有人告诉我,办公室和地下室的媒体室都有自己的房间,因为出于隔音的原因,门通常会被密封,其他房间几乎没有气流。你们不同意吗?
我等待着更多令人敬畏的评论和反馈!
谢谢,
安德鲁
你们让我的脑子灵光一闪,尤其是富士通可以垂直安装的想法……
请看看我附加的想法。与以前相比,最大的变化是我正在考虑是否能在地下室创造一个三个房间都在一起的角落。Dana提到的一个7RLFC是否能够到达那里并将补给送到上面的每个房间以及从下面的每个房间返回的东西?每个房间最远的地方会有足够的气流吗?考虑到隔音对我来说非常重要,声音会很容易从房间之间的管道传播吗?
关于一楼,两个aru9rlf的空气流量是否足够到达我的距离?如果你想知道奇怪的路线,这是由于我的托梁和想把所有的东西在天花板上尽可能多的愿望,也希望重复使用所有现有的洞在我的第一层的回报。我的返回的右边显示的单位实际上是内置在两个楼层托梁,所以有办法过渡到两个圆形管道吗?
再次感谢,
安德鲁
安德鲁,你最后和谁一起做空调承包商?