重温“仅仅两个小裂缝就可以让整个房子变得温暖和凉爽”
经过对这个网站的大量研究(特别是在关于卡特·斯科特使用无导管的迷你劈叉为整个房子供暖的文章/评论中),我相信空气源热泵是我正在建造的新房子的方法。我在一个相当方形、开放的平面上工作,而且我所在地区的电力很便宜。我的问题是,当使用隔热内墙对所有房间进行加热/冷却时,隔热内墙是否会对无管道迷你隔板的性能产生实质性影响。撇开隔音不说,我很好奇,当没有管道进入房间时,省略内墙隔热是否有助于“平衡”房间间的温度。任何建议或参考文章将非常感谢。
谢谢,
布兰登
GBA细节图书馆
收集一千建筑细节组织的气候和房子部分
搜索和下载施工细节



回复
布兰登,
非绝缘的墙在R3周围,即使没有绝缘,你仍然会得到相当多的温差。假设这个房间有1500btu的损耗,你看到的是大约3F的德尔塔。这通常是很好的卧室在冬天,绝缘肯定会增加这一点,你需要补充热量。
我认为更大的问题是夏天的空调,卧室会很不舒服,除非你把门开着。
在我的区域(第5区),对于用于冷却的迷你隔板,我发现在起居区使用一个头,卧室使用管道单元是最有效的。这让你在满足自己内心的同时仍然拥有舒适的房间。
另外,墙壁的隔音效果并没有你想象的那么好。如果你想要安静,你最好的选择是5/8干墙除以弹性通道。
谢谢阿尔卑斯山脉。我的供暖和制冷负荷回到了相当低的水平,为整个房子提供了18kbtu的供暖和14kbtu的制冷。听起来像我需要是OK与留下门打开,以even out temps或做一个区域,滴一些管道到个别房间。我也在5区,没有湿度,我们的海拔为我们提供了比白天更凉爽的夜晚-我想知道,如果门在白天打开,加上相当凉爽的夜晚将足以避免运行管道?
你可能会侥幸逃脱,但我认为这没有太大意义。
如果您正在建设新的,它是足够简单的包括服务追逐一个细长管道单位。如果你有一个合理紧凑的布局,你需要最少的管道。你也可以和HRV/ERV共用管道这样就不会增加太多成本。
我已经附上了一个单位的图片,一个改造安装,以满足2间卧室,1个浴室和厨房。整个装置刚好能装进走廊的天花板(约占12英寸)。不是最有效的管道,但好到足以保持它低于0.15"压降所需的头。
更大的问题通常是找到人来安装,你必须做一些搜索。我发现有效的方法是安装管道,然后让暖通空调技术人员安装设备。有助于暖通空调公司提前交付管道设备,使管道运行更加容易。
>“…整个房子的供热负荷为18kbtu,制冷负荷为14kbtu……”
楼上一个3/4吨的管道单元(假设卧室在楼上?)和另一个半吨或3/4吨的墙壁或地板盘管服务于一楼的开放式平面图可能是正确的,尽管你可以使两者都是管道。
99%和1%的外部设计温度是多少,海拔是多少?(海拔会影响人的能力,这很重要。)
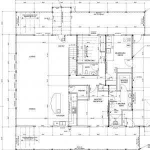
这是平面图的截图。计划是一个开放式大饭店/餐厅/厨房,然后是旁边的房间。卧室和浴室的上方是一间未完工的开放式阁楼。我的设计温度是94/4,海拔约4800英尺。我得到了便宜的电力,并打算在不久的将来建造一个光伏阵列——我一点也不反对在房间里补充供暖,但不确定是否值得为单个房间的冷却付出额外的复杂性。其他提示:我爷爷是我的暖通空调承包商,他将在我的房子完工后退休。无可否认,他是一个经常在这个网站上读到的老派的经验法则的家伙,但是他相信设计负载的数字,并将构建我决定的任何设计。我的偏好是,如果一个非常简单的系统就足够了,那么我不会为了让玩家感到舒适而让整个系统过于复杂。
有了这样一个简单的平面图和低负荷,我将临时为整个地方使用一个单一的管道单元。
你可以把它安装在未完成的阁楼区域,并轻松地从它喂养所有的房间。如果你决定完成阁楼,你可以用这样的方式运行管道,把它们埋在内墙。机械室或食品储藏室的天花板也是一种选择,但这意味着走廊上会有更多的隔板。
在起居空间的周边加上一点电地暖,以及角落里的浴室也有助于提高舒适度。
单户住宅的标准做法是让内墙不保温。如果安装了任何绝缘装置,它要么是为了隔音(它也隔热,但这只是一个副作用,而不是目的),要么是为了一个特殊的房间,如冷酒窖或酒窖。
你应该计算,而不是猜测一扇打开的门是否足够。这取决于卧室的负荷和你能忍受的温度下降/上升多少。
在一个相对开放的平面和低冷热负荷的情况下,我怀疑你会有足够的内墙温差来解决这个问题。更大的问题是外墙面积。即使是在一个超级绝缘的房子里,一个角落的卧室在门关上的情况下可能会在一夜之间下降几度。
但如果你沿着这条路走下去,机械通风会让一切变得平衡。
我会在卧室里放电阻加热器,主浴室作为备用。把它设置得比主要区域低几度。