平衡具体化和操作碳壁组件
上下文
我正在明尼阿波利斯(气候区6)建造一栋公寓大楼,试图平衡三个目标:1)尽量减少建筑的隐含碳;2)尽量减少操作碳排放;3)使模型发挥作用。
该建筑将全部采用电力(用于加热/冷却的小型部件),太阳能阵列足以满足所有6个单元的需求。
最初指定的墙体组件是2×6螺柱@ 24℃,密集填充的纤维素在壁腔1)和3″的连续GPS外部绝缘。
问题::考虑到我的目标,你会选择哪种集会?
情况
在和建筑商进行价值工程的过程中,看来我得把GPS都扔了。建议的墙体组件(成本等价物)为:
1) SIPS使用FSC认证的胶合板和GPS绝缘达到R29
2)带有t型钉和高密度纤维素的棒状框架(R20/21)
方案2的含碳量较低,但比SIP组件的R值低30%。也就是说,建筑物将使用太阳能进行加热/冷却……因此,较低的运行效率不会导致更多的碳排放。
我没有知识,没有团队,也没有额外的预算去花钱雇人来实际计算碳的预期交换....所以希望社区对这一困境的看法!





回复
你也可以看看2 × 8 24OC的厚壁。这将不会比2x6多很多,并将提高您的程序集R值约25%。
下一个设置是9.5“或11 7/8”TJI,用于密集填充的墙钉。这将使您在没有任何外部绝缘和主要标准施工技术的情况下超过原始装配R值。这将需要更多工程来规范设计细节。
看起来有回收的2.5" polyiso为$8/张:
https://minneapolis.craigslist.org/wsh/mad/d/jackson-roofers-contractors-25x4x8/7162659667.html
在芝加哥有一个回收的隔热仓库,有其他厚度可用;航运有点陡,除非你得到的是一栋楼的价值:
https://www.repurposedmaterialsinc.com
考虑2×6螺柱@ 24摄氏度,高密度填充纤维素,然后是1到2英寸有点透气性的外部泡沫。无面EPS是一个不错的选择,<= 1.5"可能更容易构造(没有毛边/螺丝根据这).具有良好的空气密封和II级蒸汽缓凝剂,这是一个很好的设计。
我有1.5英寸和3英寸的GPS建造选项(成本与EPS相当),差异可以忽略不计。建筑周围的行程和与连续外部绝缘相关的细节是成本驱动因素。《建筑科学》的文章《整合厚层》
这表明,对于我们所讨论的相对较浅的深度,通过连续的外部绝缘粘贴包层的方法是相同的。(只是一个长长的扣击螺柱)。
也许内侧有泡沫的价格会更好?
如果你正在调整太阳能电池板的尺寸以满足加热需求,你将需要一个更大的太阳能电池板,以满足较低的r值的加热需求。然后,我们开始询问太阳能电池板和隔热层的隐含碳。对某些人来说,这是一个很好的博士项目,但如果你采用一些再生泡沫或更厚的高密度包装的建议,你可能能够以低成本和低隐含碳获得良好的绝缘。
“也就是说,该建筑将使用太阳能进行加热/制冷……因此,较低的运行效率不会导致更多的碳排放。”
这就减少了昂贵的太阳能电池板。你权衡了这里的成本和那些成本吗?
“1)SIPS使用FSC认证的胶合板和GPS绝缘达到R29”
SIPS可能很挑剔。有一些重大的寒冷天气故障(Lstiburek谈到阿拉斯加的一系列故障需要数千个新屋顶)。如果承包商在建筑周围进行连续隔热时遇到问题,他们是否会对密封SIPS的精细工作有问题?
2)带有t型钉和高密度纤维素的棒状框架(R20/21)
您是否检查过带有2x8或2x10螺柱的框架,或TJI(“木质工字钢”)等同物,以及纤维素?或者用纤维素做一个双钉墙?明尼苏达州的天气是全国最恶劣的。这不一定是一个碳排放问题(仅仅因为它是一栋公寓楼,你就已经远远领先于一户人家了),但对于有外墙的房间来说,这是一个重要的舒适性问题。(同样是三层玻璃窗)。
删除
大多数双城地区的公寓现在都是2x8框架,以满足当前的能源法规。我会诚实地引导你更比你的两个选择,因为它的所有交易,熟悉商业潜艇会比口密封,它可能是类似或更好的总体U因子Tstud大会,和你会得到更好的价格,可以投资其他项目。
当然,我是信口开河,没有做过精确的计算。对此,我们不能全信。如果没有连续的外部绝缘,2x8 @ 24”O.C.致密包装并不太破旧。
最好的
J
编辑:如果你要走这条路,一定要使用胶合板和/或无纸石膏外壳。
Cmfisher,
我认为像你们这样的开发者能够想到这一点是非常棒的!
我将稍微反对这里的纹理,并且说,墙的r值实际上可能没有那么重要。
特别是如果这座建筑有几个小于1000平方英尺的单元,特别是如果每个单元有多人居住。因为多个家庭单元共用墙壁、地板和天花板,所以外部的表面积更小,因此热量损失也更小。你不需要巨大的墙壁来达到真正的低热量损失数字。
你提到你将使用无管道的迷你裂片来加热/冷却单元。有几个可用的单位,可以调制足够低的3/4年,以满足真正低负荷。例如,你的手动J计算可能显示在25度时,每小时700btu的热量损失。很少(如果有的话)单位无管道迷你分裂将调节低,所以他们将是短周期和可能使用更多的能源。
这听起来很疯狂,但除非有一个更好的解决方案(超低调节热泵)多家庭单位,你可能会使用更多的能源与厚壁比你的R-22墙由于过大的热泵单位。然后再次,即使是r-22墙,你的负载可能仍然太低,以防止短周期。
就我个人而言,当涉及到大多数多家庭项目时,我认为内蕴能源比减少热负荷更重要。作为一名绿色建筑工人,我会关注太阳能(就像你一样),包括高效电器,如热泵热水加热器/烘干机,电磁炉顶等。试着创建一个不使用钢梁的平面图。使用先进的框架。
我可能仍然会在excel上运行一些快速的热量损失数据,以找到隔热的最佳点。在天花板和地板上增加隔热比在墙壁上更容易、更便宜。提高脚跟桁架和超级隔热板将会有所帮助。
还有一个小提示:
如果你抛弃了小劈叉,用踢脚板加热,厚墙是很好的。这实际上可能会为您节省数万美元,因为踢脚板很便宜(而且您可能仍然需要一些)。是的,一般来说,踢脚板的热量比热泵的效率要低得多,但是,你的负荷可能会低到2000-4000英热单位/小时每单位在隆冬。迷你分裂单位将有更低的COP,然后无论如何,短周期的剩余加热年。踢脚板是个不错的选择。
唯一的问题是空调。你将不得不单独解决这个问题,这可能会抵消任何选择踢脚板加热节省的成本。窗口单元是一种选择,但它们很难看。此外,使用容纳窗户单元的窗户很难做到超级隔热/密封。你可以忘记开窗式和倾斜旋转式窗户。
里克,
对于一个密度大于6个单元的项目,我同意你将重点放在系统和操作能量的减少上,而不是更多的外部成本。但对于这种气候和项目规模来说,墙体仍然是一个薄弱环节。
这里的木结构墙的最低标准是R20+ 3.8ci或R13+7.5ci或U 0.051。他们到达了那里,但差距不大。他们列出U 0.047为16.3%纤维素框架因子。2 × 8的高密度包装会让你在相同的框架因素下更像U 0.041,从所有方面考虑,这应该是一个更好的交易。
杰森,
这个项目有多大?抱歉,如果我错过了它,但我没有看到它的指定。你引用的代码是否适用于公寓建筑(3单元以上)?我认为你可以在国际建筑规范中使用较低的r值吗?
我在6区(NH)的一栋多户型建筑上运行了手动j计算。我坚持我的意见,即即使在这种气候下,多户型单元也可以实现低负荷2-6000 BTU/hr(99%dt)。
里克,
OP陈述了六个单元,但不是整个项目SF。肯定有办法“避开较低的r值”。例如,MN接受Comcheck作为IECC规定性要求的替代方案,这允许一些非常惊人的“权衡”。我引用的数字直接来自IECC,是一个更好的最低基线。
对于一个人来说,我不接受信封热阻的大小应该适合一个标准热泵的峰值容量。车之前,马。新罕布什尔可能也在气候区6,但1月99%的设计温度,不幸的是不等同于这里的1月。看看明尼阿波利斯2019年持续的低气温……
但我会说我遵循你的逻辑,当没有足够小的加热/制冷设备来匹配小型的、建造良好的多家庭单元时,成本效益之争将所有的芯片堆叠在更好的封装效率上,除了踢脚板供暖。这不是很遗憾吗?
看看这个....杰森,我想我们在这一点上基本上是一致的:-)
“新罕布什尔州也可能处于6号气候区,但遗憾的是,1月份99%的设计温度并不等同于这里的1月份”
根据能源之星指南,黎巴嫩NH(建筑所在地)的设计温度为-18F, 99%,而MN的亨内平县是-11F。我使用-7F作为我的J手册,这可能是一个合理的数字,对于两种气候。明尼阿波利斯,按照你的观点,可能会稍微低一些,在-8.6华氏度到-11华氏度之间,这取决于社区。
https://www.energystar.gov/sites/default/files/asset/document/Design%20Temperature%20Limit%20Reference%20Guide%20%282019%20Ed%29%20-%20ENERGY%20STAR%20Certified%20Homes\u Rev10.pdf
“我不认为外壳热阻的大小应该适合标准热泵的峰值容量。车在马前。”
我同意——特别是对于单户家庭来说,即使是在寒冷的气候下,即使是最绝缘的家庭,在隆冬时的负荷也可能超过6000英热单位/小时。添加尽可能多的绝缘材料,然后添加最小的热泵,你可以找到(至少有一对夫妇选择)。
但是,如果你给一个多家庭单元增加了很多绝缘(这是这个问题的主题),那么你的负载就会非常小,以至于你不得不质疑当前可用的迷你分裂单元是否可以调整到这些微负载,特别是在肩季。此外,由于设备运行时间不够长,无法降低潜在负荷,还可能存在舒适度问题。
如果采用迷你分裂的方式,将会实现什么样的cop ?如果厚墙的COP比薄墙低(尤其是当我们处理这样低的负载时),是否能实现很多(如果有的话)节能?如果你已经将峰值热负荷降低到3- 4000英热单位/小时,使用R-15墙,那么我们真的需要更多的隔热材料吗?还是应该关注其他领域?将峰值负载从3000英热单位/小时降至2500英热单位/小时,所节省的能源(如果有任何节省是因为降低COPS)是最小的。这就是为什么我说,对许多多家庭单元来说,预先的内化能源/碳比减少HVAC能源负荷更重要。就像我之前说的,应该更加注意热水的使用,太阳能,感应炉灶,热泵干燥器等。
肯定有办法“不受低r值的影响”。例如,MN接受Comcheck作为IECC规定要求的替代方案,这允许一些相当惊人的“折衷”。我引用的数字直接来自IECC,是一个更好的最低基线。”
我觉得有道理。如果代码需要更厚的墙,那么关于更厚的墙的争论就没有意义了。你必须这么做!:-)
杰森和里克,
你的后援和第四名为我和我的建造团队提供了非常丰富的素材。谢谢你!
不幸的是,成本仍然是一个问题(这是一个有效土地成本为零的填埋项目)。
我现在可能不得不采用PTAC的方法来加热和冷却设备。外部信封上有6个大洞,以及所有其他众所周知的问题……我努力寻找一个寒冷气候的PTHP解决方案,但在我的市场上没有。Innova产品(https://innova-usa.com/hpac-2-0/)似乎是完美的,但将45K交付给我需要的12个单位。冰空气公司有一个PTHP,在启动电热之前可以降到17华氏度,但他们似乎没有兴趣在这里供应我。
从空气泄漏和热桥接的角度来看,对ptac有什么想法吗?
我将在2 × 8帧选项上做一个成本测试,但我猜它也将是一个遥远的桥梁。
下面是一个需要考虑的高性能ptac/pthp。
https://www.hotspotenergy.com/hotel-air-conditioner/
大多数ptac是非调制的。即使是最小的一个也可能是这样小地方的4倍大,更不用提你建议的在每个单元里放两个。
这些装置足够小,即使在你的气候条件下,你也不需要一个超热的迷你分割装置。你可以选择一个有底部平底锅加热器的预算迷你分割装置(我花了大约800美元买的)。安装后,加上卧室/浴室中的一段电动踢脚板,可与2倍PTAC+套管的成本相媲美,且效率/舒适性/噪音更高。
如果你花两倍的钱去买一个像格力蓝宝石这样的东西,你会不会在更低的环境温度下为自己买单呢?
请注意,如果居住者将卧室/浴室的温度设置为与主房间相同,那么100%的卧室/浴室负荷将由电阻热提供。所有季节长。
请注意,迷你分割过大尺寸/循环应该是一个小于15%的效率问题。转换到电阻热是一个不可比拟的200-300%的效率问题。但最好还是把它们换成美元。
你能链接到一个“带底锅加热器的预算迷你分割”的例子吗?
>“我现在可能不得不走PTAC路线来加热和冷却设备。外部信封上有6个大洞,以及所有其他众所周知的问题……我努力寻找一个寒冷气候的PTHP解决方案,但在我的市场上没有。Innova产品(https://innova-usa.com/hpac-2-0/)看起来很完美,但我需要的12个单元的售价是4.5万美元。“冰空气”有一个PTHP,在启动电加热之前可以工作到17华氏度,但他们似乎对在这里为我供电不感兴趣。”
它不需要在热泵中工作,只在你的一月平均温度,使季节性能源使用的巨大差异。将低于机组转换温度的每小时回收箱加起来,并与热泵模式下的回收箱进行比较。大多数采暖季节的时间和采暖能源使用(甚至在明尼阿波利斯)将高于随机低成本PTHP的典型~ 25F交叉温度:
https://www.climatestations.com/images/stories/minneapolis/mspcumt.gif
即使在1月份,也有很大一部分时间在25华氏度以上,在供暖季节最冷的10个星期里,大约有一半的时间在25华氏度以上:
https://weatherspark.com/m/10405/1/Average-Weather-in-January-in-Minneapolis-Minnesota-United-States#Sections-Temperature
在漫长的平季,大部分时间都在25华氏度以上。
在相对低成本和更环保的电网位置的低负荷建筑中,花额外的钱购买低温PTHP或在仅使用热泵模式下完全覆盖99%甚至95%热负荷的小型分体并不一定是“值得的”。这对于非调制系统更是如此,在这种系统中,为了覆盖一个稍微低一点的温度仓,过大的尺寸会导致在更长的肩季中显著增加开/关周期。
@Akos -听起来这是你推荐的解决方案。“你可以选择一个有平底锅加热器的预算小的split(我花了大约800美元买的)。如果在卧室/浴室中安装这种装置,再加上一段长度的电动踢脚板,其成本将相当于2倍PTAC+套管的成本,并具有更好的效率/舒适度/噪音。”
@Danna Dorsett-看起来你是在建议任何低成本PTHP作为一个合理的选择。
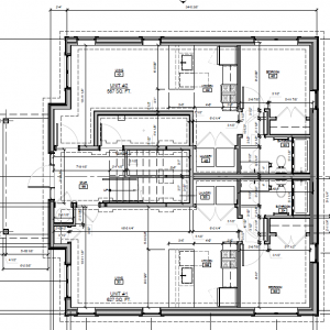
顺便说一下,这是三层楼,1399平方英尺。最大的单位尺寸是624SF。附寄是楼面简图。
老实说,我在这一点上的讨论有点游泳,我在想,我应该雇佣一个工程师来设计系统的成本考虑。感觉暖通空调承包商正在推动一个超大的系统,而没有考虑所有的变量在这个线程。
有暖通工程师的建议吗?
如果没有人对实际单位进行负荷计算,很难说哪种方式是最好的,哪些是过大/过小的。我的建议是根据我的经验与绝缘较差的多家庭单位,负荷往往是非常低的。
至于预算的迷你分裂,我已经使用了这个的12000btu版本,工作得相当好。在接近0华氏度时,容量确实会显著下降,但它仍然能够为您建议的小单元供暖,特别是如果卧室和浴室有补充的热量。
https://ashp.neep.org/ !/产品/ 25289
@Akos -听起来这是你推荐的解决方案。“你可以选择一个有平底锅加热器的预算小的split(我花了大约800美元买的)。如果在卧室/浴室中安装这种装置,再加上一段长度的电动踢脚板,其成本将相当于2倍PTAC+套管的成本,并具有更好的效率/舒适度/噪音。”
@Danna Dorsett-看起来你是在建议任何低成本PTHP作为一个合理的选择。
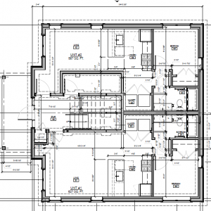
顺便说一下,这是三层楼,1399平方英尺。最大的单位尺寸是624SF。附寄是楼面简图。
老实说,我在这一点上的讨论有点游泳,我在想,我应该雇佣一个工程师来设计系统的成本考虑。感觉暖通空调承包商正在推动一个超大的系统,而没有考虑所有的变量在这个线程。
有什么建议
cmfisher,
看起来像一个伟大的建筑!我喜欢这个设计。你在这里有一些伟大的东西-不要放弃!:-)
你打算用什么窗户?这些是高档公寓吗?我只是想知道你们是否可以在卧室里安装踢脚板暖气和窗户装置(特别是如果卧室面对建筑的后部)?
谢谢你的鼓励和在这个帖子上的所有参与!
所有的窗户不是固定的就是开窗的。我花了大量的时间去寻找我能负担得起的低于0.19 u值的玻璃纤维框架。在我所在的地区,我基本上找不到任何符合这些标准的产品。最初的规格是科尔比玻璃纤维窗,u值为0.21https://www.kolbewindows.com/.这个窗口包裹在....上运送了3.5万美元在价值工程中被淘汰了。现在我有一个来自Pella的黑胶包装,u值稍好一点,为0.19,售价为17K美元。
我选择开窗是为了密封空气。这使得窗口单元不是一个选择。
在这个市场上,这些装置将被视为高端产品。花岗岩柜台,LVP,有限瓷砖。卧室在后面,因此可以切换到带窗户的单挂式。
如果你对窗户有什么想法,我也愿意。我已经确定了价格:Anderson, Marvin, Kolbe, Pella, Jeld Wen, Optiwin, Tanner,和ThermoTech。
一种常见的策略是固定在遮阳篷上。遮阳篷窗户很像平开窗,其优点是它们通常较小,因此您可以将更多固定的框架玻璃区域替换为相同的开口尺寸,以节省一些成本。此外,遮阳篷上的锁紧硬件也不必像传统的锁紧硬件那样,在垫圈的线性英尺数较少的情况下进行压缩一个平开窗,意味着更好的气密性。这是假设窗户是工厂加热气密的,并且安装良好。
在可行的地方使用固定框架,因为可操作的窗户会增加$$,而且几乎总是不那么密封。