寻求对柔性管计划的看法
嘿所有,欣赏任何经验或洞察力。我已经阅读了所有Allison Bailes在Flex上的文章。我早些时候发布了一些关于我的加州HVAC局势:
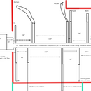
我已经附上了我的HVAC导管的粗略草图。这是我家的重要统计数据:
1.单户住宅,1500平方英尺,爬行空间
2.气候区4a
3.在南侧增加,300平方英尺(包括在1500平方英尺的总数字)。在国际海事组织看来,暖通空调承包商的规划很差。两个6″flex线运行通过原来的基础到另外,30-35 '运行。这里有很大的舒适度问题(我也不挑剔)。
4.我跑了一份手册D(我是工程师),分支基本大小正确除外。所有分支机构都是6英寸柔性。但是,电源和返回看起来现在应该是16英寸,并安装副14“。
最后一篇文章是#3。从那时起,我将良好的CFM改进重新路由其中一个添加线。我计划将剩余的线路重新运行到此外的加入,并评估今年冬天和明年夏天的表现。可能必须扔进助推器,升级到8“,或者如果不可接受(或做一个Miniasplit!更喜欢用一个单位粘在一起)。
我也在考虑和优先考虑长期的管道总体改进,记住,我的包单元已经13年了,它的最终替换将是做任何主要管道工作的好时机(如必要时更换静压管)。
关于我目前的管道系统,我注意到以下几点:
所有柔性都是未压缩(不牢固)和坏转弯的。我最终会拼写弯头所有寄存器盒,并正确重新弯曲,用乳香密封。
2.占300平方英尺的加法后,手册D从14“到16”供电和返回全部内容。我有14岁的安装了。我必须承认回报有点吵,但这可能只是退货登记率是尺寸的。也许在这里进一步调查。
3.两种供应率在通风管扩张的8“内运行。我读过这应该更像24“从endcap(https://www.rses.org/assets/serviceapplicationmanual/630-148.pdf)
4.如果我有一个“减少”的气箱(比如从14″到更小的直径在某个点),我的一些供应可能不是4英尺从那个过渡。但我不确定它是否减少了。我认为是这样,但当我看了全会内部(通过一个起飞孔),我最初认为有一个过渡的地方,两边看起来都一样。更多的调查。
我正试图优先考虑这些问题的大量达成款项,寻找任何建议。我的思想是我现在可以解决#1,当我通过安装新的电源和返回增压机时,我可以解决新的包机时,可以解决#2-4,允许完整的管道重新设计。
现在,基于主楼的整体舒适度(不,我还没有测量房间之间的温度或压力,但我个人感觉很舒服),我认为第三和第四项可能不值得去研究除非我全新导管追求#2。我的直觉是,第二点可能不是什么大问题,因为我在14″可以接受的手册d。我还没有定价16″钣金,但与所有事情一样,劳动力是最糟糕的部分(我或别人)。
任何经验或见解都非常感谢!我不是被动节能的人,只是想改善任何“糟糕的”或“坏的”类别!
编辑:我忘了提到我有一个退休的朋友,他在暖通空调方面慷慨地免费帮助我(他曾经上过暖通空调学校,现在正在实践)。他有烟机,压力计,等等,我可以用来诊断管道。我打算让他帮我测量外部静压。他也会在时机成熟的时候帮助我安装新的套件,尽管我不确定他对全会替换会有多兴奋。我或许可以找其他更年轻的人来做这个工作,不过我可以用顶级的波旁威士忌和啤酒来交换。
谢谢你!
埃里克



答案
第一条可能是你最大的问题。与刚性管道相比,完美安装的柔性管道在背压和流量限制方面要糟糕得多,但如果它松散下垂,有弯曲的紧密弯曲,那就更成问题了。我会试着把所有的柔性管道换成刚性管道。在一个典型的商业建筑中,柔性管道只用于供应空气箱和天花板通风口之间的短期运行,在那里没有太多的选择。
在相同的风量下,小于最佳风道系统的风速会更高。更高的流速也意味着更多的流动限制。这对整个系统性能的影响有多严重取决于实际输送的风量以及运行的时间。如果规模过小的运行是短期的,那么总的影响将是低的。最糟糕的情况是长时间运行的小风管流量大(例如,如果所有的通风口都在小风管运行的远端)。在分布式系统中(通风口沿管道长度分布),管道尺寸过小的影响会随着你离供应源越远而减小。你最大的问题会出现在前一段时间的1/3到1/2。在不知道实际空气流量(CFM)的情况下,很难说得更多。
与前两个相比,#3和#4在整体冲击方面是最小的。除非您尝试优化到最大的所有内容,否则我不会担心这些。
比尔
比尔,非常感谢你的见解!那我就不为小事操心了。往下爬,再做一次弯曲练习,第二次会快一点……
埃里克