棚屋脚下的牛皮纸绝缘
Miles Teselle.|发布了一般问题上
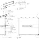
附件照片中所示的棚屋屋顶是用11 /8″高I-joist椽建造的。再读一遍这篇文章(https://www.greenbuildingadadadisor.com/article/how-to-build-an-孤立 - 诊断),很不好意思地说,我还有一个问题。对于天花板绝缘,我们计划使用R-38C,这将给我们在棉絮上方大约1.5 /8″的空气空间。我们在I-joist块的腹板上创建了通风口,并在每个椽湾的顶部和底部设置了刚性泡沫挡板。请见檐和脊细节,附。R-38C低于最低标准,但我们得到了建筑检查员的批准。我们用牛皮纸面R-21隔热墙。该项目位于哥伦比亚峡谷,气候区5B。
请看我的其他问题,在这里:
//m.etiketa4.com/question/insulation_at-lookout-rafter-bays?discussion=edit.
问题1)我们确实想使用卡夫面R-38C,对吗?提供阻汽层。天花板将用干墙,用乳胶底漆和油漆。
侧面注意:由于供应链问题,我们不确定R-38C将再次提供。




答案
英里,
R-49通常是你所处气候的推荐目标。你为什么要选R-38?
谢谢,史蒂夫。为了维持在绝缘体上方的1 1/2“通风通道,R-38只有足够的空间。我可以将椽子下来,但没有足够的余地。我们已获得R-38的建筑检查员批准。
其值得的是:R-38在2017年俄勒冈州俄勒冈州普罗斯(大于2:12)的规范投诉:
https://up.codes/viewer/oregon/irc-2015/chapter/new_11/energy-efficiency#new_11
表N1101.1(1)规定的包络要求
-注意(g)拱形天花板表面积超过总加热空间地板面积的50%,其u系数应不大于U-0.026(相当于R-38椽或带有R-38高级框架的剪刀桁架)。
这沿着哥伦比亚河峡谷的俄勒冈州俄勒冈州(Portland / Multnoomah County)到5B(Hood River County和Easwards)持有真正的一切,
虽然经验表明,“干”在瀑布的雨影的瀑布中,虽然“干”并没有真正开始直到略微进一步东方!
谢谢你!是的,事实上,我们的地区被认为是“干燥的”对我来说总是有点可笑。;-)
嗨英里,
检查员可能会接受R-38,但你必须接受次优绝缘。如果这是我的房子,我会尽量靠近R-49,以增加舒适度和效率。你可以使用回收的外部硬质泡沫(5英寸EPS)和内部空气渗透泡沫的组合,或选择无通风的屋顶与HFO封闭单元(R-20)和空气渗透。
在这个过程的这个点做正确的事情要容易得多(也便宜得多)。
谢谢,史蒂夫。金属屋顶已安装。对于回收的外部刚性泡沫,您是否在谈论在内侧,与内部透气泡沫相结合?
对于您建议的任何一种情况,您推荐内部透气泡沫的厚度和规格?
此外,当我在隔热板时,我建议回收外部硬质泡沫,但我找不到当地的来源。我住在俄勒冈州波特兰。
有关如何隔离监视椽子的想法(垂直于主要椽子湾的那些),请看我的其他帖子,在这里:
//m.etiketa4.com/question/insulation-at-lookout-rafter-bays.
闪光灯和击球法(第二种策略)可能是最实际的选择。如果可能,使用HFO封闭细胞,因为这种类型的发泡剂对环境的不利程度较小。
让我们看看是否有专家会插话。他/她可能会有更好或更便宜的建议。
好的,谢谢史蒂夫。
我同意R-49是一个更好的最小屋顶绝缘水平,但每个项目都是优先事项的平衡,几英寸泡沫的气候影响可能高于仅限R-38的运营排放增加未来几十年。但是,如果您能找到回收的刚性泡沫,您可以拥有所有世界的最佳 - 更好的能源性能,提高舒适性,降低的能源票据,没有基于材料的气候影响。
您将符合规范,只是油漆干墙在内部-您不需要添加牛皮纸面,尽管它也不会伤害任何东西。重要的是保持天花板不被渗透,或者密封任何渗透——“密封的”电气装置实际上很少是密封的,这会导致能量损失和与湿度有关的问题。
迈克尔,
非常感谢。你还有时间看看我的另一个问题吗?
https://www.greenbuildingadadadisor.com/question/insulation_at-lokout-rafter-bays#Comment-194890.
>无基于物质的气候影响
每当有人购买刚性泡沫(例如XPS)时,他们都会鼓励使用更多。如果由于气候影响而没有第二个买家,原始用户将重新计算其净成本,更有可能购买他们以后可以销售的东西。所以有影响。然后有事实是,它在这里,每r作为新的eps的成本相同。
乔恩,我同意,并对我所做的方式有所了解我的回答,这使得遵守简单的事情。当然提供二级市场鼓励继续利用气候损坏产品。我想知道首先将泡沫因素的使用末端价值有多少钱。我猜一些,但不是很多 - 可能接近零。我相信,考虑到所有因素,再生XPS的环境影响较低,而不是新的EPS,但我很乐意看到一些数据。
我同意,我们需要更多的数据来判断影响有多大。但同时,我的建议是像对待象牙一样对待它,“永远不要购买HFC-134a XPS”。如果成本合适,且不能使用非泡沫绝缘材料,回收聚iso或EPS可能是一个不错的想法。
区域5中R38和R49屋顶之间的能量损失差异足以不担心。在我的设计温度下,通过R38屋顶通过R38屋顶和1400Btu,1000平方英尺的屋顶松动约1800btu。谈到整个房子的能量使用时,我会称之为差异噪音。
在处理I型托梁时,更重要的部分是对金属螺柱进行绝缘设计。与普通的球拍不同,这些球拍更宽,可以紧贴在托梁网之间。
得到这些和安装他们小心比一点额外的R值更重要,加上你会失去更多的间隙在你的绝缘。
P.S.漂亮的构建。我喜欢简单的干净形状。也有适当的阴影的好工作。
嘿,谢谢!感谢您对为金属螺柱设计的绝缘的尖端。我会调查这一点。我一直认为这很奇怪,他们不会为i-托梁做绝缘设计。
>我们想要使用牛皮纸面吗?
Lstiburek说Z5有通风屋顶的II或III类。我将使用一个有点聪明的Class II,所以< 1电烫油漆,牛皮纸面或尼龙薄膜(如,MemBrain)。
不常被讨论的是,这完全是关于有多少水分进入和有多少水分流出的问题。因此,空气密封内部非常好,如果你使用排气挡板,确保它是高烫发(让水分出去)。
嗨乔恩,
谢谢你的信息,
里程