为什么回风管道上有冷凝,阁楼上也有霉菌,整个家庭的湿度都是60% ?
这个家已经重新装修过了,包括所有新的金属管道和绝缘。我们需要解决的问题是,尽管设备运行效率很高,但室内的湿度仍高达60-65%。在阁楼的回风管道上也有相当多的冷凝。我们已经有两家信誉良好的冷暖承包商来评估情况,但都无济于事。业主试图联系原来的机械承包商,但还不能与任何人交谈。主人已经怀孕9个月,担心这种霉菌会对新生儿造成极大的伤害。我现在想请您评估一下您所认为的问题可能是什么。可能与您的分析相关的其他信息包括:
·1959年佛罗里达州塔拉哈西的牧场式住宅
·1746 SF.
·R19在椽子中的绝缘
·墙壁R13绝缘
·金属屋顶用溶细胞泡沫塑料在R15-20下面
·拱门通风口
·爬行空间有20密耳塑料护套
·底层3/4”胶合板
·墙面为石膏板
·全新的安德森双层玻璃窗
. 古德曼3.5吨冷凝器和盘管/煤气炉
不幸的是,这个问题正在导致项目的重大延误,我们希望尽快控制湿度水平。
另外,在整个椽子上安装了绝缘材料。我还附上了一张照片。
再次感谢,期待很快就与某人交谈。





回复
吉米,
潮湿空气接触冷表面时会发生冷凝。
我们需要更多信息:
1.这是有通风条件的阁楼还是没有通风条件的阁楼?
2.管道是否绝缘?
一个问题是主空间的湿度控制。另一个是阁楼上的凝结物和霉菌。
弱湿度控制可以是超大的A / C单位,其不会足以控制湿度。或者可能是过度渗透,可能是管道泄漏驱动,导致A / C单位必须处理ith的高潜在负荷。
无条件阁楼的管道(如果我理解正确的话)上可能会有冷凝水。这也难怪会导致发霉。密封管道并对其进行绝缘可以缓解问题,但最好将其换到另一个位置,或者换成无管道小型系统,避免使用管道,或者完全密封和绝缘阁楼。
查尔斯,
只有回风管道在阁楼上。我不习惯看到回流管出这种汗。
是的,管道是绝缘的,而且包装得很好。
这所房子最初是通风的。他们用乙烯基覆盖了原来的木拱,我把它拉回来看看下面发生了什么。如果你愿意,我可以给你发照片。
它还具有金属屋顶,似乎没有将脊帽切成椽子。
吉米,
如果我正确理解你,阁楼无条件。这意味着潮湿的室外空气可以进入阁楼。(阁楼不在夏季空调或在冬季加热。)
在佛罗里达州,这意味着您的阁楼充满了热潮湿的空气。空气中的湿度将凝结在任何冷表面上,包括空调管道。
解决这个问题的最好办法是封闭所有通向阁楼的通风口,并沿着屋顶安装绝缘材料。这样就创造了一个没有通风的、有条件的阁楼。
然而,这是昂贵的。如果你不想这样做,下一个最好的方法是在管道系统周围安装更厚的绝缘材料。使用带有乙烯护套的特殊管道保温层。
有关更多信息,请参见创建有条件的阁楼。
我添加了无条件空间的图片。
你好马丁,
我有点困惑。我读了创建一个有条件的阁楼,看起来我已经完成了文章中的一切。我做过以下了:
1.在椽子之间安装R-19
2.在屋面护套顶部安装刚性泡沫板。
3.回风管道用75型玻璃纤维管道包卷翘曲
4.我们有一个金属屋顶,它应该比木瓦凉爽30%
如有必要,我可以从外面密封他的Sofitt通风口。我只有其他我尚未做过的东西是在阁楼安装一个注册格栅。
我错过了什么?
吉米,
谢谢你提供更多细节。所以你有一个没有通风条件的阁楼。
假设你有一台运转正常的空调——它实际上是将室内空气冷却到恒温器的温度——问题的关键是确定导致问题的湿气的来源。两个主要的竞争者是(1)室外空气漏进房子,或(2)建筑的湿度(固化混凝土,干燥木材,干燥干墙化合物)。
很有可能室外的空气通过阁楼的通风口漏进了你的阁楼。也有可能在大楼的其他地方有其他的空气泄漏。测试这些泄漏的最好方法是使用鼓风机门。
如果您的问题是建筑的湿度,那么您应该操作一个独立的除湿机,直到必要的时间,以使室内相对湿度处于控制之下。
你应该在没有通风空调的阁楼上安装送风调节器和回风格栅——只要你确定是否有空气从拱腹漏出。
吉米·米勒写道:
“如果有必要,我可以把外面的通风口封起来。”
很有必要将它们从内部或外部封闭起来。
马丁写道:“所以你有一个不经常的条件阁楼。”
它更像是一个令人透气但有条件的阁楼,这是问题。坐在拱门通风口进入条件空间,这是一个大量不受控制的空气泄漏。这就像离开几个窗户打开,然后想知道为什么AC没有干燥的地方。
也许可以用几个FrothPak包或其他东西从里面把它们封起来——这取决于缺口有多大。
作为临时措施,你也可以在阁楼上安装一台除湿器。[编辑:在关闭拱腹通风口后]如果阁楼密封良好,它将运行很多时间来干燥上面的东西,然后运行更少。如果通风口或其他地方泄漏,它将继续运行,并持续消耗大量能量。因此,这不是一个好的长期解决方案,但它可能是一个有效的方法来控制局势,直到你使用Martin的建议真正解决它。
感谢大家的回复。这些信息很有帮助,并提供了非常需要的洞察力。
我相信从外部关闭所有的sofitt通风口会更容易,因为它是完全可访问的。我将移开乙烯基和封木索菲特。我还将泡沫密封所有室内灯具等整个房子。我可能还会安装一个临时的除湿器来干燥这个区域。
你对密封软木有什么建议吗?
吉米,
您需要(a)在您的外墙上有一个空气屏障,(b)在您的屋顶平面上有一个空气屏障,(c)有一个计划来密封墙壁空气屏障和屋顶空气屏障之间的所有漏气处。这可能很棘手。
你的空气屏障是什么?也许是带OSB护套或胶合板?
你的屋顶空气屏障是什么?也许贴衬板?或者是粘着的硬质泡沫?
想想这两个区域之间的所有转换,然后完全封闭它们。在许多情况下,最好的方法是使用双组分喷雾泡沫套件。
正如我之前所写的,追踪空气泄漏的最好方法是使用鼓风机门。如果你试图猜测漏气,你可能会错过一些非常大的漏气。
马丁,
住宅的外墙采用了原有的墙板,以及3/4的胶合板和特卫强。光滑的哈迪板是墙板。
屋顶有点棘手。住宅最初是瓦屋顶,但由之前的房主升级为金属屋顶。屋顶的顶部有坚硬的泡沫板,但看起来山脊帽的通风口没有被切断。
我们将在安装成品的地板时执行鼓风机门测试。山核桃硬木地板无法安装,直到包含家中的湿度。
安装双组分喷雾泡沫组件需要什么?
吉米,
您希望使用喷雾泡沫密封外墙顶板之间的所有间隙以及屋顶护套的下侧。在某些情况下,在喷洒泡沫之前,将切割矩形的刚性泡沫件以嵌入椽子之间有用。
困难的问题是获取途径。有时从外部做这个工作更容易,在移除底壳之后。有时你可以从内部完成这项工作。
Hello Martin和所有人,
我一直在评估我的选择,并根据情况与朋友讨论建议的补救措施。看起来,用闭孔泡沫正确密封所有开口将是最好的最后手段(风险和昂贵)。很难确保这个家里的一切都是密封的。我们确实在阁楼上找到了一些没有隔热的、汗流浃背的回收箱和两个4“干墙贯穿件允许阁楼内有空调空气。这可能是至少一半问题的根源。在我们尝试完全关闭阁楼通风之前,我们将使用一些管道内衬来隔离回流箱,修补/泡沫孔,看看这是否解决了问题。值得一试,因为它更具成本效益,而且似乎更容易发现问题。
我朋友认为爬行空间之所以保持干燥是因为它被适当地隔离了。他指出的事实是,爬行空间是没有通风的,但有20密尔塑料覆盖在地面上,但干燥。他认为房子已经足够老了,可以证明阁楼可以保持干燥,如果我把回收箱隔热,并阻止空调进入阁楼,它就会阻止阁楼的潮湿。你觉得呢?
我会试试并报告我的发现。
再次感谢,
吉姆
吉米,
如果我的理解正确的话,你会先做几个步骤,然后“在我们试图彻底拆除阁楼之前,看看这是否能解决问题。”
我只想指出,是你决定把隔热层从阁楼地板移到屋顶的。这意味着你已经走上了创建无通风空调阁楼的道路。不管你想不想做这项工作,你的决定都会让你“完全不去阁楼”。
所有这些密封决定都应该在你做评论6中描述的工作之前做出。我已经做了以下事情:在椽子之间安装R-19。2.在屋顶护套顶部安装刚性泡沫板。”)
祝你工作顺利。这里有一些建议:当你在做这些事情的时候——如果你碰巧注意到任何让外部空气进入你的阁楼的通风口——尽量把这些通风口封紧。
“它看起来像正确的密封所有与闭合电池泡沫的开口都是最佳的下班手段(风险和昂贵)。”
空气密封与开放式电池泡沫的阁楼将更便宜,更环保,更容易/更有效。在固化时,高膨胀率使得在更难以达到位置的情况下,使用远更少的聚合物和不使用高全球变暖的吹风剂的差距变得更少。
IIRC是FL的一个承包商(Curt Kinder),在分解泡沫安装设备(几乎都是开放式的)之前,总是在阁楼上使用一个夸张的烟雾机来验证气密性。如果有一条路是不插电的,那就很明显了,那么就需要决定从内部还是外部封闭这些位置是否更容易。
直到你密封阁楼,你会有大量的室外湿度进入房子在冷却季节,无论你帮助走出地狱的冷凝点或不。这确实是正确的解决方案。
好了,伙计们,你们说服我了。我有些犹豫,因为这个地区的一些人认为试图密封阁楼是有风险的,因为我们可能无法到达所有未密封的区域。他们还认为这会让阁楼变得更热,导致屋顶弯曲。他说,如果阁楼没有通风,这个应用程序就无法工作。我打算下周继续。我会随时通知你们的。如果你们有任何建议,请随时发布。非常感谢您的帮助!
再次感谢,
吉米
吉米,
他们在你所在地区的人们敦促你发泄你的阁楼,因为密封通风口“将使阁楼更热”给你不好的建议。
看起来很多人认为排放阁楼是个好主意。系统(安装通风阁楼)已经存在了几十年,它(有种)工作。(虽然发泄的阁楼在马萨诸塞州的工作比在佛罗里达州的工作量更好。)但是你故意决定在路上采取不同的岔路口。你选择建立一个有条件的阁楼 - 所以你不能回头看看伐木工人的伙计们,他们告诉你你的阁楼需要发泄。毕竟,您将刚性泡沫安装在屋顶上方,椽子之间的玻璃纤维桶。这必须意味着你想要一个有条件的阁楼 - 对吗?
所以 - 没有通风口!
我是Dana提到的那个烟熏人。
今年,佛罗里达州北佛罗里达州的母亲都有潮湿的夏天......八月的10英寸下雨。我们已经工作了一堆凝结/模具/霉菌问题。
没有什么比风机门装置更能说明问题了。我很惊讶回流管在出汗——这很少见。
你典型的空调冷却设定值是多少?有些人试图通过降低湿度设置来弥补湿度控制过大或较差的情况,特别是在晚上,为了睡得更好。在我们的气候条件下,设定值低于72是有风险的,尤其是在建筑外壳漏水的情况下。
3.5吨的古德曼可能过大,以合理负荷,并可能缺乏控制(湿度器,可变空气处理程序),以解决潜在负荷。考虑根据风机门试验结果进行Man J负荷计算。
解决点源问题-确保浴室风扇和抽油烟机(如有)在室外通风,而不是进入阁楼。
我肯定是没有辩护的阁楼人群 - 让那个权利!
你好所有的,
我离开是因为我的第一个孩子(男婴)早产了:)。我很快就会回去工作了但在开始发泄之前我有几个问题要问你们。再次感谢大家的反馈。
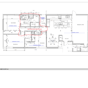
作为一个信息点,我想讨论一下这个房子的原始设计,提供一些背景信息。(见平面图和照片)
房子设计成大教堂风格的天花板,我想是4/12节。大部分房屋(生活区、办公室和卧室)的椽子/桁架上都钉有石膏板。这个区域也有R-19绝缘电池。我们还在j盒上安装了LED凹槽罐,以消除标准凹槽罐产生的热量。天花板下降,在走廊上形成一个阁楼,通向办公室、卧室和浴室(见平面图)。走廊和浴室都通向阁楼。
据了解,我们需要封闭所有外部空气入口。然后我们应该在阁楼上加空调以保持该区域的凉爽。在所有的拱腹通风口都被密封后,是否需要调节空气的区域与石膏板固定在椽子上(4/12节距)?如果是的话,我该怎么做呢?我们目前没有进入那个区域的入口。
再次感谢。
你不必给阁楼空间提供太多的空调,这样阁楼就可以像房子的其他部分一样保持凉爽。空调空气交换的目标是确保空气与房子的其他部分一样干燥,在冷却季节,房子的露点将远低于送风温度。
假设你有泡沫上方的大教堂天花板部分,并且没有内部的蒸汽屏障,你可以密封的底部通风口,以保持潮湿的室外空气。
吉米,
恭喜你!
谢谢马丁!
我相信我理解你的假设,但为了澄清,我们添加了更多的内部照片。我们有3/4的刚性泡沫在顶部的屋顶护套和R-19面棒子在室内的椽子海湾在蓝板下面。
R-19面的球棒是否代表了你想让我避免在内部的蒸汽屏障?
谢谢
吉米,
我假设你是一个全新的父亲。
吉米,
你最初的问题包括你在金属屋顶下安装了“R-15到R-20泡沫塑料”的信息。现在你把泡沫层称为“3/4英寸硬泡沫”,听起来更像R-3到R-3.75的硬泡沫,而不是R-15到R-20。很大的差别。
在你们的气候区(2区),这种类型的屋顶组件在屋顶护套上至少需要R-5的硬质泡沫塑料。这在我的文章里有解释,如何建立绝缘大教堂天花板。
在这一点上,你被你的错误决定卡住了,除非你愿意移除金属屋顶来添加更多的硬泡沫,然后重新安装屋顶。希望您不会因为这一违反建筑规范的技术行为而与当地法规官员发生纠纷。
我的猜测是太瘦的刚性泡沫不会导致灾难。穿过手指。(GBA读者的注意事项:如果您在屋顶护套上方安装刚性泡沫,请不要对吉米进行同样的错误。)
玻璃纤维板上的牛皮纸面还可以——至少不是聚乙烯。
你不需要调节大教堂天花板玻璃纤维板上方的空气。你要做的就是封住你的拱腹和山脊通风口这样空气就不会漏进教堂的天花板。
显然,您的浴室上方的小阁楼是您在那里遇到大部分凝聚问题的地区。一旦你密封了所有通风口和空气泄漏,你可以密封,你可以监控这种情况(即,捅你的头部并偶尔环顾四周),看看是否已经解决了凝结问题。如果问题没有解决,并且在那里仍然潮湿和滴水,那么小阁楼将受益于供应空气寄存器和回流栅格。
棉球上的牛皮纸面是“智能”蒸汽缓凝剂,将减轻轻微低估的外腔R比所带来的小风险。
但是,即使它只是R3,您也有比代码更优化的比率。R5规定性基于R38总R码最小值,比率的5/38或13%的总R.您在椽子中具有R19,并假设R3在屋顶甲板上方共〜R22。R3 / R22超过13.5%,因此屋顶甲板温度将如此宽松更温暖(=干燥器),而不是在代码规定的水平。如果这些椽子为5.5“深2x6,则R19在R18中进行了真正表现,总R是R21,其促使比率与R3 / R21 = 14%,甚至更好。
而且,你有一个聪明的蒸汽缓速器(=牛皮纸facers)在内部一侧。
因此,大教堂式的天花板屋顶平台有足够的保护,它不需要通风,但一个性能更高的天花板可能仍然是值得的。如果合适的话,石膏和椽子之间一英寸的无表面EPS或XPS将会有明显的改善,而不会使内部太不透气(尽管它仍然处于最小代码下)。即使将内部泡沫层的蒸汽延迟率降低到13%以下,内部泡沫层的蒸汽延迟率也足以抵消外部泡沫层过薄的影响。对于无表面EPS,你甚至可以将其设置为1.5英寸甚至2英寸,但XPS在1.5英寸或更厚时就会开始变得有点太紧气。但如果石膏已经放进去了,就不值得再重做了。拆除它并添加一点内部泡沫的成本最好花在其他效率措施上。
“谢谢你,马丁。”我是个新爸爸了:)马丁!第一次!
我很抱歉马丁,我可能犯了错误的术语,因为它与刚性泡沫相关。我没有意识到在护套上方可以使用的差异。金属屋顶和泡沫板由前一个房主安装。不幸的是,他们在安装屋顶时没有提出许可证。我们从联系金属屋顶供应商提供提供材料到以前所有者的历史数据。我会看看我是否可以确定屋顶护套马丁上方的确切类型的泡沫。总是更好地了解!
只要它是3/4英寸,这不是一个问题,独立于泡沫类型,考虑到椽子上只有R18-R19。
如果是R38在椽子里会有一些风险,但风险仍然很低。
对于没有睡觉的人来说,你写得很好!:-)(乐趣刚刚开始 - 享受!)
无论如何我不是一个专业人士,但我们的房子和阁楼在装修后也有非常高的湿度,而且它是紧紧绝缘的房子,房子处于负压。我们排出的空气(通过浴室风扇、漏水的管道和氡风扇)比我们供应给房子的空气要多。所以房子里的湿热空气从每一个裂缝,每一个裂缝,每一个壁炉,每一个窗户,每一个门都被吸了进来这就是为什么我们不能用暖通空调系统和除湿机来控制它。
这被诊断出患有非常便宜和轻松的烟雾测试。我们最终添加了新的空气摄入量(向房屋添加供应空气),在地下室关闭HVAC供应通风口,并暂时关闭氡气。在这样做之后,我们的室内湿度立即下降了15%-20%。也许找到室内空气质量/或能效专业人士,谁能理解负压,并让它们进行快速测试?
你好,
再次感谢你的建议。我检查了泡沫板上面的护套,它是1"泡沫。我将在明天取下乙烯基底盖,是在原来的底盖和连续的通风口。我还计划密封最初的连续通风口与伟大的东西,大差距专业。这是我在这片区域唯一能找到的密闭泡沫。希望它能把这些通风口封起来。我将发图片。
好东西并不总是闭孔的,这取决于它有多大的膨胀,但这很好,因为开孔泡沫也是一种很好的空气密封材料。
提示:如果您拍摄的喷水瓶和雾气,您打算密封的表面,则从罐中获得大量体积,并更好地填充空隙。看:
//m.etiketa4.com/blogs/dept/musings/justin-fink-s-canned-spray-foam-tip
谢谢Dana!我一定会用这个技巧。:)
大家好:
我知道已经有一分钟了。我一直在努力管理其他项目,并适应成为一名父亲。我已经密封了Soffit通风口,泡沫膨胀得很好。我为房主安排了一个吹门测试,以评估房屋的渗漏情况,但能源评级机构认为房子还没有完全准备好。他们建议我们在底层地板的所有连接处都用泡沫泡起来,以防止排气孔的空气渗进调节过的空间。他们表示,从底层地板的接缝处漏出的空气太大,不值得进行测试。他们还表示,如果不先密封接缝,铺上屋顶毡纸不足以阻止外部空气进入空间。能量评估者认为这是内部湿度问题的一部分。我告诉他们,我想在装修完成之前和之后对房子进行一次鼓风机测试。此外,他们不希望我们在进行测试时让阁楼的通道开着。 I have following questions:
(1)在上述条件下,是否有人了解鼓风机试验的有效性?
(2)鼓风机试验时阁楼通道是否保持打开状态?这难道不是唯一能判断井底通风口是否密封妥当的方法吗?
恭喜你成为父母!(祝你今年能好好补觉!:-)
在佛罗里达气候条件下,通风爬行空间是一个巨大的潜在负载/湿度问题。“正确”的事情是把它转换成一个密封的有条件的爬行空间,阻止在地基和地面上的空气渗透,而不是在底层。
在您的气候中,一个带通风的爬行空间的空调房屋可以看到坐在夏季的托梁和底层的水分含量极高,因为地板上的温度经常在室外露点或低于室外露点时居住。如果将爬行空间封装以保持室外空气,并且有一个地蒸汽屏障,以保持地面水分,爬行空间中的空气的露点轨道轨道(特别是如果您用小小的通风上面房间的条件空气数量。)
//m.etiketa4.com/blogs/dept/musings/building-unvented-crawl-pace.
在气候区1/2中,它甚至不需要隔离爬行空间墙壁以满足IRC代码的最低限度,尽管一寸的火灾额定热带不会是一个可怕的想法,因为这将是“地球夫妇”房子到地上的房子在几乎理想的温度下。
http://publicecodes.cyberregs.com/icod/irc/2012/icod_irc_2012_11_sec002.htm
是的,在测试期间让阁楼舱口开着,并在测试期间关闭它,看看是否有区别。这是(ab)使用评分者的测试作为诊断目的,而不是评级目的,但只要你不让他们与47个打开或关闭的门和舱口的实验,他们可能不会介意快速浏览阁楼访问一次或可能两次。用一个大的窗户风扇,你可能可以给房子加压,看看空气是否很容易进入部分开裂的阁楼通道,甚至在那之前。
谢谢你达娜!我的儿子正在像杂草一样成长。:)
我已经阅读了许多文章,包括在关闭爬行空间的情况下发布的文章,但似乎似乎似乎仍然是一些灰色区域。这些物品有关于让条件空气进入爬行空间的免责声明。如果由于氡和压力处理的木材可能迁移到条件的生活空间,这种选项似乎没有危险。爬行空间目前具有如这些文章所述的墙壁上的地蒸气屏障,但通风口仍然是开放的。根据我的研究,蒸汽屏障已经被规定至少一年半。我还检查了木材的模具生长,我没有看到任何重大增长的迹象。我也担心和紧张地用家里的燃气器具创造这样一个气密空间。(生活空间很好地密封,窗户门等),即使,我将不得不从外面带来一些新鲜的空气以燃烧目的,它仍然让我感到紧张。我宁愿担心与一氧化碳和氡气等爬行空间的爬行空间泄漏等等是附着的爬行空间,边缘梁和基础码头的照片。
因此,我正在考虑安装2个地下豪华2扇风扇通风机(见图),以排除爬行空间的湿气。希望这将管理和保持水分进入条件调节的生活空间在控制之下。每个2个风扇通风机抽吸220 cfm,并有一个内置的除湿器,可根据描述设置。通风机的计算方法是,用长度×宽度×高度乘以15分钟,计算出15分钟内需要使用多少个通风机才能使空间干燥。我也会喷地板的接缝,以减少空气泄漏到有条件的生活空间。我还计划通过使用Fieldpiece袖套干湿计定期检查霉菌生长和湿度温度来监控情况。以下是关于这所房子的一些事实:
-房子周围有11-8x16的通风口。(见附件图)
-爬行空间高度为2.5
-Supply管道用Carlisle que-grap 404胶粘剂的密封件,并用大约约翰曼维尔制造的75微米。
是否有人对此策略有任何异议或建议?
再次感谢!
当底层的温度低于室外空气的露点(在寒冷季节很常见)时,主动通风的爬行空间并没有去除湿气,而是吸收湿气。
封闭爬行空间的墙壁不会影响燃气燃烧器,就像封闭底层一样,并且泄漏到爬行空间的空气也不能替代足够的补充空气。
吉米,
如果你想使用排气风扇从空调爬行空间抽风,你应该根据规范的要求尺寸风扇。这些要求在我的文章中有解释,建立一个不经常的爬行空间。
对于配方要求,风扇额定为每50平方英尺的爬行空间地板面积1 cfm。您建议的风扇额定为440 cfm -足够22,000平方英尺的爬行空间。那是一个相当大的爬行空间。事实上,你的爬行空间大约有1900平方英尺,所以你所需要的只是一个额定38 cfm的风扇。
这种方法还需要安装一个地板格栅,允许楼上的空调空气通过地板格栅进入爬行空间。