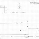
平顶 - 倾斜和绝缘
我拥有一家习惯2-3的故事山坡3300平方英尺的岛屿家庭,在1972年建于1972年的Gig Harbor,Wa(气候区4C)。我是第二个主人,并于1986年购买了家庭。房子屋顶由80%的金属组成在6:12的俯仰和20%平顶(〜560平方英尺),卧室翼八个天花板可以亮起互相遮挡的窗户。房屋计划指定R-19玻璃纤维BATT绝缘。平屋顶于2001年取代,脊通风口和割炬安装。这座平坦的屋顶大约三个星期前遭受了泄漏,在行走时,几个柔软的斑点很明显。在秋季和冬季降雨到达之前,我被迫修理这一点。我2001年的检查显示了16英寸中心的2×10托梁。我的目标是三倍:将坡度放在屋顶上,将绝缘r值增加到当前代码,并更换屋顶膜。我今年73岁,在良好的健康方面留在家里。
由于没有明确定义的解决方案,我受到了沮丧。我一直与三家屋顶工商和两家绝缘公司进行磋商,现在只开始达到合理的选择。
为了满足这些目标,两个屋顶机构建议安装ISO板锥形系统,该系统将提供斜坡,并将R值增加到平均约43(31-65)和TPO(20年保修)或PVC(寿命保修)膜覆盖物。这种平顶屋顶和一个窗口的不规则周边将需要锥形系统,以使几个峰和山谷朝向屋顶的峰值。每家公司都去了屋顶供应公司,用于计算机生成的锥形设计计划,尚未完成。
绝缘公司提出了一些不同的解决方案。一个是完全开放的泡沫填充2×10托梁横跨平屋顶。另一种建议是Ram Board & 6”Closed Cell Spray Foam + R-15 Fiberglass Insulation的混合。这两种应用都将在屋顶工人安装最终膜之前从屋顶侧进行。当然,这将需要拆除所有的胶合板和原来的玻璃纤维。同样,这也不能解决斜率的问题。
大家都同意拆除山脊通风口。
我的问题是:
1)关于锥形ISO板解决方案,原来的R-19玻璃纤维电池绝缘是否应该拆除,以创建一个干净的“温暖”屋顶,还是可以保留它,以节省一些成本?
2)该应用推荐了哪种膜;TPO或PVC?
3)在读取帖子上的帖子后,我倾向于深色屋顶,以尽量减少内部水分抽取?你同意吗?
感谢您的及时回复。



回复
迈克,
在屋顶护套上方安装硬质泡沫保温材料是一种可行的方法。如果一些屋顶覆盖层是海绵状的,这些地区当然需要新的屋顶覆盖层。保留现有的玻璃纤维棒没有害处,而且有一些好处。
的确,浅色的屋顶可以使屋顶保持寒冷,在某些情况下会导致水分在屋顶积聚。但只要你的解决方案包括在屋顶覆盖层以上的硬质泡沫,你就不会有这个问题。
任何一种屋顶膜都可以。如果你能负担得起,我建议你去保修更好的屋顶。
有关更多信息,请参阅绝缘低坡住宅屋顶。
他说什么 - 它不需要大量的上面的甲板泡沫来到那里,并且锥形泡沫将让它排出。(无雾露天的雨水西部WA真正平坦的屋顶在Lunacy上毗邻Lunacy。)在4C区,只要您在屋顶甲板上方至少有R10,它可以安全地在椽子中覆盖纤维绝缘或开放式电池泡沫的r40湾,每个IRC第8章:
http://publicecodes.cyberregs.com/icod/irc/2012/icod_irc_2012_8_sec006.htm
所以用2x10的椽架,你可以只是吹他们充满纤维素(r35左右)或玻璃纤维(r38左右),只要薄边缘的锥形polyiso是至少2“厚(R11),压缩的r19在地方。
无论是纤维填充都会符合屋顶的IRC代码最小值,至少有2英寸的垫圈上方的泡沫。如果玻璃纤维在单独的R值(R49,中心腔)上,但用纤维素它仍然会使它成功U-Factor基础由于R10 +热断开椽子,将U形因子降低至小于U0.026,即使薄2“边缘也不会完全加入R49。
如果天花板石膏下有聚乙烯蒸汽屏障,则必须将其拆除,否则膜屋顶和蒸汽屏障会成为防潮器。这是值得钻几个洞或偷看后面的凹槽可以修剪,以验证没有任何塑料薄膜。有一个极小的机会,他们使用了箔面r19,这也必须出来。但是用牛皮纸面或无面r19,你可以用吹制纤维填充它们,这应该比开孔泡沫塑料便宜,当然也比结合6”闭孔+ R15玻璃纤维溶液便宜。
嵌入式照明灯具需要额定用于绝缘接触以填充它们。如果不是,您可能必须替换这些灯具。这些日子有非常薄的圆形低调LED灯具,看起来像凹陷灯,设计用于标准电气盒中的安装,它既便宜,更容易改造,比WA-Code所需的垫圈空间紧密绝缘接触凹陷凹槽标准Edison基础螺旋灯。