HVAC whole home remodel plus addition zone 6
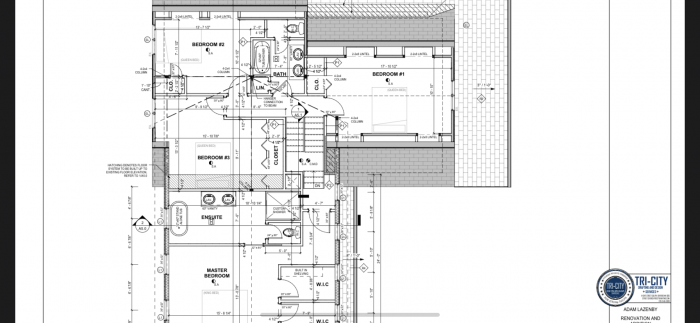
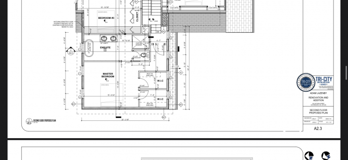
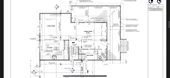
嘿,帮我在找几个想法。我有一个坎e from the 1950s that i am remodeling to live in in southern Ontario. It is about 1500sq/ft with the garage addition. the addition had a master bed bath and walk in closet. The main house will have laundry, bath, mechanical, and rec room in the basement. The main floor is all open except a mudroom and a powder room. The rest of the main floor includes kitchen dining and living. I have attached a few pictures of floor plans.
I would love to put in a heat pump and go ductless but have been told its not too efficient to run here in the winter. We have gas in the house and could use a gas forced air furnace but i’m afraid the bedrooms will not be comfortable. Its also a considerable amount of duct work and is difficult to get to each room. I m also concerned about comfort above the garage. We plan to love there for 40 yr plus so i want to get this right. Any and all ideas would be more than welcome!!!
Thanks so much in advance!
Adam
GBA Detail Library
A collection of one thousand construction details organized by climate and house part



Replies
It's hard to read the floor plan drawings, but looks like a pretty simple footprint to the house.
>"I would love to put in a heat pump and go ductless but have been told its not too efficient to run here in the winter."
Told by whom?
Is it an operating cost issue, a capacity issue, or...???
There are definitely cold climate heat pumps that can operate efficiently and cheaply (may or may not as cheap as gas but it's usually in the same range).
But an DUCTLESS solution would be a comfort problem, due to gross OVERSIZING of for the heat loads of individual bedrooms.
There are several modulating ducted cold climate mini-split heat pumps that could meet the heating and cooling loads of most 1500' homes at southern Ontario type design temperatures.
>" We have gas in the house and could use a gas forced air furnace but i’m afraid the bedrooms will not be comfortable."
With a right sized gas furnace correctly sizing the ducts the garage room would stay within 1C of the rest of the house. The problem with getting comfort in the remote rooms most gas furnaces is extreme oversizing.
Dettson's Chinook series uses tiny ducts (that can be run through 2x4 framing, and comes in a range of sizes likely to be appropriate for a tight, reasonably insulated 1500' house in southern Ontario. Coupled with their modulating Alize heat pump for cooling it could provide both heating & cooling, with all ducts and air handlers completely inside of conditioned space. See:
//m.etiketa4.com/article/finally-a-right-sized-furnace
https://www.dettson.com/products/chinook/
With a right sized modulating system (heat pump or gas-fired) it runs nearly continuously whenever there is any significant load, so you lose the "hot flash followed by the long chill" most people associate with the typical 3x+ oversized hot air gas furnaces.
处理负荷,运行一个IBR或有关Manual-J heat load calculation on the "after renovations" picture of the house, as well as a fuel-used based heat load calculation on the wintertime bills on the "before upgrades" version of the house. See:
//m.etiketa4.com/article/out-with-the-old-in-with-the-new
//m.etiketa4.com/article/how-to-perform-a-heat-loss-calculation-part-1
//m.etiketa4.com/article/how-to-perform-a-heat-loss-calculation-part-2(<
Consider a Minisplit heat pump. Some brands do fine down to -14 F