保持ERV,化妆风和油烟机管道密封
我还有2天的时间进行吹风机门测试,8个月的时间在北威斯康辛建造我们的定制住宅。我们(我认为)无可挑剔地详细设置了一个连续的空中屏障,覆盖了我们所有的基地。家里没有燃烧,我们选择了尽可能少通风的电器(热泵、烘干机和热水器等)。
也就是说,我有(4)8″管道通过墙:
——ERV摄入
——ERV排气
-油烟机化妆空气
-抽油烟机排气
HVAC团队今天在所有4个管道上安装了机械阻尼器,这将是我尽可能保持密封的解决方案,然而,经过检查,嗯,看看图片……每个阻尼器在轴周围有两个镍到四分之一大小的缝隙,这将极大地促进渗透/泄漏。
ERV系统实际上已经在ERV单元本身密封了吗?也就是说,如果我把管道系统密封到ERV上,盒子本身能提供气密性吗?
有没有更好的气密机械阻尼器?我有什么选择来支撑这个潜在的主要泄漏?
谢谢你!
迈克
GBA细节图书馆
根据气候和房屋部分,收集了1000个建筑细节
搜索和下载施工细节




回复
几片暖通胶带?
你应该能找到更好的阻尼器。如果你愿意花钱的话,有一些阻尼器可以在火灾中密封管道(不,我手边没有任何零件编号,对不起),这些类型的密封效果很好——但你要花很多钱。
我认为你最好的选择是去暖通空调供应室,看看哪些阻尼器的设计最好。注意,让你的承包商来做这件事,或者带着你的承包商,你可能会有更好的运气。除非你和供给方有账户,否则供给方在这类事情上往往帮不上什么忙。
比尔
嗨,西风,
非常感谢。在快速搜索之后,我发现你是对的……他们非常昂贵:
https://www.grainger.com/product/DAYTON-Round-Motorized-Fire-Smoke-3HGL5
看起来可以卖到650美元一件,我有4件。这似乎不太可行。
有没有其他更便宜但更密封的选择?我身边没有任何供应场所,因为我们远离任何城市,所以所有的东西都必须在网上订购。
另外,如果我把ERV的管道系统密封起来,ERV本身是密封的还是允许自由流动的空气直接进入配电系统?
寻找FAD-8。这些有泄漏规格,并有一个橡胶垫圈周围的大门,这应该得到一个更紧密的密封。
ERV将(或应该)全天候运行,所以这些阻尼器总是打开的。它们密封得如何并不重要。对于鼓风机门测试,您可以盖住它们。
抽油烟机/上油烟机会有一点泄漏,如果它有一个良好的密封在其余的区域,我猜泄漏将在流量计的噪声层附近。在测试过程中,您总是可以通过在鼓风机运行时封顶这些并比较流量来量化泄漏率。如果它们是一个严重的泄漏,很容易更换它们。
你好所有的,
只是想提供一个最新消息。我们今天进行了鼓风机门测试,需要达到1.1 ACH50,以便我们的负载计算准确,计划的供暖系统工作良好,我们达到了0.39 ACH50!
最初测量时,将上述管道和阻尼器用胶带封住。然后我们又进行了一次测试,去掉了胶带,看看这些阻尼器造成了什么泄漏,发现它们只贡献了0.02 ACH50,使我们的0.43。有了这些,我认为这些阻尼器应该足够了。
我们仍然有更多的措施将采取,将进一步收紧家庭,但我很高兴,这些阻尼器没有做太多的差异,因为我认为他们可能。
尽管如此,我仍然可以看到,阿科斯建议的FAD-8阻尼器将更紧密的橡胶周边密封。他们是延迟订单虽然,我已经安装了这些,所以我计划继续按照给定的结果。
迈克尔,
做得好!
空气密封干得好!
这取决于你的空气阻尼器是如何测量的,你可能想换掉它。如果连接到空气处理器上的回风管,漏水的阻尼器大多是一个问题,特别是如果回风管是限制性的。我看到的回报接近100pa在最大流量,这可以拉相当多的空气,如果阻尼器不紧。如果使用调制单元,这将是全天候的,所以加起来会造成相当大的损失。
ERV将(或应该)全天候运行,所以这些阻尼器总是打开的。它们密封得好不好并不重要。”
这是我第一次听说。我们的车每小时运行20分钟,房子里可能有6到8个人,把二氧化碳水平保持在百万分之700ppm以下,通常低于550ppm。如果我们家里有更多的人(或者在新冠肺炎期间,我们的直系亲属以外的人),那么我们会让他们连续开机。
在新安装的ECM ERV连接到调制热泵的情况下,ERV应该100%的运行。
ERV效率随着通过装置的流速的降低而增加。始终运行80CFM的ERV在50%的时间内提供的新鲜空气量与160CFM相同。如果你看看像松下IB200这样的东西,在更高的流速下大约有10%的效率损失。
在一个调节装置上,空气处理风机将一直运行,所以没有额外的电力成本。
对于大多数应用程序来说,我怀疑这是否会产生很大的影响,但这已经非常接近于免费节能了。这是我如何设置erv时,与管道迷你分裂。我甚至没有把风机和ERV联锁,如果迷你分离器被关闭,新鲜空气就会通过回风管直接供应到家里。
如果你讨论的是单级/两级空气处理程序与PSC鼓风机,这种数学方法都改变了,在这种情况下,循环通常是更好的答案。
“这就是我如何设置erv与管道迷你分离器的搭配。我甚至没有把风机和ERV联锁,如果迷你分离器被关闭,新鲜空气就会通过回风管直接供应到家里。”
你把ERV的电源连接到迷你分流管的哪个部分?
或者你是说不管你把ERV和迷你分离器连接到哪里,因为当迷你分离器运行时,它会把所有ERV的供气吸进供气管道,如果迷你分离器不运行,那么ERV的空气可以通过供气管道或回流管道,结果是一样的?
你好,阿尔卑斯山脉,
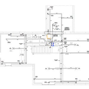
我们的暖通空调安装工作已经进行了很长一段时间,距离准备开始安装干墙还有大约一周的时间。
检验员今天来了,他担心我们没有在所有供气管道上安装“平衡阻尼器”,因此系统无法投入使用并完全平衡以提供合适的CFM。
我确实看到在我的机械计划上写着:
在所有管道系统上提供音量控制阻尼器。平面图上没有显示音量控制阻尼器。阻尼器应该是工厂生产的镀锌压铸控制硬件,控制硬件应该包括重型仪表表盘和手柄,用于绝缘管道安装的高架平台。”
我想这些平衡阻尼器是必不可少的,对吧?为什么暖通空调的人没有安装它们或者在干式墙之后会安装它们?
系统是否需要在薄板砌筑前进行调试,以便调整这些音量控制阻尼器,还是在之后仍以某种方式访问这些阻尼器?
谢谢你!暖通空调的人周二会来修一堆东西,我到时候会让他们解决这个问题。
从主静压箱到每个主干至少应该有一组平衡阻尼器。这是必要的,因为下入的压力永远不会相等,而且没有其他方法可以确保即使是最长的下入也有足够的流量。分区阻尼器也可以通过调整旅行停止工作。
你还需要一个寄存器,如果这是一个全垒打类型的设置,平衡阻尼器可以在单位的权利。否则就在收银机后面,这样你就可以取下烧烤架,伸手进去,根据需要调整阻尼器。你在卧室里使用这些设备时一定要小心,尤其是当你真的需要关掉其中一个设备时,因为它们会产生噪音。
注册格栅也可以有自己的调整,但那是为个人舒适的微调。
初始调试的一部分是确保每个房间从暖通空调设计得到设计的气流。所有这些阻尼器和鼓风机的速度需要调整,直到你看到所需的流量。确保这是干式墙之前做的,以防你有任何古怪的管道。
短的管道设计,以创造刚好正确的阻力在每个位置,真的没有其他方法做这一点,所以耶,平衡阻尼器需要安装。最好是在一个可以随时调整的地方。
嗨,阿尔卑斯山脉,
一如既往,感谢您的反馈。我今天和暖通空调承包商见了面,检查了一切,我更担心了。我们离开始使用石膏板只有一周的时间了,担心可能需要进行更改。说了很多,我不知道在这里该依靠谁,而你一直是唯一正确的人……
总之,暖通空调承包商表示,管道系统可以很容易地满足每个房间的低CFM需求。在那里,你只需在所有事情完成后使用寄存器拨回每个房间。他表示,他们从来没有做过任何超出这个范围的事情(在这个地区也没有人做过)。他表示,他愿意做“任何我想做的”,考虑到它被纳入我的机械设计与平衡阻尼器和调试过程,但他说,他无法想象为什么这是必要的。
当被问及初始调试以确保每个房间获得设计的气流时,他说,在石膏板和门插入之前,你无法进行准确的调试,因为它们会改变空气输送。这是真的吗?或者你应该总是做一个预薄板和最终调试?
他还说,你不可能关闭一个阻尼器在一个封闭的空间是无法接近的。如果我们装了阻尼器,我们就得在石膏板上增加通道。这是对的吗,还是有一个阻尼器是用来关闭在楼板托梁腔的?用什么类型的阻尼器进行平衡?
他指出,我们至少可以在主干线上安装平衡阻尼器,包括分隔楼上的指定区域阻尼器。尽管如此,控制二楼卧室的95立方英尺和浴室的35立方英尺的唯一东西是一楼的收银机。
你之前建议我们使用过滤格栅来保持管道系统的清洁。我今天提到这个,他说"我们在地下室有一个过滤器柜所以我们不能做过滤器格栅因为有静压"这样可以吗?还是我应该要求过滤器格栅?
他还说设计显示地下室没有回风,他认为我们必须增加一个。看起来,设计师让地下室的回风被地下室楼梯顶部的“主”回风覆盖,然后是一个带百叶的地下室门,然而,我们实际上把回风转到了没有百叶门的走廊。你能告诉我在地下室加退税是否可以吗?
大多数的管道系统是准确的,然而,有些地方,我们的设计显示了7英寸,而他们使用了6英寸的管道系统,或者一个树干从10x8到8英寸的圆形,他们只是整个过程10x8。此外,设计有格栅,2x10, 2x12, 4x10, 4x12, 4x14, 6x12等,相反,我注意到所有的管道在地板上是相同的尺寸。它们都没有变化。这很重要吗?
所有这些都说明,什么是重要的,什么是不重要的?我有信心他会做任何我要求他做的事,但我觉得在这一点上他有点像按照设计,但不是超级紧密(管道尺寸,寄存器尺寸,。我应该让他拥有它,并承诺当完成时,我们将在10%的预期CFM空气流量?
让我知道你觉得我该走多远。我有点担心,在一个高性能的家庭中,所有这些可能更重要,他的“传统经验”没有初始调试过程可能适用于许多家庭,但在这里不会很好。
我附上了设计,以防有帮助。
他还说,你不可能在一个无法进入的封闭空间关闭一个阻尼器。如果我们装了阻尼器,我们就得在石膏板上增加通道。这是对的吗,还是有一个阻尼器是用来关闭在楼板托梁腔的?用什么类型的阻尼器来平衡?”
任何电气设备都必须易于使用,以便于维修或更换。
如果不是电的呢?这些平衡阻尼器没有电,它们只是机械地设置了适当的流量。
看起来,如果你要从零开始建造一个高性能的家,你应该得到所有你指定的东西。这是非常令人沮丧的处理承包商谁不建设规范。我想要一个大的返回过滤器格栅与一个大的盒子,以帮助减少压降。最好有2-4英寸厚的MERV 13过滤器,之前能源先锋或家庭性能详细说明。我想科比特家里只有一个烧烤架。我相信对于1和multiple有不同的观点。J. Semmelhack将提交一份具有类似功能的申报表。你能和你的设计师谈谈这些问题吗?
在商业上,我们在大多数空气处理装置上使用Tamco绝缘阻尼器。它们很贵,但绝缘和低泄漏。
https://tamcodampers.com/9000.php
没有人会或应该期望房主知道稍微关闭客厅的电源寄存器,以获得足够的空气到角落的卧室。所以不能只是调整烤架,还需要有一些东西让系统从一开始就开始工作。
从经验来看,我可以告诉你,总有至少一个排气口与气流良好的波纹管设计,你通常花大部分时间调整其余的,以获得所需的流量到这些。
你不可能让所有的气流都恰到好处,但它至少应该在大致范围内。如果最终所有通风口的流量都超过了设计值,那就更好了,你现在可以以更低的速度运行鼓风机,这样消耗的能量更少,也更安静。
即使在我目前工作的有40年历史的暖通空调系统中,每个通风口都有阻尼器。大部分在主供给管道上,其余在管道靴上。这些应该放在一个位置,他们可以调整的道路或通过取下注册格栅。
其实并不需要回到地下室,一个隔热良好的地下室有非常低的冷和热负荷,只要你有一些流动,它应该是舒适的。如果你是在氡的土地,一个不新鲜的空气拾取器为你的ERV将是一个好主意。
过滤嘴烤架是你的朋友。一个好的过滤器格栅与良好密封的返回管道意味着你的管道和空气处理程序保持原始多年来。有过滤器格栅甚至需要4“过滤器。如果可能,我将大小返回过滤器格栅采取完全相同的过滤器作为您的空气处理程序。有点大,但现在你只需要储备一种类型的过滤器。
我可以在当地订购2天转Dayus DARH在任何标准尺寸,可以采取1”,2”或4”过滤器(当地商店可能会告诉你他们只做1”,但这是不正确的)。如果暖通空调的人不提供,就把它们粗略地加工成正确的尺寸,然后自己订购。它们很容易安装。我更喜欢在它们的一边用金属丝铰链,另一边用弹簧销子,以便于使用。
至于确切的风管尺寸和寄存器尺寸,只要能提供正确的流量,就可以了。一般来说,只要寄存器比设计的要大,就没问题。我喜欢保持地板寄存器小,并塞紧墙壁,2英寸的是伟大的,但他们可能有限制,特别是与木格栅。
石膏板不会影响太多的流量,也不会有足够的底边或转移格栅门。一个设计良好的系统在走廊和房间之间的压差应该小于3pa,这远远小于你的空气处理器所推动的压力。
您希望现在就委托该系统,因为它很容易修复问题。水泥板砌好之后,任何缩减都会很快变得一团糟。
仅仅因为它不是“通常做的”,并不意味着它不是正确的方法。前段时间我去过一个相当昂贵的里诺(gut reno)开放参观日,三楼的主卧套房比房子其他部分高出15层。有人在暖气和冷气上走了捷径。它的确卖给了一个幸运的新主人,但我肯定不想和它生活在一起。
非常感谢。希望他们不会拖延我在3天内完成这件事。可能是不可能的……
几件事:
-关于平衡阻尼器的最佳类型有什么建议吗?他们之前说过,它们可能会嘎吱作响,需要随着时间的推移更换。
-如果我使用过滤格栅,我是否也应该使用承包商提到的地下室的过滤柜?他说由于压力下降我们不能同时使用两者但这是真的吗?地下室的过滤器柜和你说的空气处理过滤器是一样的尺寸吗?听起来你建议两种都用?
-系统需要多久才能完成初始调试?我认为过滤器格栅和其他一切都需要到位?注册吗?这个测试不涉及热泵,只涉及空气处理程序,对吗?
如所述,大多数管道系统是正确的,但最后一块寄存器去,他们都是2x12,系统要求2x10, 2x12, 4x10, 4x12, 4x14, 6x12等。听起来这可能会有潜在的问题,但如果他们能够交付CFM,这是可以的。这是关键部分。
最后,你有Venmo吗?
至少让他们在每个寄存器上面放一个流量罩。这样您就可以查看是否有重大遗漏。
如果室外机至少连上电线,室内机就不能运行,所以如果情况不是这样,您可能是SOL。
只要你考虑到静压的变化过滤器就不需要安装。您可以设置从系统测量到的静态压力,以检查流量。一旦过滤器进入,你可以重新检查静态压力,并调整设置以匹配最终安装。
熔炉过滤器是真正需要的,如果你有泄漏的回报(主要是翻新)。如果你没有任何淘洗的回报,其余的是密封良好,你不需要一个。两个较大的过滤器格栅通常比一个炉过滤器的压降要低。
流速为您的大多数寄存器将足够低,我怀疑你将得到很多,如果任何噪音从阻尼器。我只用过标准磁盘以外的东西。
2x12的横截面积比6x12的要小得多。它可能会提供流量,但也可能开始口哨与格栅或速度可能太高,如果你坐在它附近。
什么是良好的气流?卧室之间的温差应该有多大?晚上卧室里的二氧化碳含量应该是可以接受的?其他的吗?