在被动房(PHIUS)中寻找迷你分割安置的建议
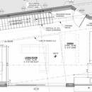
DR:在被动式房屋中,一个微小的分裂会有效地冷却它吹向相反方向的区域吗?(布局见附件,楼梯开放式踏在单钢梁纵梁上)
-------
你好,我们又见面了!(5B区,干)
我一直在考虑在我们的被动式房子里放一个迷你分裂器的好位置,我很乐意从这里的每个人那里得到反馈。
请参阅附图的平面图的图像。Mini-Split的主要用例是冷却。[Heating is also important but we’ll have towel heaters in the bathrooms for zoned heating (mini-split will still do most of the work setting temps during the day while doors are open) and we’ll also have a wood burning stove for those really cold nights (https://www.blazeking.com/products/wood-inserts/sirocco-25/)。)
这是我们从Wufi被动分析的冷负荷要求:
5,000 BTU负载,目标温度为77º
13000 btu负载,目标温度为72º
我在MSZ-FH09NA(射程1700 - 12000)和MSZ-FH12NA(射程2500 - 13300)之间犹豫不决。MSZ-FH15NA的尺寸可能更好,但它不能模块低(射程6450 - 19000)。我肯定想要的东西,可以调节在低速度,以便温度,即使温和的冷却可以维持没有短周期。想法?我错了吗?
Initially I’d like to try to get away with one one mini-split, but if necessary, I can install a second floor mini-split on the lower floor, possibly below the stairs or in-front of the kitchen island (which would probably be a more effective placement, but highly visible). I’d only do it if I’d need to supplement for cooling.想法?
在放置方面(见附件,楼梯开放-踩在一个单一的钢梁纵梁),我想要放置迷你分裂蓝色箭头指向的单位朝西。我可以设置一个风向标水平吹向楼上的卧室门,另一个风向标向下吹向楼下的主卧室门。给卧室降温是当务之急。这个位置似乎也是最美观的,因为当你在家里走动的时候,它是最不显眼的。我唯一担心的是,我可能无法在厨房里得到足够的冷却,因为迷你分裂不会朝那个方向吹,烹饪会产生很多热量(这最终是帖子的主要问题/关注)。想法?其他建议?
其他一些可能有用的注意事项:
-夏季几乎没有太阳能增益。
- 我更喜欢带有区域的中央管道水平MiniApit的中心壁单元(通过Airzone)。墙壁单位更高效,可以调节更低,我不必担心在管道中累积的灰尘,我也不会到处都是大量的通风口,我不必担心通过管道之间的房间之间的噪音转移。每个房间都有一些在内墙中的声音打样。冷却季节相对较短(3个月),因此我在分区冷却时,我优先考虑声音隔离和简单性。
-如果有一种超低调制的壁式单元,可以适合我们的卧室,我会在每个房间都放一个,并在门关闭的时候分区制冷和加热,但这是不存在的。也许10年后吧。
P.S.这个社区一直很棒!恭喜你的成功马丁,谢谢你在线地点为每个人共同分享!



回复
干燥的气候,但我仍然会看看你的btu负荷(包括温和的天气)的合理和潜在的组成部分,并将其与各种迷你分裂将删除。
>并在门关闭时分区冷却和加热,但这不存在
同意 - 它是管道或水管/风扇线圈。
我很想听听专家们怎么说,但我的直觉是,平面图对无管道的小裂缝不是很有利。房间太多,到最远的地方的距离太长。
我在公寓上有类似的设置。虽然(〜500平方英尺),在二楼有1间卧室,这要小得多。
如果卧室的门是开着的,这种设置可以很好地冷却开着的主地板和卧室。一旦门被关上,几个小时内卧室就会变得不舒服。
卧室的问题是人们会发出一点热量。加入高度绝缘,卧室将从其中的人中热,没有主动冷却。
没有人喜欢管道或收款机,但没有它们,想要获得舒适也不容易。
你的布局是相当直接的,你可以运行一个小隔板在走廊上的门,并能够以最小的管道供应所有的房间。如果你不想看到管道,你可以把那堵墙弄成2 × 8的尺寸然后在里面运行管道系统。很难判断你的墙壁是如何排列的,但你也可以从卧室的主楼天花板上滑下来。
对于噪音,有在线消声器的工作非常好。一个懒惰的S弯曲在挠管也可以工作,但增加了更多的限制,所以你必须真正做数学,以确保它可以与低静态管道单位工作
附注:设计低静态单元的好处是管道系统的损耗低。这意味着你可以把供气管道系统和ERV结合起来,而不用担心使它失去平衡。它简化了暖通空调的布局。
谢谢分享你的经验。我很难理解一个房间一夜之间会有多暖和。需要考虑的一个因素是,我们将有一个夏季旁路ERV,除了几周外,夜间温度都应该低于68°。我想这会抵消身体的热量,但我不确定。
如果我用管道系统,具有高静压的水平管道单元的卧式范围有限,折断,Pead-A12AA7(5,200-12,000)。这是表现的最大缺点。
我无法找到能够将噪声转移通过一个房间与另一个房间的管道隔离的任何确凿证据。您正在说的消音器,它们是否擅长沉默房间到室内噪音或HVAC噪音?
你可以计算出每平方英尺干墙每华氏度约为0.5英热单位。这并不能阻止你在温暖的夜晚变暖。另一方面,在68F的夜晚打开一扇窗户肯定会让房间凉快下来。
在其上有5F差异,开口将移动约1728年BTU / HR。较大的开口移动得多。
我和乔恩在一起。如果户外空气足够冷,而不是潮湿,打开的窗户就是去的方式。
如果你让门在白天开着,壁挂式应该会让一切都很舒适。
作为DIY的窍门,你可以把你的ERV供给管道放大一点,然后像这样把它插入,如果你在路上需要更多的冷却:
https://climateright.com/climateright-5000-btu-a-c-heater-2.html#product_tabs_product-specs
您的房间仍然需要一些辅助热。二楼的小裂缝也将做很少的供暖主要层。如果你的负荷足够低,几个壁挂式加热器和一些电阻垫地板可能会覆盖你的主要地板。
我认为,总体来说,最好是为整个房子设计一个低静电的管道单元,这些几乎和墙壁安装一样有效,并与正确的室外单元配对应该有良好的调低。这样所有的区域都可以得到适当的冷却/加热。你确实需要正确地设计管道,用一个简单的布局,这并不难,如果你能与ERV供应共享它,不会增加太多额外的成本。
高静压单位通常是为更大的负载而设计的,就像你提到的,没有很好的调节。它们只值得改装安装。
墙壁安装架仍需要清洁,清洁鼓风机/线圈是疼痛(4年,我必须做一次)。带有管道单元如果安装良好的密封大型入口过滤器,则管道将保持原始多年。
我用过的消音器效果非常好(你要找的是里面有穿孔金属网的,看起来像汽车消音器),我用的是一个更大的单位,你可以对着一头大喊,而只有耳语从另一头出来。
谢谢你的依赖。
在最热的夜晚,室外空气可以达到80度。
你回复肯定将我放在管道的轨迹上。很高兴知道消音器是有效的,导管的单位需要更少的维护。
我有几个后续问题:
是否有可能将一个水平管道单元与。2而不是。6静压管道连接到所有5个区域?如果是这样的话,那么总的灯下听起来是可以接受的(SEZ-KD15NA4 - 3800),否则两个单位将有一个更大的联合灯下,这不会更好。
接下来是我对静压的要求://m.etiketa4.com/question/horizontal-ducted-minisplit-ducting(看评论)
在那里有许多纤薄的管道单元在0.3至0.4“之间(即ARU12RLF)。那些没有问题的人通常可以提供许多房间。
如图所示,如果您可以使其工作,一些拇指规则:
-25x24入口过滤器
-7“导管到较大的床6”到较小的4“到浴室
-10“打开概念生活区,如果长空间,两个小管道更好。
想要将弯曲限制为三(4,如果休息简单)90deg弯头,其中包括启动端的弯曲(如果有)。远离丑陋的配件(高于30'EQ长度)和Flex管道弯曲,甚至更好地避免弯曲管道。
随着迷你分体式鼓风机始终运行,您可以将您的ERV新鲜空气送入单元的入口。仍然需要单独的陈旧空气返回管道。
如果您要将通风空气混合带有加热/冷却空气,请确保您仍然将外部空气的推荐CFM(比如20 CFM /人)到封闭的门卧室。通风和加热/冷却室到室的比例通常不匹配。
富士通的1.5吨18RLFCD更高效,具有更宽的调制范围(3100 BTU/小时分钟),并有一个比SEZ-KD15NA4更强大的风机,使它成为一个更好的选择,考虑到管道系统的大小,这个家要求。
http://meus1.mylinkdrive.com/files/SEZ-KD15NA4_SUZ-KA15NA_Submittal.pdf
http://www.fujitsugeneral.com/us/resources/pdf/support/downloads/submittal-sheets/18RLFCD.pdf
它也可以垂直安装(与KD15不同),这对于将其设置为常见的返回并轻松访问过滤器更换和维护等有用。
您可以考虑液体热泵,例如北极或尖端。概念上,它们类似于多分裂 - 除了缓冲罐解决短循环和流速的问题,并且没有最小的流量/油分布问题。
这是个好主意。我想增加曝光度,所以我把我的回复作为一个单独的评论贴在下面。
Mike,我已经在几个超级绝缘房屋中安装了Miniplits,我相信它们在这个应用程序中是漂亮的标准。使用单个头或两个整个房子可以工作,因为1)房子正在失去/获得热量,所以你不需要多个区域来寻址热/冷区域2)HRV / ERV通风系统倾向于甚至在房间之间的任何最小差异。因此,整个房屋用作单个区域,可以由单个头部提供服务。单个头给你最大的逆向比,这在这里很重要。我们确实的最后一座房屋大约4200 BTU / H,所以即使是最小的三菱FH06也是超大的。
你会遇到的一个问题是晚上的时间滞后——如果你想让温度下降10度以实现健康睡眠,在一个非常紧凑的房子里很难做到。
此外,考虑设备之间的交互也是值得的。例如,热泵干燥机可以在与热泵热水器相同的空间工作,因为从干燥机发出的热量可以被热水器清除。(冬季热泵热水器作为二级热泵工作,夏季免费冷却)
顺便说一下,我猜这里的很多人会鼓励你抛弃木质火炉。它们不适合低负荷的建筑,原因有很多。我很惊讶PHIUS竟然会同意。
几个月前,在GBA上有提到,三菱正在与其他几家公司合作开发一个显而易见的东西——一种集成热泵- hrv低负荷建筑。不过我不确定具体的时间框架。不管怎样,祝你的项目顺利。
谢谢分享你的经验。“夜间时间延迟”绝对想让我走管道路线。Dana建议Fujistsu 18RLFCD是一个不错的选择,如果我想走那条路,我也同意。我对Jon发表的关于北极热泵的文章很感兴趣,所以我要全力以赴去研究它。更多信息,请参阅本文末尾我的评论。
我们的房子有18000英热单位的热负荷。如果你看木柴炉的规格,它可以被调低到大约10,000 btus时,在一个缓慢燃烧(一个负载可以燃烧长达25小时)。理论上,它的大小适合我们的负载。它只会在偶尔的寒冷期或阴天使用,那时我们无法获得任何太阳热量。我也喜欢在需要的时候有一个旧学校的后备。如果我们想用它来营造氛围,我们可以关上卧室的门来保持凉爽,如果客厅太热,我们可以打开客厅的窗户。在过去的十年里,我一直和一个木火炉住在一起,所以我很难放弃它:)这绝对是一种奢侈。这些改变了你的观点吗?还是我疯了?我总是乐于接受批评; that's how I learn.
如果你有一个循环系统,那么木材锅炉+缓冲罐(或混凝土地板与油管)是一个选择。
我认为降低睡眠温度是一种偏好,而不是一个健康问题。我从未见过有人声称对健康有影响,也不是所有人都喜欢低温睡眠。我可以容忍适度的下降,但这只是因为我可以很容易地用盖子弥补。这根本不是必需品。10华氏度的下降也是相当极端的。58-60华氏度是非常寒冷的。
市场上已经有两个ERV热泵组合。两者都非常昂贵,与高质量的ERV或HRV相比,两者都提供非常小的正热增益。Minotair和CERV都有相关报道。
如果我可以将温度降至68°,那就足够好,在我不会睡觉的地方。
达纳,富士通18RLFCD的音域很不错。谢谢你的分享。有趣的是它可以垂直安装。
乔恩,
北极热泵系统真的很酷,尤其是因为我打算买一个带有室外压缩机的热泵热水器。我可以在一个系统(二合一)中没有管道和家用热水的分区空间冷却/加热。我们还会有一个热水浴缸,据说它也可以加热(三合一!!)
我目前正在研究辐射天花板面板,而不是安装散热器的空间冷却/加热。天花板面板不会干扰我们的南方辐射太阳热量的增加+混凝土地板的热质量。这似乎是相当负担得起的,因为我们的负载是如此低的被动式房屋,每个面板只需要一个8x4天花板面板。目前看https://radiantcooling.com/messana-radiant-cooling-products/ray-magic-radiant-panel/
这符合所有条件:
- 沉默的操作
- 不允许一个房间的声音传输到另一个房间
——看不见的
——高效的
- 随着我想要的多个区域分区。
-低维护(不需要清洗管道、部件或过滤器)
-处理非常低的负载(需要进一步了解这一点)
奖金:
- 相同的系统提供家庭热水,可以加热热水浴缸
你会用什么去除湿?许多pH在高湿度下运行,甚至过高的湿度。在内部空气的露点下方工作的辐射面板将从面板上滴落冷凝。
在夏季运行单独的除湿机确实会消耗能量,因为它的废热会使空间变暖,但在冬季,废热会带来额外的好处。不过,你确实需要为它留出空间。将暖通空调和除湿分开有一些很好的理由。这在商业建筑中是经常发生的,但对于住宅来说,这并不是最便宜的选择。
Messana的解决方案是使用智能控制来操作辐射冷却面板和HRV/除湿器组合。控件监视适当的点,使环境永远不会进入产生冷凝的状态。
“#辐射冷却的秘密在于控制。
Messana在15年的经验中开发了一种独特的控制技术。
除湿性和适当的通风是提高冷却系统性能的关键,但防止凝结由控制管理。
精心设计的辐射天花板可以提取高达35Btu / SF!“
https://radiantcooling.com/the-secret-to-radiantcooling-is-in-the-controls-messana-developed-a-unique-control-technology-over/
我现在才刚刚开始了解,所以还有很多研究要做。我想既然科罗拉多没水了,我应该是最合适的人选。
他们的网站上好像有几处被动式住宅。
https://radiantcooling.com/radiant_cooling_projects/
我住在德国一个地板辐射冷却的地方。我遇到的一个问题是,虽然它确实降低了空气的温度,但它并没有带走任何湿气,它让人感觉很潮湿。这让我想起了夏天的加拿大地下室。
如果你能适当地控制内部的RH,它肯定会工作。
不过也不便宜,只要你在这里说水循环,就得在价签上加2万。不用担心可逆冷却器……
我不太确定会不会更贵。这个房子需要十几块8x4的天花板,相比之下,它的作用是普通房子的两倍甚至三倍。配有室外压缩机和专业安装管道的小型隔板的热水器并不便宜。如果我能根据设计自行安装,这似乎比做一个微型分割安装更有可能,因为我不能轻松地做真空测试。
迈克,
如果你可以做任何事情。与劳动力相比,大多数系统的组件成本很小。请记住,除了你必须能够将其固定在路之外的人。我已经完成了在便宜的地方攻击某些东西的公平份额,只需要用“适当”的部分重新做到。
我看到的液体系统的问题是那里没有很多。这意味着,任何问题,你几乎都是自己的。从我在这里看到的情况来看,最大的问题是冬季结冰和系统设计不当(周期短,回水太热)导致冷水机出现问题。
大多数已经存在的压缩机没有低温蒸汽喷射压缩机,在室外温度较低时,热量输出和COP将受到影响。我会检查你是否能在低温下从装置中获得足够热的水来放出有用的热量。
不管怎样,用一个加热DHW是不可能的。你所能期待的最好的结果就是预热进水或用热水来加热游泳池/热水浴缸。当加热水,你的冷却将关闭,可以处理与缓冲水箱,但再次增加复杂性和成本。
对于DWH来说,你最好的选择仍然是热泵热水器,它会在夏天额外除湿一点。我仍然认为你需要一个单独的除湿机来降低内部的RH,即使在一个干燥的位置。
删除了
我有一个BK Ashford ......你会喜欢Blaze King(如果你正确安装它 - 15'绝缘烟囱)。由于非常低的最小燃烧速率,对具有最小烟囱高度来保持一些负面吹口压力,因此需要绝缘,因为没有过热的烟气,以保持热清洁。
这是少数木炉中,可以拒绝5-10kBtu,燃烧低,缓慢速度超过一天。催化剂和恒温空气控制让您在黑暗模式中运行,其中它只是用催化剂燃烧烟雾,没有可见的火焰。大多数炉子都提供了一个压倒性的热量,即迅速下降需要脉冲和滑动重新加载循环,Blaze国王在几乎整个20-30hr刻录循环上给出了恒定的调节输出。使用BK,您只需根据条件加载并设置恒温器,并在18-30小时内回来放入更多木材。
太棒了!谢谢你的建议。是有意义的。烟囱大概在30英尺左右,所以没问题。
我希望我能看到一些火焰,因为在几小时里的氛围速度慢慢燃烧,没有过热:)
我的Ashford重400-500磅(大量的热质量),所以我将运行它的高度足够有火焰的夜晚气氛,而不过热的地方2-3小时一次。当周围没人的时候,我就会拒绝。
我也会安排好重新加载的时间,以便在晚上欣赏演出时使用。最好的做法是在重新装填后高速运行20-30分钟,以赶走湿气,使烟囱变热。同样的,炉子吸收了很多热量,释放的速度很慢,所以如果你把它调大一点,它不会马上过热。
hearth.com充满了火焰王的狂热者(包括BK的副总裁),他们会给你所有的帮助,你可以承受,然后一些。我会把你的炉子安装配置贴在那里,然后你继续得到一些反馈。
我选择BK是因为我住在一个8'天花板的小平房(热量损失低于30kbtu,一旦我将地下室墙壁完全隔离,将是20kbtu),我担心一个普通的二次燃烧炉会把我烤出房子。我对结果很满意。我的客厅温度是23-24摄氏度,最远的卧室温度是20-21摄氏度,厨房温度是22摄氏度左右。它毁了我的冬季取暖,把火炉调到20度就不再感到舒适了。我喜欢在冬天回到家,享受着柴火的辐射热。
谢谢你对赫特的提示。我知道你对木材的热量是什么意思。我们泄漏的公寓拥有一块木炉,如果我们从冬季郊游特别冷,那么我们将达到74°或更热,而且卧室保持凉爽的睡眠。和燃烧的木材很漂亮。只有遗憾的是,我当时不了解BKS,这将会更好。当我们早上重新加载时,它很冷。