寻找关于新建筑供暖计划的建议
我正在设法找出给我们的新家供暖的最佳方案,我将非常感谢各位智者的任何建议。
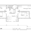
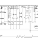
房子在纽约北部,气候区6。我们在场地上有很好的南部日照,并采用了更多的被动式太阳能设计。房子基本上是一个简单的两层矩形,建在山上,有一个可走的一层,也将用作生活空间(附平面图)。这栋房子有一个棚式屋顶,南侧的天花板高14英尺(约合14米),北侧的天花板高8英尺(约合2米)。我们的信封有R-20平板下,ICF一楼,8″SIP二楼,12″SIP屋顶和三层玻璃Zola窗户。能源审计的最大热负荷是三万英热单位。
我们将在二楼有一个“混合”砖石木火炉,我们计划用它来做我们的大部分供暖。
我的问题/问题是:
我担心柴炉的热量无法传到楼下。
我们真的很想在家里保持全用电,并计划在未来增加太阳能。也许一个头在楼下,一个头在楼上的小劈叉能行?我对这种迷你分裂的担忧是,在我们这个地区,连续几天的零下20华氏度并不罕见,而且我们在冬天也经常旅行。
我可以很容易地在楼下添加一些电动踢脚板加热器,但我不喜欢它的效率/外观。我也不确定是否楼下的每个房间都需要某种类型的暖气,或者家庭娱乐室里的什么东西,比如迷你劈头式暖气,可以用。再一次,有了迷你分裂,在-20f的日子里,楼下会发生什么?
我将非常感谢任何想法/想法/建议!提前谢谢。
GBA细节图书馆
收集一千建筑细节组织的气候和房子部分
搜索和下载施工细节



回复
蒂姆。你打算怎么隔离?什么级别?你窗户上的规格是什么?
Minisplits !三年前,我们从石油/丙烷/柴炉改造而来,部分原因是想看看我们的旧农舍(稍微升级了一下)是否能像我们正在建造的新双层墙房屋一样舒适。现在比以往任何时候都更舒适,加上我们新的太阳能电池板,将接近净零。我没有看到任何负面影响,也没有抱怨;这些东西太棒了!
蒂姆,
Eco Firebox的人能给你提供BTU评级吗?我担心二楼的单位会提供太多暖气。你的最大热负荷是30,000 BTU,而高效壁炉的热负荷超过65,000 BTU是很常见的。此外,这是一个混合单元与砌体散热器,所以它不是如果你可以阻尼下来的火,如果它变得太热。事实上,他们的网站上说,在大火熄灭后,它还会继续辐射12-36小时的热量。
史蒂夫,
房子是与icf的和sip的绝缘,所以应该有非常少的空气泄漏和桥接。我想可外出地下室的icf是R-25, sip墙R-35, sip屋顶R-45和U .11窗户。谢谢。
你好,乔纳森,
我没有听说过Eco Firebox的确切btu评级,但我可以想象,这在某种程度上也可以由你燃烧的火的大小来控制。我读过很多关于这样一个单元是一个很好的绝缘,紧凑的房子的讨论,似乎有很多不同的意见。
当然,我们选择这个单元的原因之一是,它将是我们家的“核心”,我们想要一些我们可以定制的外观。我们还想避免使用传统的壁炉,因为我们至少想让这个单元有一些功能。最终,我们在与另一个拥有这些单元的业主交谈后决定了这个单元,他也有一个和我们非常相似的房子。他原来有一个普通的木头火炉,并声称这将很快使他的房子过热。在切换到Firebox之后,他对结果感到非常满意。他说,该装置的热质量允许较低的btu输出在较长的时间内,使一个更舒适的家。
我们在NH的第6区,全是电力的房子里已经进入了第三个冬天。两层楼的小房子,主暖气在较低的楼层。备用热量,我们在浴室和卧室里安装了斯蒂贝尔·艾德隆壁挂式加热器,还有一对在楼下的露天区域。我们只在温度预期为-20f或更低时才激活它们。一些想法……
你说的“北方”是什么意思?你的第6区靠近纽约市....吗还是在阿迪朗达克山脉?
我能理解某种木材燃烧炉的吸引力,在停电时也会是很好的后备。对于一个紧凑高效的房子,我也会担心过热,把热源放在最低生活水平似乎是理想的。
我会推荐迷你分割策略,这将是一个伟大的系统与太阳能光伏。作为备份,您可以在几个/几个选定的位置计划使用最低瓦数的对流空气壁挂加热器。得到120v插件版本,没有特殊的线路,你甚至可以从春天到秋天把它们拿下来:
https://www.convectair.ca/en/products/120v-plugin/apero
它们比Stiebel Eltron贵,但我希望我买的是Convectair,因为它有120伏插头,而且它们有更好的恒温器。
你可能会有更大的过热风险与所有的南面向玻璃比与生态壁炉。BTU/hr燃烧速率在处理高热质量砌体木材燃烧器时几乎不重要- BTU/hr燃烧速率在砌体表面释放,而且变化缓慢。以100,000 BTU/h的速度进行1小时的火灾不会使场所过热,而热质量中储存的热量会在许多小时内分散。有一点学习曲线,什么时候运行火灾,以最佳舒适的处理热时间延迟通过砌体,但它不是一个连续的火灾。
太阳能增益的热-质量宽容性就不一样了。棚屋屋顶是朝北的斜坡,这使得它对太阳能光伏没有用处,可能是为了增加朝南的玻璃的总量。除非你模拟了在一个阳光明媚的15华氏度冬日里发生的情况,否则你可能不会意识到你可能会经历多少温度超标。
如果你重新调整屋顶倾斜的方向,使其成为一个南坡,并使用光伏电池板和U0.11的窗户来遮阳,你可能会通过迷你分裂达到净零,并更好地控制室内温度。
你也可以尽量减少或取消朝西的窗户,因为在夏天白天晚些时候,太阳能的增益会显著增加峰值冷负荷。朝北的窗户是理想的采光-它是无阴影的,而且因为从来没有太阳眩光从北方的窗户,视觉灵敏度提高,即使在较低的绝对lux强度。它不需要很多朝北的窗户来提供良好的采光,注意,除非窗户的设计明确拒绝太阳能增益,大多数高性能窗户在冬天是净能源增益,即使当面对北方。大小朝南的窗户,以最佳而不是最大的冬季收益,并设计悬挑,以限制夏季收益。
在零下20华氏度(这可能比你99%的室外设计温度还要低10华氏度)下计算房间的热量损失。与稳态分析相比,ICF的动态热滞后将减少相对于室外温度的峰值壁损失,但如果你真的愿意,这是可以建模的。在70华氏度的室内温度和-20华氏度的室外温度(90华氏度的delta)下,一个U0.11的窗户每平方英尺损失约10BTU/小时——大约需要20-25平方英尺的窗户,相当于一个睡觉的成年人释放的热量。在这些条件下,一台R35 SIP每平方英尺损失约2.5 BTU/小时(前提是他们没有在性能规范上做太多),而一台R25 ICF在稳定状态下每平方英尺损失约3.5 BTU/小时,但在动态状态下,它比这个要低。因为它不会在- 20f下停留10个小时,所以根据快速和肮脏的估计,它应该是每平方英尺3 BTU/小时。
布莱恩,
谢谢你的输入!我真的很喜欢从和我处境相似的人那里听到建议,我很高兴听到你的小分手很有效。
我们在阿迪朗达克山脉的高峰地区,所以我们在冬天肯定会经历一些相当低的温度。再次感谢你的想法。
丹娜,
非常感谢您详细的回复和建议。我清楚地听到你的声音,担心在晴朗的冬天天气过热,我一定会一直牢记这一点。
由于二楼的大甲板,较低楼层的大部分窗户全年都将被完全遮蔽。由于有顶棚的门廊,上层的一些窗户全年都将被完全遮蔽。其余的南部窗户将有大的悬挑,但我意识到这不会有任何帮助,在冬天的月份,当太阳很低。
我已经在这个网站上潜伏了很长时间,我总是喜欢你的回应。感谢你们花时间帮助我们这些业余爱好者,让我们的家园和地球变得更好。
蒂姆,
很高兴听到你已经能够得到一个人的输入谁有同样的火箱的经验。我也有类似的情况,我正试图弄清楚如何从通风良好的房子里的高BTU、高效率的壁炉,过渡到我明年春天要建造的高性能房子里的壁炉。在我现在的房子里,壁炉的大小正好适合一楼有大教堂天花板的家庭娱乐室。然而,我在客厅里还有另一个单元,不幸的是它对那个房间来说太大了。即使关掉鼓风机,辐射热量也太多了,除非我用的是被抑制的火,这样就违背了成为EPA认证壁炉的目的。我一直在考虑在新房子里使用一个管道壁炉,这样我就可以把一些暖空气转移到二楼。然而,我将认真研究Eco Firebox,看看我是否能让它工作。谢谢你的分享。
我在纽约中部,第五区。我从燃油炉改为地热炉,并从那时起将PV加入其中。我对地热系统很满意,并且喜欢在我们需要的时候进行夏季降温。我正在准备增加一个,我也在考虑一些木材燃烧的热量,我很难证明它的合理性,除了火的吸引力。
6区真的存在过热问题吗?我们在6区的漂亮房子有很多朝南的玻璃,shgc是49。在12月或1月的阳光明媚的日子里,房子的温度高达75-77华氏度。我不认为那不舒服,但打开窗户几分钟就会让它凉爽下来。在计算我们需要多少热量时,设计预期了大量的热量增益。
斯蒂芬,
是的-当然,过热是一个问题,只有当它发生时,室外的温度是如此之高,你不能消散它,或者如果你支付了能源过热。