迷你分型尺寸和布局问题
即将到来的NC东南部建筑(CZ3)。
52'x 40'矩形。绝缘,升高的板坯。简单的山墙桁架屋顶。两侧缠绕门廊。
2×6 @ 24“OC框架,墙壁中的密集包纤维素。用玻璃纤维素吹入至少R-38的阁楼。所有窗户和双重外卖露台门都有0.30倍。空气密封目标是1到1.5 ACH50。前门和侧门估计在〜R-5。
我想使用整个房子的迷你分裂。我更喜欢所有导管,或者,如有必要,请联合管道和导管。
我用CoolCalc,封口和手动进行了加载计算,并且所有三个结果都非常接近。总房屋块负载是......
14000 BTU / H冷却(2个乘客和电器2400 BTU)
18000 BTU / H加热
我用房间使用CoolCalc,然后用手做了。再次,结果非常接近。连接的底板通过房间负载显示房间,分别加热和冷却最多14000和18000。为给定细节提供总块负载和房间的房间是否合理?
考虑到布局,如何迷你分裂大小,最有效地放置?
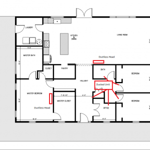
厨房,用餐和起居室是一个大型开放式房间(40' x 17.5')。整个房间的总加热负荷均仅超过6KBTU / h。是否有可能在整个房间使用单个头部单元,或者由于房间的长度而需要两个头部?走廊直接打入大房间。虚线是在开口周围框架的一些木梁。
可以使用单一的单元,用于走廊和客房卧室吗?主套房(床,浴室和壁橱)的单头单元?什么是关于洗衣房?
谢谢你们到目前为止的帮助和建议。
希望达娜能重视......



答案
看起来有太多的房间,带有太小的负荷,无论是一种有效的选择。你可以在大房间里做一个6k无管道,但如果你还为其他人做了一个导管的系统,我不确定有很多点。
特雷弗,
感谢您的答复。您认为单根导管头部会处理暖气和冷却整个厨房,生活和用餐,即使它是40'久吗?或者是因为它开放以来的一个问题并不大?
另外,如果门始终始终畅销,则单个导管手柄,主卧室,浴室和壁橱。
是的,单头应该处理它没有问题。单身把我家的一楼放在最长的尺寸,差不多60',包括两个门房,总共1350sf。
“单人无管手柄是主卧室,浴缸和衣柜”
也许,取决于您的温度变化的公差。但那么你打算在其他房间做什么?单个管道单元应能够处理所有这些房间,包括主套房。
您的负载足够低,除非白天的冷却/加热负荷有很大的差异(即大型西部窗户)需要额外的分区,否则可以使用单个管道迷你分裂。
看起来你可以在卧室的走廊里的天花板上安装一个,或者对所有房间都有很简单的跑步。
我将在生活空间中的窗户(或墙上的墙上的长时间抛出扩散器)运行至少一个导管,在舒适的舒适度下变得有很大的差异。
如果您要小心布局和向上尺寸的管道,您可以使用低静态单元,但中间静态可能是更安全的赌注。
由于迷你分裂上的鼓风机大多数情况下,您也可以使用它来分配通风系统的新鲜空气。不如专用的管道,但更容易/更便宜。我仍然可以为厨房/浴室/洗衣房提供个人陈旧的空气拾取器。
特雷弗和又名,
谢谢你们两个输入。我最初的想法(见附加图片)我可以使用......
- 厨房,用餐和生活的单个导管单元
- 一个纤薄的管道,安装在走廊上间的走廊天花板,卧室,办公室,办公室,浴室和两间客房(管道可能是超短的)
- 主套房(床,浴室和壁橱)的单个导管单元
但这会让我弄清楚如何加热和凉爽洗衣房。一个导管的单位,我认为会有主要的矫枉过正。
有没有办法使用管道套房和洗衣房的管道?(类似于我为客房和办公室提出的内容?
Akos,你是否建议将一个管道迷你用于整个房子?管道运行多长时间是用紧凑的管道单元,我可以在落下的拱门上安装?
最小的3区多是30kBtu,已经太大了。您可以为每个头部配备个别户外单位,但即使这些也将超大,您将最终骑自行车或在Min Min调制中运行它们。
由于你有一个单身困难,我认为两个区域的效果太多,但这是可行的。
你肯定可以为整个房子做一个单位。你必须在房子的两边都要提供卧室的两侧,用一个单位来做整个房子,你所要做的就是抚养两间卧室的卧室。
洗衣是可以看到公平的湿度的东西,它位于房子的拐角处,我肯定会在那里运行供应管道。你可以把它从供应交给厨房。
涉及管道时没有长度限制,只有压力限制。只要它正确尺寸,您可以始终延长导管的长度。
如果您将布局保持简单,最小化弯曲和Upsize空气过滤器,即使使用低静态管道,您将没有任何问题。
我可能会在主卧室添加一个“哑区”。这是你提供了多种领域的(例如预期的BTU的120%),但在它上安装区域阻尼器+恒温器。您比调整区域阻尼器,即关闭设置,它将75%的BTU置于房间。导管单元在按下/流量的情况下没有问题,并且不需要额外的控制。您现在可以使用该恒温器在卧室里给您一些额外的温度控制。
又名,
看起来像三菱有一个25kbtu 3区室外单位和一个28.6kbtu 3区,但我没有过于关注分区。整个房子的相同温度完全没问题。我只是在寻找最有效和有效的方式来实现这一目标。如果我最终用2或3个区域,那就这样了。
我想我是在印象的印象中,我需要尽可能短地保持管道,所以我认为单一管道迷你分裂不会为整个房子工作。我知道加载明智会很好。我始终计划9'天花板,所以我很容易为带有增压室和管道运行的管道单元创造一个拱门。
如果你打算用整个房子的单个室内管道装置,你会想到哪里?
怎么样使用两个管道单位,一个房子的每个“半”?一个用于厨房,洗衣机,主浴室,大师床和衣柜大师,另一间客房,浴室,走廊,办公室和起居室......有大型开放式房间(厨房,用餐,生活)的任何问题由两个不同的单位提供?如果这是可能的,那将是两个10.9kBtu管道和22kbtu户外单位。会略微超大,但并不多。想法?
额外的单位花费了更多的钱,如果你需要一个多层楼的房子,那么这个只是有意义。在您的情况下,我会选择一个单位。
在你在素描中显示管道的位置是一个很好的位置。我不会把整个入门走廊放下,只是单位的位置,行李箱需要穿过走廊。
如果这是您的起居室和走廊之间的滑动门,除了走廊的回归,还应该跑到生活空间。在浴室的天花板上看起来是一个直接的镜头。
导管的长度不是太多问题,弯曲/配件/起飞/靴子是您必须观看压力下降的地方。您可以使用中间静态单元,它有足够的鼓风机电源来处理您的布局。
另请记住,如果管道在条件空间内,则不需要被绝缘,除了退回不良密封。这占用了更少的空间,更快。
始终在返回时安装大型滤镜格栅(2“或4”过滤器)。随着密封良好的回报,意味着一尘不染的鼓风机和线圈多年。
P.S.您通常希望避免多拆分,因为它们具有更少的调制范围,室内单位本身不会调制。由于多个成本是一对一的2倍,因此您通常会与个别室外单位更好。更好的效率和显着的调制范围。
又名,
谢谢你的详细回复。走廊和生活/餐饮/厨房区之间没有门。走廊之间的虚线和该区域是一些木梁,框架入口进入主室(仅限美学)。它完全开放,所以可能没有必要在客厅里进行第二次回报?
我的意图,无论单位数量如何,都是安装本机和任何必要的管道,在坐在条件包络内部。
我非常喜欢单个室内机和一个室外单位的想法。有些人带领我带领我相信像三菱像那样的管道迷你分裂单位,不容易让我足够远离中心,从中心附近的单个单位到达所有房间。所以你没有看到从管道单位位置运行管道的问题(以上面的绘图显示在红色)一直到掌握浴室和洗衣房?
我理解你对一对一的好处的观点。那是说,如果我打算在上面建议的两个室内单位(房子的每一半),最好使用两个户外单位并保持一对一?
单个单位的最大问题可能会在主走廊上成为一个下降的拱门,我想避免如果可能的话,但如果原来是最好的选择,那么就是这样。
第二个单位的唯一真正的缺点是成本。这取决于你的价值,没有掉落的拱门。一个少量的优势是您有一些准冗余。如果一个或另一个单位发生故障,剩余的功能单元将使房子更令人愉快,在等待失败的单位获得固定的同时居住。
您的主卧室侧的热负荷约为7000Btu,它转化为约270cfm的气流。您可以通过两个3.25x10管道流动。你几乎不会注意到走廊里的天花板上的这些跑步。
所有制造商都制造了低静态,中静电和高静电单元。Mitsu Pead Mid Static Heads良好0.6 in WG,它们的高静态SUZ单元适用于WG的0.8。对于低静态,我会在Mitsu单位具有非常弱的鼓风机时看看其他制造商。
有时,使用高静态单元更简单,因为它看起来非常接近标准空气处理程序,您将不会收取迷你分级溢价。
像这样的东西将是一个很好的案例:
https://www.mitsubishitechinfo.ca/sites/default/files/sb_svz-kp18na%20%26%20suz%e2%80%90ka18nahz-th_202001.pdf.
随着ERV / HRV以及您可以在洗衣房中安装设备,并从那里运行管道。走廊里需要稍大的舱壁来喂养房子的另一边,但比上面的更大。