为广泛的加热和冷却负荷设计一个小型系统
嗨,我花了过去几天的时间阅读几乎所有不同的帖子,关于多区域vs多个单一迷你分割,试图找出我的项目的最佳方案,但没有太大的成功。
实际上,我有两个承包商来过,但他们都只建议使用经验法则技术的墙体单元……作为一个机械工程师,这对我来说是不够的,我很难找到任何愿意在我的领域进行适当计算的人。
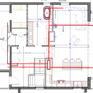
我的房子是1250平方英尺的单层(不包括地下室),我不打算在地下室安装热泵。我现在专注于一楼,我想建立一个设置,在冬天加热和夏天凉爽。我想要能够关闭卧室的门,所以一个安装在走廊墙上的装置很可能不会满足我的要求。
从附加的房屋布局中可以看到,卧室完全位于起居/厨房/餐厅的对面,并被一个非常封闭的走廊隔开,所以整个房子的一个头部也不能工作。
我决定花些时间在coolcalc上手动进行J计算,以计算出每个房间的不同负载。我的房子(在加拿大魁北克)的假设如下:
-空气渗透=严密
-墙体保温= R21
-天花板绝缘= R44
-所有窗户的尺寸都是正确的,双层玻璃low-e (R4)
-夏季温度= 80F
-冬季温度= -10华氏度
我最终得到了以下值:
全屋供暖负荷= 24 000 btu,包括地下室房间负荷
全屋冷负荷= 17000 btu,地下室不制冷
起居/厨房/餐厅:制冷= 1800 btu,供暖= 8171 btu
卧室1:冷却= 1415 btu,加热= 1833 btu
卧室2:空调= 764 btu,暖气= 1516 btu
未列出的房间(入口、浴室)将通过辐射地板加热,不像生活区和卧室那样需要冷却。
选项1:
一开始,我看的是一个2区18k的单元,卧室有一个7-9k的导管盒式磁带,客厅有一个12k的壁挂。
然而,读到这里后,我怀疑我是否会有循环开关的问题,因为与压缩机的尺寸相比,卧室的负载非常低。
选项2:
独立的室外单元:
-一个9k的管道单元用于卧室,如富士通9RLFCD,可以调节到3100 btu(仍然超大,但找不到低于9k的单个管道单元…)
-一个12k的客厅壁挂装置,它也可以调节到很低的季节之间。
我目前倾向于选择2,但我真的希望从更有经验的人这里获得一些建议,因为可能我想多了,选择1就可以了。
GBA细节图书馆
根据气候和房屋部分,收集了1000个建筑细节



回复
整个房子装一个管道装置怎么样?
你是说一个“标准的”熔炉/空气处理器和热泵?我看迷你分割主要是为了效率和比大的中心建筑更便宜,也为了分区。
安装也简单得多,只有几个管道长度的卧室,我可以接受在客厅的墙上安装。
如果你的意思是整个房子只有一个迷你管道盒式磁带,我的印象是,客厅区和卧室之间的冷却/加热要求的巨大差异将很难调整,只有阻尼器。
我错过什么了吗?
我怀疑你用迷你分离器还是用标准的熔炉和热泵能省钱。然而,如果你想去全电动或想要更大的调制比管道迷你分裂是去的方式。
现在有一个从低静压到中静压到完全多位置空气处理程序的频谱,被认为是“导管小裂缝”。作为一个管道迷你分离器通常意味着一个迷你分离器室外机搭配我上面列出的三种类型的空气处理器之一的翻转和寒冷天气的性能。如果你有一个未完工的地下室,有足够的空间来运行管道工程,这可能是你最好的选择。
输送到不同房间的BTU/ hr只是风管设计的问题。你有更大或更多的管道到高负荷房间比低负荷房间。用一个单元为整个房子,你将只有一个恒温器和一个设置点。
是的,我想使用全电力,因为这里的电力成本都是水力发电,而且很便宜。根据你的评论,我继续寻找其他的选择,如全屋“管道迷你分裂”。似乎富士通18RLFCD可以做得很好,与适当的管道设置。
地下室,实际上还有一楼,现在都已经装修好了。
我想出了一个管道布局,可以有潜在的意义,并保持静态压力在0.36…我的下一步是计算管道的工作量…附件布局显示18RLFCD单元垂直安装在地下室楼梯墙旁边的壁橱中。有4个分支,在托梁之间有最小的弯头/配件。有一个中央无管道直接返回楼梯墙。我不打算把地下室和公寓一起装修。
让我知道你们的想法!我一算完管道的数据就回来报告。如果18RLFCD不合适,我总是可以跳到18RGLXD或24RGLXD。
看起来是个不错的计划。还有一些其他的想法。
1) 1:1管道的富士通机组没有底盘加热器。如果这是你唯一具有-10华氏度设计温度的热源,你可能想要选择三菱或开利(重新命名为美的)。
2)如果你所有的全垒打都用阻尼器,那么平衡气流可能会更容易,而且你的布局也不会有一堆额外的管道。
3)至少做一个超大尺寸的中央回撤(24英寸x 24英寸)。也可以使用2”+过滤器来降低压降。这将有助于通过0.36英寸的静压。
为了它的价值,我在我1200平方英尺的二楼安装了一个12 RLFCD,我很满意。
谢谢你的反馈。我会研究一下carrier/mitsubishi,但我真的很喜欢富士通的垂直位置,可以放在壁橱里,以及低调制和较高的静压。也许平底加热器是可以改造的东西?
本垒打绝对是一个好主意,看起来我可能只需要额外的15英尺左右。
至于退货,有什么理由选择24英寸x 24英寸的吗?我在考虑使用“底部”的选项的单位(见附件)拉空气直接通过墙壁。我猜这种方法会阻止我有一个合适大小的过滤器…
航母可以垂直安装,如果我没记错的话,18k也有类似的静压。
是的,图片看起来像一个好主意,但运气好,找到一个这样大小的炉过滤器(一个真正的,不是他们的装置包括的捕岩器)不会有很高的压降在600立方英尺。
看看这个。
http://www.phius.org/NAPHC2018/Think%20Little%20Slide%20Deck%20-%20NAPHC%202018.pdf
凯尔,
谢谢你给我指航母部队…在这附近好像比较容易找到。机组较低的加热阈值是5500英热单位/小时,比富士通机组略高,但也不是那么糟糕。
现在假期已经过去了,我开始为我的管道尺寸/手动D计算建立一个电子表格。
我现在纠结的问题是我应该瞄准多少导管速度?在前一篇文章中分享的幻灯片似乎目标是450 fpm,但这是每个管道分支,不管期望的cfm吗?
此外,手动D接头EL适用于900 fpm和0.08 IWC/100英尺的摩擦率…我知道如何调整配件的EL为450 fpm的目标(基本上是值的1/4 900 fpm),但我如何调整它为摩擦率?我的印象是TEL实际上是用来计算摩擦率的…因此,如果FR对配件的EL有影响,而配件的EL又对FR有影响,我该如何解决这个问题?
手工计算可能很繁琐,但能源先锋在这方面有一个很好的系列,https://www.energyvanguard.com/blog/basic-principles-duct-design/
我的做法是取机组的最大cfm输出量根据热负荷分配到每个房间。然后看看这张图表(https://www.energyvanguard.com/blog/best-velocity-moving-air-through-ducts/),并确定每个本垒打所需的风管尺寸,速度约为每分钟400英尺。每次本垒打时,把配件保持在两个肘部和一个风管靴,你应该会没事的。通过保持较低的速度,你可以将管道损失降到最低。
不知道为什么这么多人似乎高估了供暖负荷,我的房子只有大约50的HERS评级,有28kBTU的供暖负荷(2100平方英尺,高天花板,成吨的R4+和R3.5玻璃,绝缘与你的规格相当)在蒙大拿州的高架地板。一个额定28kBTU (47F)的ASHP已经足够,三个管道空气处理器15k, 12k和9k。ASHP和3个空气处理器(通电时)消耗约150瓦的基线,并处理过零度以下的温度(室内68华氏度或以上),在非常寒冷的月份,ASHP的耗电量约为1500千瓦时(在过渡月份低至50千瓦时)。也许18kBTU的ASHP就足够你的整个房子用了。许多人认为ASHP的规模太小。
PBP1,如果我可以问一下你2100平方英尺的房子,你的系统的制造商和型号是什么?你住在哪里?
我在这里发布更新我的项目的状态。我基本上找到了一个很好的布局,最大跑步长度约30',每个3肘。每次下入都是8英寸的刚性管道,并使用阻尼器进行平衡。总压力损失包括2”褶形过滤器(24x24),但没有在寄存器的供应弯头(我无法在我的配件数据库中找到压力损失)约为。22。我认为拟合的损失远不止。2-。所以我很擅长处理压力方面的事情。
我这次用ASHRAE方法来计算而不是手工J,所以不是基于配件的EL,而是基于速度、直径和cfm的直接上升损失值的配件数据库。我发现它更容易使用和精确。该数据库可在Ipad和iphone上使用,只需10美元。
现在…据我所知,管道装置可以做到这一点……我想买一台富士通18RLFCD,没有导管的最好价格是7600美元(CAD)。但是,我找到了一个承包商,他以更低的价格提供以下美的单位。单区是3000美元,多区是5500美元,但我有2500美元的政府奖励在多:
单区18k btu:DLFSDAH18XAK(室内)/ DLCSRAH18AAK(室外)
多区域27k btu(一楼18k管道,地下室9k墙单元):DLFSDAH18XAK(室内)/ 9k墙单元(室内)/ DLCMRAH27CAK(室外)
他们建议多区域而不是单一区域的原因是,由于某种原因,多区域比单一区域更容易翻身。多27k加热范围为6000-36000 btu, 18k单加热范围为8900-21400 btu。成本方面,它似乎是更好的BTU/$$$,特别是现在我也可以用热泵加热我的地下室。
在这种情况下,有什么危险信号吗?我的意思是……最低的暖气比18k的好,我有足够的空间……很明显,对于我的需求来说,上面的范围太大了,但如果它可以足够低,为什么不呢?
除了富士通的节流到±3000 btu,我找不到其他型号的导管mini可以比多单元调制更低,特别是价格。
开利出售改头换面的美的手机。他们的文档可能更完整,美的本身可能没有很好的英文文档。1:1的最小值比multi高是说不通的。也许可以对照一下运营商的文档来确认。你可以在这里看到户外设备的技术规格
https://www.shareddocs.com/hvac/docs/1009/Public/0C/38MAR-08PD.pdf
考虑到你的设计温度和这些有底座加热器的事实,我认为它们比富士通更适合。
我正在使用DLCSRAH18AAK的一个项目,可以确认它是需要的东西,数据表似乎是正确的。有点奇怪,因为12k版本有更好的旋转。它仍然工作得很好,再次使用也没有任何问题。
在你的情况下,我认为多是一个不错的选择,我只是看运行地下室单元将如何影响你的电力使用。有时,一个小的头在多分裂可能会产生问题,但至少在这种情况下,单元的最小值是高于头的容量在所有情况下。
如果不可能重力排水(总是最好的),如果你正在使用他们的内置冷凝水泵注意你的路线。这个泵的升力很低。
我在蒙大拿州,设计温度是-1华氏度,它是一辆三菱过热车,额定28.6 kBTU/h,今天是0华氏度,房子(2100+平方英尺)的设定点是68华氏度。我有三个管道15k, 12k和9k经济特区空气处理器。这一切都得到了HVAC和她的评级/能源顾问的同意。没有抱怨。而且,我发现Akos的帖子信息量很大。
凯尔,我刚看了开利的文件上面写的和美的完全一样。这是奇怪的…正如Akos所说,12k单元的最小值为1800 btu,这真的很棒。
我真的在考虑要不要用multi。我想在这一点上夸大…哈哈。当这里零下22华氏度的时候,18K的空调肯定需要一些备用的热量,但用27K的,我可能会很好,而且从理论上来说,翻转效果***好。由于政府大力推动多区迷你全屋供暖,它最终的成本也会与单区相同或更低。实际上,如果你选择单一区域,只有2个以上的室内机或中央管道,他们不会给你任何东西。
Akos,既然你对18k单区有一些经验…你知道不太好的回绝是如何影响到一天结束时的冷暖账单的吗?我一直在这里读到调制对效率很重要…但如果没有任何真实世界的使用数据来支持这一说法,就很难弄清楚这一点。我努力寻找富士通,但价格离谱。我刚收到另一个承包商的报价…11 000美元……
回到多重概念…9k的单元可以加热整个1200平方英尺的地下室,所以我想它的循环可能不会太糟。在一个更大的室外,一个小的室内会有什么样的问题?
这台机器上没有电表,所以我不能评论它的效率。我注意到的唯一一件事是,在温暖的日子里,我能听到室内空气处理器循环的声音(每当给自动风扇送热时,它就会从低电平升高)。
快速看一下3区单元,我真的不明白为什么不去做它在这种情况下。该单位有更好的调制范围比大多数多分裂和价格是正确的。一些稍微好一点但花费更多的东西将没有真正的投资回报率。
这里的大多数热泵问题来自两个方面:
超大号的单位
草率的安装
在您的情况下,27k是有点大,但如果包括地下室的供暖负荷,就不会太远了。
对于安装,我一定要阅读Jon关于正确安装的这篇优秀文章:
//m.etiketa4.com/article/reducing-refrigerant-leaks-from-heat-pumps
你要看用肥皂的压力测试和真空衰变测试。我的意思是真正看到它。我曾经遇到过一些人,他们在被叫出来之前甚至都懒得用真空测量仪,当然,他们通常会说“你不相信我能做好工作”。
阿尔卑斯山脉,
谢谢你的反馈。我太喜欢多路了。这看起来就像是“好得令人难以置信”的事情之一。尤其是因为它是美的,而不是Mitsu/Fujitsu/大金。
我再次查看了政府网站,如果你带3个室内机,他们会给你5000美元(!!)我想增加一个9k单位到我的附属车库:)。通过这样做,我肯定不会再变胖了!
我不知道具体的多分离器,但大多数多分离器在所有的头部都放了一些制冷剂,即使头部是关闭的。例如,我的LG multi通过它的额定BTU值相当高,如果我只在另一个头设置为加热的时候打开卧室的风扇头,它会很快使房间过热。
请记住,添加一个头到车库可能需要额外的运行成本,即使您不使用它。我从来没有检查过这是多少,它很可能小到不用担心它。另一方面,如果你想把一些最小的热量一直放在车库,这是一个不存在的问题。
所以在我在第11页分享的链接中,你没有看到5500英热单位/小时的下降吗?或者这是一个不同的单位?
实际上,我不认为暖气的关闭会使两者之间的效率差异变得更舒适。冷却的最小值是多少?
凯尔,是的,我看到5500英热。38MAQB18R—3室外机在这里似乎没有。我实际上是在询问这个特定的单位,但所有的承包商只能访问38MARBQ18AA3模型,这是完全一样的东西,我引用的DLCSRAH18AAK, Akos与。
我看到38MAQB18R—3出售的唯一地方是在网上……这附近好像有只独角兽!
DLCSRAH18AAK上的最低冷却温度是6500 btu,而27k的最低冷却温度是7765 btu。至于它的价值,管道室内与38MAQB18R- 3独角兽最小是4500 btu…
那么,1265 btu在两个更可用的单位之间会有很大的区别吗?
直觉告诉我,我应该继续寻找开利独角兽……
考虑到政府的2500美元,我将选择multi。你自己在安装吗?我要确保你理解多分割的任何细微差别(最小/最大行集长度,分支框的考虑,如果有的话)。
谢谢你的建议,谢谢。
我只打算自己做管道的管道和一个承包商将处理制冷剂管路。然而,我确实看了一下线路设置长度,似乎非常直接:最大总长度(添加室内机的长度)和每个分支/室内机的最大总长度。这一特定的多不需要分支盒,它可以直接带走3个室内机冷凝器。
最后一个项目到目前为止,我的最终决定是找出多冷凝器是完全调制像一个1:1的单位,或只做它在“步骤”。我在这个论坛上看到过几次Dana和其他单位(如《三菱》)的评论。似乎这个信息在制造商的说明书中比较难找到。
我们得谈谈。有好多问题要问你。
在这里(Mtl岛),很快就会开始一些雷诺。松下ERV,加上我知道我的迷你灯很快就会死,我在寻找多分区的单元,可能是2个管道(一个是3间卧室,客厅/厨房,另一个可能是一个小的地下室。车库墙装置?嗯
对暖通空调公司很好奇。我做过价格,没人做过手工j。好像QC部门不关心这个。甚至有人告诉我,他们没有密封管道,空气逸出会加热地板。Wtf。
如果你想去贝诺伊特罗雄找我,gmail频道
给你发邮件了!
你是对的…这里好像没人在乎。手册J主要用于美国。在加拿大,CSA有另一种基于ASHRAE文档的负载计算方法。我在一段时间前停止了搜索,只是通过coolcalc非常小心地输入我的细节,否则它把数字弄乱了。
快速更新项目:
看来多区热泵的政府积分可能只适用于非管道机组……现在,很难说一个“细长的管道”是否符合非管道单元的资格,因为通常制造商将它们与墙壁单元和天花板/地板卡带一起列在无管道目录中。太让人困惑了…
我想,如果我在我的地下室安装一个细长的管道装置,当检查员来进行信用检查时,它没有连接任何管道,也许可以工作?哈哈