以上有住宅的车间:供暖建议?
你好,
我是一名26岁的木匠,住在7A区,5040度天,计划在2018年春天建一个居住在上面的车间。结构为24'x36 ', 2层,底层4″板,二层1.5″混凝土顶。墙是8个″sip或2×6与2″XPS的外部,尚未决定。此外,还有一个附加的12'x36 '甲板覆盖在西边的一个车棚。我的希望是在物业上有一个+/- 7kW光伏电网系统,并且在物业线也有天然气可用。我的研究让我找到了一些方法来为这座建筑供暖,但首先是什么促使我做出这个决定:
——价格
-易于安装
——效率
选项A: Navien的NG Combi锅炉,用于两个板的循环加热。因为安装NG、油管、歧管等的成本,我几乎把它写掉了。还得再付一笔水电费。
选项B:每个房间的欧莱雅电加热电缆盘。安装费用约为4k美元,并允许个人调整房间。我可以自己安装。但似乎不是一个非常受欢迎的选择。
选项C:富士通壁挂式迷你分离式热泵。缺点包括冬季温度低于25摄氏度,安装和初始单位成本。优点包括一年中有几天的冷却时间,这是很好的,而且效率更高。
很想听到人们的经历和想法。提前致谢!




回复
用户- 6964558,
首先,你能告诉我们你的名字吗?
第二:如果你想在气候区7的2x6外墙上安装连续的硬质泡沫,泡沫层的最小r值是R-15,所以2英寸的XPS不起作用。有关此问题的更多信息,请参见刚性泡沫护套最小厚度的计算.
第三,大多数环保建筑商避免使用XPS,因为XPS是用一种发泡剂制造的,这种发泡剂具有很高的全球变暖潜力。有关此问题的更多信息,请参见选择刚性泡沫.
最后,我建议你安装一个来自富士通的寒冷气候无管道的微型分裂器。在室外温度-25°C(-13°F),富士通微型芯片将工作良好。
从我在缅因州的个人经验来看,富士通微型断路器工作得很好。
至于车间,是一直加热,还是偶尔加热?你是否想把这两层分开来处理,在两者之间采用坚固的绝缘和空气密封?
如果不做辐射,为什么要在二楼用混凝土?
无论你做什么加热,放至少4英寸的再生泡沫在底板下。
谢谢Stephen和Martin,
我必须仔细看看最低r值的cod要求,但我认为你可能是对的,必须坚持3"分钟。此外,XPS在这里很容易得到,半阻燃,并在较冷的温度下变得更好(所有重要因素)。
研讨会将是半定期的加热,我的最佳猜测是一周有几天。我会尽量让两层楼分开,因为底层是木工车间,我想减少灰尘和声音的传递。二楼的混凝土将是由于声音传递,但抛光混凝土将是我的首选。
如果两个楼层的无管道迷你裂缝最终花费了2倍或3倍的金额,仍然值得投资和良好的ROI?
谢谢,
内森
由于HFC发泡剂的消散,XPS在几十年内就会失去性能。制造商不会为任何超过90%的产品提供保修期,即便是这样的保修期也太长了(考虑到几乎没有人会对产品进行测试,并试图在使用40年后收回产品)。从设计角度来看,应该谨慎地将其降至~R4.2/英寸(完全耗尽的性能水平,与第1天和第20001天的EPS性能相同)。目前还不清楚,在仅仅15年的服务后,它的测试性能是否会优于R4.5/英寸(保修性能)。
从设计的角度区7分层盘旋飞行,它的合法使用40 f为EPS ASTM C518测试值,它密度”二型“EPS为1.5磅~ R4.5 /英寸,而不是25 f值(~ R4.7 /英寸)所以你会好去与EPS、XPS 3.5”(耗竭)。如果采用i型(标准密度1磅)EPS,即使在40华氏度,也只能达到4英寸。以下是不同温度和密度下的典型供应商评级图表:
https://www.insulfoam.com/wp-content/uploads/2014/04/Insulfoam-EPS-Physical-Properties.pdf
护套露点控制的最小外部R代码见表RR702.7.1:
https://up.codes/viewer/utah/irc-2015/chapter/7/wall-covering#R702.7.1
对于低热负荷的建筑,尤其是保温房屋,无罐组合锅炉的解决方案通常是一个严重的不匹配。生活热水的性能要求把它的规模扩大到最小火输出超过设计热负荷的一半。他们是一个更好的匹配的热负荷大和中等家庭热水负荷的漏热房屋。如果要组合,坦克类型的组合更有意义。
开始获得最佳解决方案,从计算第99百分位温度箱的热负荷为您的位置计算。如果您甚至不知道您的墙壁堆叠和U-Factor,它太早到了SPED的加热解决方案。窗口性能也将使这些计算也至关重要。
要想用接近于安装在房子上的光伏阵列实现净零,就需要利用热泵,而富士通在你这样的气候条件下有着良好的记录。
使用BeOpt这样的工具来模拟房屋的峰值负荷和年能耗也会很有用。
迷你分割真的要花3倍的钱吗?
如果你可以自己安装,我认为不会。
我知道你没问,但你有100平方英尺的走廊,我讨厌走廊
如果你向右滑浴室和走廊与厨房的共享空间,它使厨房更大的免费,然后把浴室门的厨房或客厅几乎完全消除了卧室走廊,并使房间的衣橱你……
Keith,我需要做更多的计算,并与当地的代表交谈,但我已经计算过,每层安装电动垫子大约需要2000美元,而富士通Mini Split每层大约需要3500-4000美元。
谢谢你的平面图建议,真是个好主意。和我一起工作的设计师告诉我,她把东西排成了一排,方便水管的堆叠,但把整个浴室与地板搁栅对齐3.5英尺应该不会有太大的区别,所以我建议进行改变。此外,不打算安装壁橱在这一点上,想要使用家具来保持东西开放。
丹娜,谢谢你提供的所有信息,当我决定我的墙壁系统时,我会仔细研究的。只是在等着得到sip和传统棒子的确切价格与外部刚性框架。
谢谢,
内森
如果你正在建造一千个农场住宅,管道安装成本很重要。虽然最好不要在管道布局上犯愚蠢的错误,但它永远不应该影响楼层平面图。他们必须在一些强制性的课程开始前,在建筑师们睡着之前,教他们(只是开玩笑,放松)
我从上一栋房子里剪掉了8英尺多长的走廊,因为设计师把家庭浴室放在走廊的尽头,以便与主浴室结合在一起。这个空间变成了壁橱和主卧室的空间。浴室被移到了客人想要的更中心的地方。实际成本?不知道,但热水管道大约有14英尺长,因为冷水流经浴缸,排水管也流经浴缸。我看到你也付出了类似的代价,从一无所有到几英尺的排水和水管。
即使有PV,你在垫子上的积蓄也会在运营成本中迅速消失。
只是因为我没有更好的事情可想....
把浴室移过去可以让你摆脱大部分的走廊,你得到了同样大小的卧室,相邻的墙壁变成了一对壁橱。你需要壁橱,即使只是为了在你的父母/监护人/潜在监护人/假释官/贷款官来访时扔垃圾。
既然浴室现在就在楼梯旁边,你可以在楼梯上方腾出一些空间来装浴室的窗户,这很好,而且额外的天花板空间会让它感觉更大
堆叠在浴室的左边意味着应该没有任何排气问题的岛屿水槽。你的衣服没有被展示,而且我假设你的地板搁栅有24英尺长,没有排水问题,也许你需要一个通风口,也许。
你不会真的要走出去走进你的店里,对吧?
好吧,我受够你了........
嘿,基思,
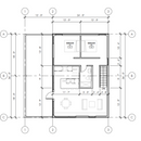
谢谢你的建议。我很想利用楼梯下面的区域,所以我要用它来做我的机械和洗衣。粗略附加。
还有,我只是把旧的计划丢进去,看看,想想。真想听听你的变化。
记住,对我来说,推动项目的是预算、效率和美学。顺序可能会随着决定而改变:P
查看浴室窗口小区的空间
唯一复杂的是你的管道与排气孔的距离。如果排风口在浴室和厨房之间的墙上,我认为所有东西都在排风口的距离内,如果排风口在楼梯上,厨房的水槽可能太远了。别听我的,去找个水管工,但别让水管工把你的平面图搞砸了因为他想帮你节省5英尺的水管。
内森,
你能忍受车间里几乎没有窗户的情况吗?似乎有点极端。
基思,好吧,我再仔细查一下。还有,还是不相信我需要衣柜,单身汉住在最好的地方!
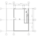
史蒂夫,O/H车库的门有窗户。但没有其他窗户。因为将4年级高于3面板高度,与雪的数量,我想我可以得到雪以上的商店的窗户以及到达距离内打开和关闭在夏天当我需要流动的空气。我的想法是把我不会花在低窗户上的钱花在套房的窗户上。在夏天,尽可能多的打开OH门。
这是对计划的最新修订。注意:浴室还没有被移开。
内森
内森,
我在上一栋房子里也有一个类似的车库门。尽管它是朝南的,但它并没有让大量的光线进入。
车库的另一个选择可能是一对灯管。您可以将它们放置在您的工作区域以获得最大的利益。威卢克斯(http://www.veluxusa.com/landing/light-tubes-tubular-skylights)已经制造灯管很长时间了,但可能还有其他同样有效的选择。
好看的建筑
没有在滴灌管下面的窗户可以非常接近地面,没有什么负面影响。我会再加一两个。想象一下,当停电的时候,你在浴室里,试着摸索通往出口的路。不在洞穴里可以让你继续工作(我知道,我在洞穴里工作)
我从你那里看到了新的细节,计划是让烟囱和楼下的厕所对齐,帮你自己一个忙,花几百美元让管道稍微复杂一点。
我对我所讲内容的粗略解释:
哦,回到正题上,你可以在卧室之间现在很小的走廊上方放一个管道迷你裂缝,然后在每一间卧室上放一个小管道,在浴室上方放一个更长的管道到客厅
https://www.acwholesalers.com/Mitsubishi-Air-Conditioners/SZ-KD09NA-9000-BTU-15-SEER-Ducted-Heat-Pump/19626.ac?catId=cat1031&mainCat=&subCat=&trail=5188:Yes
它没有出现导管的单位标准使用超级热量允许超低临时操作它们是“只有”额定到-4F,但我不知道原因,也许可以在其他组合中购买头部和压缩机
Keith,我想我很喜欢NG锅炉的最初想法,然后再在上面的套间里增加一个木制壁炉。我和当地的热泵经销商谈过,在解释了项目和成本后,我想我会选择锅炉循环路线。
至于平面图,我采纳了你的想法,并稍微修改了一下,这样我就有了一个亚麻壁橱,用于存储和一个套房专用的100amp面板。我还是不太相信商店的橱窗,但如果我能给它留点空间的话。那我就这么做。这是下面