导管MiniSPLIT:管道设计和分销问题
Jeffesonm.|发布了机械在
(原来的线越来越长,所以开始这个新的专注于管道设计
//m.etiketa4.com/question/single-minisplit-for-ac)
我计划安装一个7+12/18k富士通薄型管道多分流,我现在在“管道尺寸”阶段。富士7/12机组的最大外部静压为0.36,额定风机CFM在每个转速下列于附表。单元将安装在未完工的地下室,管道贯穿壁橱/楼层/楼梯间。建议的布局如下,我一直在使用手册D和和管道calc的副本。Ca到大小的东西。希望得到任何一般性的反馈,然后帮助解决一些具体的问题:
我应该根据风机最大cfm来确定管道的尺寸吗?然后在较低的速度下,cfm更低,速度更低,从寄存器抛出更少,等等?
2)我知道高/低供应/返回寄存器的位置是一种摇摆取决于你是否制冷/加热主导。不考虑天花板,因为我想把东西放在有条件的空间/地下室。我倾向于高供应,因为我担心家具会妨碍地板供应。对于高侧墙供应寄存器,目标投掷距离相对于房间大小是多少?
3)对于返回,我计划为每个界面的个人回报,然后为“生活区”区域的一个中心,给出了空间的开放。我的目标应该是什么......提供CFM + x%,其中x = 10%?25%?50%?
4)这是我找到的一组纤细管道歧管的照片:https://bit.ly/2XYFsPh。除了一个有三个圆形的网点,我还没有在线销售。人们只是在现场制作这些吗?只要猜测EL基于附录3中最相似的配件?
5) Manual D附录3,A2和A3-3部分说明所有提供的EL编号都是基于900fpm/0.08 FR,必须进行相应的调整。调整到600 fpm时,EL下降了50%以上,这将影响摩擦率,从而改变所需的管道尺寸,从而改变fpm……此外,所有的寄存器在不同的fpm有不同的压力损失。我需要求出这些变量的交点吗?或者我是否在鼓风机规格内找出一个在纸上工作的组合,安装,测量实际静压,然后调整下鼓风机以匹配?



回复
我还不够一辆管道设计师回答你的大部分问题,但是......
对于低静态的版本,对于每分钟不超过400-450英尺的管道速度,即使在不完美的管道中也使静压降低。在寄存器处逐渐减少速度很高。Mike MacFarland的CFM向FPS向FPS的尺寸施加在这个博客中的尺寸很好,但他的目标速度更加强大的空气处理程序。使用低静态迷你分配时,您将在图表的左侧工作:
//m.etiketa4.com/article/the-best-velocity-for-moving-through-ducts-part2.
https://www.dropbox.com/s/pwgwl5m8vryqh5c/Duct%20Sizing%20Using%20FPM%20Targets%20and%20CFM%20MacFarland.pdf?dl=0
考虑在回流侧使用超大褶皱过滤器,以保持过滤器的静压较低,即使过滤到MERV 10或更高。通过超大过滤器的低风速改善了过滤作用,同时保持了较低的静压。(Aprilaire 2400在这里并不疯狂,尽管它更常用的1000cfm +空气处理器。)
谢谢,我之前没有看到图表或文章......让我对看起来更令人兴趣的速度低于手动D.的900的速度更低。
我应该根据风机最大cfm来确定管道的尺寸吗?
是的。我也想确保有至少15%的压力边际上累积在过滤器上。你不需要所有的导管都有相同的压力,但需要有一种平衡它们的方法。
我理解高/低供应/退货寄存器的位置
远离地板上的回收站,这些是垃圾磁铁。最好在返回寄存器处设置一个过滤器。密封良好的过滤器和返回管道意味着很少的灰尘进入你的系统,永远不需要清洁它。
对于供应登记,看一下房间布局。你通常不想把空气吹到坐着或睡着的人身上。如果你别无选择,试着把速度降低到每分钟150英尺左右。
3)回报,
不打算泄漏管道,返回流量与供应流量相同。
4)这是我找到的一组纤细管道歧管的照片:
您希望您的Plenum看起来像无标题的图像或F8B46DC675CB8C209D706291C9858161.jpg。
其余的对于一个低静压装置来说是相当有损耗的。
最简单的方法是让一家商店给你做一个从管道单元的开口到平面或多面面的静压箱。在这个上面你安装标准起飞来满足每个房间的需求。
在返回返回时,将从标准管道尺寸(即8x24)逐渐变为盒式磁带上的开口。使用Shept Bend进行所有返回管道。
5)手册D附录3
我只检查最复杂的管道,是的,如果你想得到确切的数字,那就需要迭代。或者你可以在更高的摩擦率下取EL,然后算完。
无论如何,您需要安装平衡阻尼器并在您调试系统时设置空气流。设置空气流程后,请检查静态压力并相应地配置迷你拆分(通常在恒温器上安装参数)。
也不要忘记将寄存器启动EL添加到压力计算器中。某些配置非常有损。
非常乐于助人,谢谢你的一切。
我一直在努力想办法让卧室的回报率高一些。1957年的石膏墙,所以没有割洞的愿望任何洞,除了寄存器。我要增加供给,以免妨碍家具的供应。我的计划是壁橱追逐,但在BR3中没有太多空间,在BR2中更少。也许用点创意,我至少可以把它们挂在和地板一样高的墙上,这样彩虹糖就不会掉下来了。
对于BR区,我非常喜欢供应和返回箱平行的布局,但直接吹进T区似乎天生不利于气流。以不那么直接的返回布局为代价,在供应侧实现平稳过渡是否更重要?
典型的50年代的房子有石膏在干墙板条上,这些更容易工作,因为他们更光滑的内部。从地下室,只要通过两个螺柱之间的底板和安装管道到注册开口。不要太乱。我怀疑你需要一个超过10x3 1/4管道返回卧室无论如何,它很容易适合在墙内。
只要压力损失没问题,你就可以用增压箱做你想做的事情。T形不是最伟大的,但如果你把它做得足够大,也没关系。在T字中间添加一个V型分流器不会有什么害处。我认为双侧肘会更干净,限制更少。急弯是限制性的,无论在供应侧还是回程侧。
不要忘记在返回到卧室盒子之前,在返回之前添加过滤器。
再次看着你的地板锅,看起来你没有向巢穴供应。这是一个有两个外墙的大房间,它应该得到自己的供应。
是的,你是正确的,墙壁是蓝色干墙板板上的膏药。墙壁堆栈听起来像一个好的计划,我应该能够做到这一点,值得努力让返回地板。我实际上有来自原始房屋施工的照片,看不到内墙的任何堵塞,希望这是这种情况。
我会在供给全会上想出一些有创意的点子。
没有简单的方法,我可以看到给予巢穴的供应,所以我要跳过它,把那只小册子放入餐厅,希望它至少有点混合。两者之间的开口是〜5'宽。右边的墙壁实际上是一个未加热的车库,所以可能比外墙更好。餐饮/巢穴是一个添加的,所以有一个块壁在房子余下的地下室的那一部分下分开了爬行空间。
对于返回过滤器,我将CFM / 2视为过滤器空间中SQ IN的公共指南,因此〜400 CFM为200平方米或20x10。这比我计划的返回管道更大......我刚刚倾斜过滤器吗?或放大管道容纳?听起来4“-5”厚滤波器提供更高的表面积和更少的压力损失,但我真的不能将其中一个角度。关于普通过滤尺寸的任何建议都会很大。
纤细的管道单位做的头比熔炉少得多,经验法则是行不通的。
一般情况下,您希望过滤器的宽度不超过0.1英寸,所以对于典型的过滤器额定为150fpm,所以400cfm的过滤器应该是16x25的。
越大越好。一般来说,尽量使用最大的过滤器,如果能装得下的话,越厚越好。确保你有地方把它滑出来。
倾斜过滤器工作得很好。最简单的安装是在一个更大的回程烧烤架后面,像这样:
https://uploads.disquscdn.com/images/2ffa6e108a7ded9f51130ff14126239b275b1244b7d53138beb63b4182d68beb63b4182d68b124b4182d68f13.jpg
对于您的卧室,可以更简单地使用门底切或每个房间的转移管道以及走廊中的一个回归。
我会试着去巢穴。您可以随时添加底板进行补充热量,但在完成所有这项工作后感觉错误。
深褶皱将比倾斜平面过滤器的表面积增加。仅在您无法计算实际压降时才使用拇指规则。
Re 5'开的门:在1623英热单位/小时负荷下,在设计温度下,它应该小于其他房间的3F delta(通常更少)。
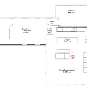
12K单位上长红色管道的目的是什么(VS定位它非常接近空气处理器)?我的理解是,通过开放的门道,返回位置无关紧要 - 它的注册抛出,确定混合,并且当它是正确的时,房间内的扩散就会发生返回位置的任何帮助。
https://www.nrech.gov/docs/fy12osti/53352.pdf.
有一个现有的墙寄存器,直接打开到地下室。以前的主人已经安装了它从曾经在那里的木炉中获得热空气。我计划放大它,然后将返回管道运行回12k。似乎额外的直管运行的10'效果可以忽略不计,对总有效长度和摩擦/压力/尺寸计算。这些房间之间的开口(没有门),所以我希望一个适当大小的中央回报都足够了。
# 4
我找到了一个英国供应商的模压增压-他们匹配的各种美国模式。他们把船运到美国
https://www.airconplenums.com/fujitsu-plenum/arxb-07-18-galh/arxb-07-18-galh/fujitsu-arxb12-18galh-supply-air-plenum/
这些型号不符合美国型号,虽然它们呢?哪一个对应于富士通的RLFCD系列?
这些都是损耗很大的气门,一个急剧的起飞大约是35' EL,而一个锥形的是15'。低静态头,你最好得到一个钣金店,让你一个简单的盒静压箱和使用标准锥形起飞。
我给他们发了一张纸条,看看他们是否适合ARU9RLF或ARU12RLF。以下是回应。
“是的他们所做的。在欧洲,富士通为他们的产品使用不同的参考号。在这种情况下,模型是aryg07-14llt。适合这个单位的增压箱可以在这里找到:
http://www.airconplenums.com/fujitsu-plenum/aryg-07-18-llt/aryg-07-14-llt-a-and-b/
AKOS可能是正确的,添加的长度 - 我的速度很短,直接空间位于单位定位以及两个相邻的卧室。虽然我可能会看到用伪造的盒子提升起飞(仍然包裹起来)。我决定制作自己的回归。在侧面接入中包括10x20,在相邻的房间内连接8英寸至12x12。刚性管道。我喜欢垂直定位单位的能力。
我会拍几次镜头并很快加。
感谢这篇文章,它为我回答了大量的问题!当然,我还有一些……
我还在使用9架楼上加热三间卧室(总肠道和改造)。还没有购买任何东西。手动J向楼上提供总装载,楼上为12,851 BTU,从我理解的是,更好地略微向下尺寸。鉴于额定加热容量为-5°,我的地区的加热设计温度为0˚,我认为我应该没问题。是的...?
我的管道设计难题是在两个相邻房间之间的隔板上安装直供管道(br3的装置在壁橱里,所以它只是从静压室伸出一个弯头)。因为这是一堵非承重墙,我在考虑把管道直接藏在隔板的板上,让墙稍微厚一点。(我可能会在管道两边的胶合板上结痂)。换句话说,这个管道将在有条件的空间里。大概是4x11的边路。我要在管道上开几个口喂每个卧室。
有谁碰巧知道管道中的矩形开口(没有靴子)?我没有手动D,有人可以将我指向某个地方(或者至少是哪个出版物,我应该购买和来自谁)?我的尺寸-a-a-puct幻灯片规则Thingie有一个硬90˚的图表,是我应该使用的是什么?因为我的导管跑得很短,所以我相信我的FR会很低,所以也许我不应该担心?我还想知道。
如何接近平衡阻尼器的问题?在这种情况下,寄存器本身会用作阻尼器吗?
管道尺寸和注册大小之间的关系是什么?他们是平等吗?喜欢,如果房间的CFM要求决定了4x11管道,这是寄存器的尺寸应该是(或两个等同的较小的,也许,取决于房间的形状)?
>“考虑到额定加热能力是-5˚,而我所在地区(SE CT)的加热设计温度是0˚,我想应该没问题。”
-5F是有特定容量的最低温度,而不是“…额定热容量……”。指定的最大容量[电子邮件受保护]-5F是13,500 BTU/hr。
这不是解压缩周期中的净输出分解,但它可以在该温度下提供的最大值。将有一些降级的解冻,但它至少为12.5-[电子邮件受保护]在除霜雾之外的任何条件下(在CT的-5华氏度下这是相当罕见的,即使在新罕布什尔州的华盛顿山山顶有点常见)。
“额定”或“标称”容量是在+17F和+47F时,在AHRI测试协议下逆变器锁定为60Hz的效率测试的调制电平,每提交表为12,000 BTU/hr。
>“......以及我所在地区的加热设计温度(SE CT)是0˚”
不是!即使是99.6百分位的温度箱也处于正数字。对于最合理的紧身屋,墙壁中至少有一些绝缘材料,它习惯使用第99百分位温度箱,这对于大多数SE CT将是+ 5F和+ 10F(沿海城镇的温暖)。99%Outdent Design For Norwich为+ 7F,New London's&Norwalk是+ 9F:
https://articles.extension.org/sites/default/files/7.%20Outdoor_Design_Conditions_508.pdf
https://www.energystar.gov/ia/partners/bldrs_lenders_raters/downloads/County%20Level%20Design%20Temperature%20Reference%20Guide%20-%202015-06-24.pdf
https://www.captiveaire.com/catalogcontent/fans/sup_mpu/doc/winter_summer_design_temps_us.pdf.
使用+ 5F的设计温度比0f,甚至是沿海社区的+ 10f更合理。
在制造商的测试条件下,在+5F时的最大容量是15,000 BTU/hr,这比您在+5F时的~12,000 BTU/hr热负荷高出25%。对于大多数寒冷天气来说,这已经足够了,但将其提高到12RLFCD也不是什么疯狂的事情,12RLFCD在+5F时可以提供16500 BTU/hr,大约1.35-1.4倍的超大尺寸:
https://ashp.neep.org/ !/产品/ 25312
https://ashp.neep.org/ !/产品/ 25310
ASHRAE建议在99%的外部设计温度下,负载的超尺寸系数为1.4倍,如果我对热负荷的计算有信心,我个人将在本例中指定12RLFCD (YMMV)。两者的最小调制水平是相同的,12RLFCD的COP @ 47F(更接近您的平均采暖季节负荷)在低调制端@ 47F比9RLFCD的稍高。
这个单位最好稍微小一点。
为了加热,最好将最大系统输出(包括补充热量和额定值输出大于额定/标称输出的输出)超大约25%,以考虑比设计温度更冷的温度。
一定要考虑到正确的寄存器投掷所需的速度(如700 fpm)。
所以,寄存器越小,抛出的次数就越高?也许这一点是,足够的运动来混合空气,但又不是太多,让空气变得很轻松……同时保持静压力在一定范围内。是否存在静压过低的情况?
平衡阻尼器是否会成为寄存器本身的一部分,如果没有启动?每个寄存器只是管道中的一个开口,由格栅覆盖(我在商业系统中看到了很多这些)。或者,是否需要靴子,所以我可以坚持下面的阻尼器?
>平衡阻尼器是否是寄存器本身的一部分
管道中的阻尼器不利用压力降(即浪费能源)。同样的限制作为烧烤的一部分可能会增加扔和混合。
防止气流产生不适的一个技巧是让气流穿过天花板。
如果在它背后有一个公平的压力,请切割矩形导管中的孔喂养房间。通过迷你裂隙,您可能无法足够,如果压力足够低,您可以开始通过那样从房间吸入空气。
为了让它起作用,你需要在流中形成一个勺子。你可能可以通过在管道的下游一侧做一个像皮瓣一样的切口来接近管道,然后弯曲这个皮瓣进入管道,创造一个勺子。你可以通过勺子插入多少来调整流入收银机的流量。
使用单一管道的一个问题是声音。你会得到很多房间间的转移。如果你有空间,运行单独的管道总是更好的。如果你没有空间得到一些管道衬垫(刚性绝缘面板与面对)进入管道的脸对面的寄存器。
我可以运行单独的管道,更安静更好,听起来像分区也会更好地工作。
楼上我想跑扁椭圆形。对等效的扁平椭圆形弯曲的el更高,而不是圆形?我猜硬与易扁椭圆形弯曲不同。手册D手册是否具有扁平椭圆形配件的EL列表?(我不确定我需要在手册上花费80美元,但也许我这样做......)我找到了一个有用的指示手册,用于导管设计,最终列出了EL长度......但仅用于圆形和矩形管道:
https://www.cedengineering.com/userfiles/How%20to%20Size%20and%20Design%20Ducts.pdf
良好的信息与处理椭圆形的墙壁中的方式有大多数配置。
http://eccomfg.com/pdf/News/OVAL%20FITTING%20STUDY_rev3.pdf
你太棒了!谢谢!
http://genewoltz.com/HTML/NOBA/Assets/Library/ANSI-ACCA_Documentation/ACCA%20Manual%20D.pdf
你一定有一些很棒的网络搜索技能来找到它!
这是一个礼物。谢谢你!
您可以在第1-11页中看到P.5(PDF分页中的P25)为什么我在使用低静态管道迷你分型盒时,我将每分钟400-450英尺/分钟作为管道速度的上限。虽然该图表仅在线圈的压降下看起来,但它也与管道,过滤器等比例施加到450 FPM,压降是在相同线圈上为900 FPM的约1/3(或管道或过滤器......),以及300 FPM,它小于1/3。
较大的空气处理器通常具有cfm额定流量为0.8-1.0" w.c.,而低静态的富士通xxrlfc可以满足不超过0.5" w.c.的流量规格,而三菱KDxx只有0.2"。
好的,在我呼吸呼吸时会发布一些照片。
一个问题...安装手册说要测量外部静态压力,然后通过将设置更改为适当的IWC来相应地配置Blower。
我买了一个数字压力计和一些探头。我是否将它们插入供应和返回,立即在单位(s)之前和之后?也计划做之前/之后的滤镜,看看下降12x24x2“NordicAire MERV 12是什么。
你需要编程的数字是通过盒式磁带的压差,所以在单位前后探测。
在设置这个之前平衡卧室的流动,平衡流动往往会增加一些压力。
除了要求CFM需要的情况下,我没有平衡任何东西,除了试图尺寸。我不知道如何,没有引擎盖,最重要的是,没有时间。我提到我在2周的旅程中正在做这个安装,回到NJ工作吗?总安装时间为10-11天。这是我的第一个HVAC项目,我有一个助手大约一半的时间。整体事情很大程度上根据计划,我很满意如何结果。房子很酷,舒适,系统令人惊讶的安静,内部单元和压缩机。
我能够在2/3卧室的墙壁上运行高墙垛,第三是通过8x8管道在壁橱追逐。所有三个回程是正确的在一条线上,所以我能够把它们连接到一个单独的12x8回程管道,通过24x12短肘和24x12百老汇肘向下过渡。24 × 12直管道的短节,其中我切了一个过滤器机架为12 × 24 × 2过滤器(。07年下降)。然后我切割和弯曲24x12法兰,以满足回程打开盒式磁带。
对于7k的供应,我做了一个气压箱开始与一个短节的24x8管道组装成过渡,与25 1/2 x 6供应法兰配合。从那里,我使用了三个方形到圆形漏斗盒,8x8x8/7/6和铆接他们在一起,留下一个1"法兰周围的外部,我滑入s锁在24x8。把它全部铆接在一起并在所有接缝处涂上适量的乳胶漆。8/6/7“圆形管道通过壁橱追逐到卧室。通过7k盒测量的静压为0.22。
对于12K的电源,我开始使用〜2'的24x8(一端切割与供应法兰配合),然后过渡到16x8。底线弯曲楼梯墙墙,然后造成16x8偏移量。另一个短部分16x8,后跟另一个漏斗箱歧管的东西,这次分支成两个8x8x8s。其中每一个都是一个容易流动的T恤,8x8x6喂食两个起居室管道和8×6x6分支到厨房和餐厅。
返回是一个16x25壁安装格栅1“过滤器。越深越好,但我没有空间。因为它是我不得不槽口~3/4“x25”出一个螺柱,以使它适合。我在厨房橱柜里做了一个16x25x16的回风箱。底部打开下面的地板搁栅,所以16x14 1/2。我切割和弯曲一些3x4 30规格的钢板,以衬在托梁腔内,重叠接缝和密封胶泥。这个水平运行4',然后下降到16x8,过渡到24x8,然后到磁带。通过该装置测量的静压为0.25。
压缩机安装在铝壁架和两个运行是30'和40'。我有一个HVAC伙伴用氮气对管道进行压力测试,然后通过千分尺拉动vac。排水管道3/4为PVC。
总成本约6500美元,其中3000美元用于设备,1500美元用于管道工作,1000美元用于人工(助手和调试),其余为杂项和一些钣金手工工具。
有些照片在下面。感谢所有提供其投入和建议的人。
嘿,Jeffesonm
只是想知道你是否可以给我一个关于你的系统如何执行的更新。仍然快乐吗?
有什么关于将室外单位安装在房子墙上的思想是什么?噪音水平好吗?
第一次安装的调试/转向部分是如何进行的?你用压力计了吗?
有有线控制器/恒温器,如果是的话,你在哪里安装它?难以编程这件事吗?
再次感谢你提供的有用信息,我打算买三个。祝我好运吧!
是的,到目前为止还不错……对表演、噪音等感到满意。时间会证明可靠性和寿命。
最初我计划在房子的尽头沿着方式安装户外单位,但是沿着后院墙壁沿着后院墙壁进行更容易安装。对噪音不起时,即使在启动时也是超级安静。没有像我父母的传统交流一样。空气搬运工也很安静......你所听到的只是空气轻轻的潮流,没有风扇噪音。
对于调试钻头,我有一个HVAC家伙(朋友)用氮气吹扫线条,拉动真空,然后释放制冷剂。我借了一个火炬工具,并自己做了耀斑,这没有泄漏。
转动它是天际的。在第一次启动过程中,在手册中实际上存在相对较少,更像“正确安装并将其打开”。它确实说在操作压缩机之前等待12小时后等待12小时......不确定为什么,但我确实如此。然后我在粉丝中运行它的模式有点,只是因为,但是它是游戏。
我确实用压力计来测量静压,然后相应地设置空气处理程序。30美元从亚马逊买的,15美元?2调查。
是有线恒温器......对于卧室区域,我放在船上的墙上(我最关心的是正确的温度),以及在客厅里的墙上的起居区。在两种情况下,关于胸部高度而不是直接在通风口的输出中。除非您想做挫折或其他东西,否则不需要编程。
总的来说,管道花了更长时间,比实际的单位更复杂,但即使是因为我自己造成了一堆填充物,所以在成品墙壁等中恢复恢复。
>“是的有线恒温器……卧室区挂在主卧的墙上(我最关心那里的温度),起居区挂在客厅的墙上。”
我的理解是,XXRLF的控件是有线遥控器,而不是恒温器。即使遥控器具有温度传感器,默认模式也要感测进入空气处理程序的空气温度,以控制调制水平而不是在遥控器中感测,除非被编程为在遥控器中使用传感器,这使得它表现得像恒温器。
我没有在手册中抬头看那个细节,但这是一个好主意,在第一次冷鲷之前,你可能会看到一些非常大的温度抵消脱落。我很确定它与之相关Panel右下方的经济/热传感器按钮,其功能在我扫描的手册中也是很好的说明。您可能比我的视频从这些视频中获得更多:
https://www.youtube.com/watch?v=nzw3k8pvmey.
在此视频上滚动到1:30勾选:
https://www.youtube.com/watch?v=OhT8pEHpjfg
我希望我有一个暖通空调的朋友!还好我有你们。
在我真正准备好打开我的东西之前还需要一段时间(尤其是它还没有到),但如果我遇到任何严重的问题,我可能会再次纠缠你。
再次为每个人感谢所有有用的信息。你已经非常慷慨,真的很欣赏。
我有个好问题要问别人。我发现了一种叫做Cobre29的管道产品,它是半刚性铜管。我还在家得宝(Home Depot)看到了一个类似制作的半刚性铝管,这让我很好奇。人们用这种东西做管道系统吗?似乎是介于弯曲和刚性之间的一个很好的中间地带。你可能会有这样的优势:可以在不需要做很多“敲锡”的情况下,将材料弄得到处都是,同时也不会有通常伸缩管道的缺点,即它会被挤压而不会被拉紧,等等。
我认为波纹会增加半刚性的摩擦在光滑的刚性管道相同的尺寸,但也许我是错的?
COBRE29的产品文献指出,有更少的配件,使其泄漏较少,您也可以用它进行逐渐弯曲,这有助于降低静压,超过45或90度的弯曲或其他。
好吧,假设一切都很好,东西也很好。你如何计算一个逐渐弯曲的管道的摩擦率?有没有不同半径的等长图表?
哦,是的,这种东西有扁平的椭圆形。只是为了让它更有趣。好吧,我唯一找到的地方是英国。不过,我确实看过《老房子》(This Old House)中的一集,里面有个家伙安装了一个柔性的烟囱衬垫,他自己把它压成扁平的椭圆形,以便装进一个矩形的烟道里。它看起来很好。这是一件需要耐心和技巧才能完成的事情。
这是你正在谈论的东西:https://www.homedepot.com/s/semirigid?NCNI-5
它可以工作,但会有更多的摩擦。只要保持低速和保守的摩擦损失估计。
有关不同曲线半径和角度的相对摩擦,请参阅标签G8:https://www.acca.org/communities/community-home/librarydocuments/viewdocument?documentkey=040c19f6-d77e-45b1-b484-111cafb25cf1
或手册J附录3
您可以近似您制作的曲线,并使用配件作为参考。
我通常只会在一些特定的地方使用半刚性管道,在这些地方,你需要通过一个需要弯曲的空间,但你不能进入到空气密封后,东西都到位了。它主要适用于较短的部分。
如果您真的想计算损失,我认为这是一个适当的参考:http://www.mcgillairflow.com/assets/literature/ductSysDesign_guide.pdf
请参阅第248页“柔性管,金属”。它看起来类似于Flex。
手动D有一个柔性金属管道损失图表:请参阅第154页
http://genewoltz.com/HTML/NOBA/Assets/Library/ANSI-ACCA_Documentation/ACCA%20Manual%20D.pdf
嘿Jeffesonm,
如果你还在那里。你在哪里让那些令人敬畏的广场到圆形过渡?没有一个当地的供应房屋已经看到了类似的东西。我可能会卡住必须修改寄存器启动。有人会给你做些什么吗?
你用铆钉有什么特殊原因吗?FW Webb卖给我的是金属片螺丝,但我以前也用过铆钉,它们看起来不错,不管怎么说,当你把手伸到管道里的时候,没有那么尖……
它们是灰色金属产品系列318烟囱靴。我在当地从Dasco购买了它们,Dasco是一家位于新泽西州爱迪生的暖通空调/钣金供应商。我也是在网上找到的:https://abrwholesalers.com/brands/gray-metal?e_series=318
所有的管道都附有钣金螺钉,我在歧管上铆钉,因为它们在内部的超级安全,永久性,更少的尖锐。事实上,我有时只是完美的完美主义者。
我想你和我是类似的思想家。再次感谢你!
“漏斗启动”不是一个术语,我可能会留下来到我自己的设备。
斯坦福德有一个Dasco,我本周星期三在那里穿过那里,所以我可以停下来拿起一些部分。
像往常一样,你的建议是无价的。
jeffesonm: >校正到600 fpm降低EL 50%+
我没有D手册,你能再谈谈吗?EL是一个比率,所以从900每分钟到600每分钟应该不会有太大的变化。如下图所示,类似的流量变化仅使EL从26下降到24(下降8%)。关于如何平衡流量变化(以及许多其他内容)的讨论也很有趣。似乎保持严格的温度控制是不可能的所有房间没有分区。
https://www.gohvacsales.com/static_docs/tech_tips/10_the_difference_between_equivivent_length_and_effective_length.pdf.
免责声明:我不是一名机械工程师,或者有人熟悉流体动力学,或者那样的东西...只是一个读的DIY家伙。
这里是一些手册D的草稿/复本,我认为这对我们的目的是足够好的:http://genewoltz.com/HTML/NOBA/Assets/Library/ANSI-ACCA_Documentation/ACCA%20Manual%20D.pdf
考虑图A3-2 - 等效长度与速度为0.08 IWC / 100英尺摩擦速率
将空气从900 FPM放慢600 FPM降至等效长度数字50%+。
我的外行解释这是......当你试图快速地移动空气时,紧紧弯曲的弯道真的很滑落。如果你的空气没有如此匆忙,则影响较少,如果你的空气正在服用它的甜蜜时间,那就几乎不如有多少弯曲。
您发布的链接似乎参考空气流量(CFM)VS空气速度(FPM)的变化,所以前者对等效长度的影响比后者更少?
从人工D:
另一个速度(Vx)和/或另一个摩擦率(FRx)的等效长度值(ELx)由以下公式计算:
ELX = EL X(Vx / VR)²x(FRR / FRX)
例如,默认的等效长度值是900 Fpm的空气速度和0.08的摩擦率,而Section N4的等效长度值是65英尺;因此,700 Fpm和0.12摩擦率的等效长度是26英尺。
ELX = 65 x(700/900)²x(0.08 / 0.12)= 26英尺
感谢手册D链接。附录3的图表和例子很容易引起误解,因为它保持了摩擦率常数(或小的下降),而通常情况下它是呈指数下降的。
公式正确:ELx = ELx (Vx / Vr)²x (FRr / FRx)
让我们以900 fpm为例,默认EL为65英尺,然后降至700 fpm。在这些速度下,一个12x12" 100'管道将大致(从另一个计算器):
FRr = 0.105(英寸wc/100')
FRx = 0.066(英寸wc/100')
所以我们有:
2 * (0.105/.066) = 62.56 = ELx
因此,具有合理的数字,EL从65到62.56下降约4%,而不是一些思想的大变化。另一方面,4%可能导致温度显着的3F差异(在低空气流平衡的两个非常不同的管道间之间)。
总而言之,EL随着速度而变化,但通常是个位数%。
等效长度和摩擦率只是在手册D中使用的“设计工具”。手册D方法通常会生成一个有效的管道系统,但它并不适合用于预测系统中的静态情况。我认为,当你想要在有限的空间中设计一个短期运行,并使其与系统的其他部分协同工作时,这是不够的。
我不是一个暖通空调专业人士。我是一名机械工程师。对于详细的工作,我远离谈论等同的长度并在压力下降中工作。我发现通过完整的Ashrae计算更有信息,但它是更多的工作。你可以学到这里:
http://www.mcgillairflow.com/assets/literature/ductSysDesign_guide.pdf
http://ftp.demec.ufpr.br/disciplinas/tm184/ventilacao_local_exaustora/duct_design.pdf.
Ashrae有一个应用程序,限制了通过表来找到丢失系数的需要,我认为这是10美元。
Jon, EL只是通过一个配件相对于一定长度的直管道的压降的比较。正如你的方程所显示的那样,这种关系并不会随着速度而改变太多。改变的是通过接头的压降。
65英尺* .105(在)/ 100英尺= .068”
62.56 * .066(英寸)/100英尺= .041"
在压力下更容易工作。使用原来的65英尺*.105(在)/ 100英尺= .068”
.068“(700 ^ 2/900 ^ 2)= .041”
我不能对以上的数学内容做出任何贡献,而是像往常一样有更多的问题。
到目前为止,我的理解是,配件等使用“标准”EL值是可以的。因为这些值都是在“正常”的空气所产生的高速度处理程序,使用这些数字唯一的缺点是,实际的摩擦率会低于计算表明,由于慢速度由低静压单位如富士通RLFCD我处理,这是一件好事。也可以通过增大管道来进一步减慢速度,因为这将进一步降低静压。风扇将不需要努力工作来推动空气。我的计算给了我一个管道大小3 1/2“在两个实例,所以我已经扩大到4“,因为我不知道在哪里得到3 1/2“管道。这没问题吧?
我拥有的另一个问题是“扔”。到目前为止我所学到的是,使用具有角度叶片的漫射器的漫射器收缩出口点导致较高的速度,因为空气离开管道,这使得通过房间吹出空气并更好地分布热量。不确定如何计算管道尺寸和扩散器大小之间的比率。我唯一的想法是简单地使用最大的扩散器启动,我可以获得该尺寸管道(例如,4“轮可以转到4”x 12“寄存器)。
这是一个好方法吗?
但我想知道“投掷”在讨论一个非常开放的平面图时。具体而言,我试图弄清楚我的18个室内机的管道布局,希望能够加热我的巨大的房间和泥潭。整个一楼非常开放,但大房间有一个非常高的天花板。在过渡的过渡时,我有一个拱门,我用风化的谷仓梁装饰。我的原始设计呼吁8“圆形管道加热伟大的房间,我的计划只是为了暴露它并称之为美丽。
在绘画中,您可以看到我在挂在挂18k单元(在摩尔塔的天花板上),并沿着一些Cubby风格的泥机柜的顶部隐藏管道(我是贸易的一名橱柜制造商)。我将通过将其暴露在天花板上,将其悬停在天花板上并从我暴露的装饰风化的梁上悬挂(由图纸上的虚线表示),并且只需粘在其末端的圆形蛋箱样式扩散器。但也许我不需要这个额外的7'的丑陋的管道,我只能在我的橱柜结束时粘在框架的漫射器(图中箭头的末端)?热量甚至是自然对流的热量吗?我会给泥架它自己的4“管道,所以我知道这会被加热。大多数想知道舒适的房间舒适。
也许我建议的管道运行实际上太短了,我应该沿着大厅的整个长度继续我的管道,并放置一系列的扩散器间隔大约8',就像附件中的照片?为了更好地分配热量…在这种情况下,我必须增大管道的尺寸,以降低静压…??
你必须小心暴露的导管。它只在阁楼风格的地方看起来正确,看起来不合适在你附上的照片中。
给你的大房间降温是最有可能的,在泥房旁边用一个长时间的投掷寄存器(高压下降)来降温,而让它舒适地加热则绝对不可能。
即使是最好的窗户也会产生冷空气,冷空气往往会落在地面上,你需要某种方法来混合这些空气,否则这个地方永远都不会舒服。如果你不得不一直穿拖鞋,那么设计一个节能的房子就没有意义了。
您的选择是在房间的所有区域获得足够的空气流量和混合,如果您的布局将意味着在房间的结束时将导管与一组漫射器一起延伸,您可以在冬季吹送以向下吹击水平在夏天。
另一种可能性是在窗户附近添加一些补充热量。无论是小面板加热器还是狭窄的电阻地板热位。这些不必是大量的BTU,足以混合空气流量一点并从窗口反转对流环。迷你分裂仍然可以做大部分加热。
总的来说,只需找到房间中心的墙壁安装座即可更简单,并使用厨房管道单元来加热泥瓦室。
如果您安装了阻尼器,请使用手动D Excel Speedeets或者仅适用于这些系统的恒定速度。围绕管道尺寸是可以去的方式。
你的热负荷看起来很高,你的设计温度是多少负荷是怎么计算的?它的结构是什么?你有36.5Kbtu的容量规格在5F,这对我看到的空间来说是很大的,特别是如果上面有一层楼(这些楼梯在图纸上吗?)
编辑:思考你的4“管道。您只能在400fpm下获得35cfm下降4英寸管道。这是18 rlfd的1.24kbtu / hr。
在您的分布问题上,您可以根据抛出、CFM和压降选择扩散器,然后选择与扩散器匹配的启动器。
关于地理分布:
https://www.priceindustries.com/content/uploads/assets/literature/engineering-guides/air-distribution-engineering-guide.pdf
选择扩散器的示例数据:
http://www.hartandcooley.com/files/assets/files/1363456373_c%20series.pdf.
基本原则是不要直接对着人吹气。扔窗户的重要性很大程度上取决于窗户的质量以及人们坐的位置。迷你分割减少了对良好分布的需求,因为大多数时间都在运行。
一些人说,登记扔和位置(只要它是在房间里)不再重要的低负荷的家。但我还没有看到好的数据支持这一说法。窗户还会造成不舒服的通风,分层仍会发生。
根据一些数字,我认为平衡通常会改变,并将导致过度的温度变化。因此,考虑分区——例如,恒温控制的阻尼器可以产生0-20%的流量减少(完全关闭会产生副作用)。
谢谢你们!
我使用CoolCalc.com做了我的手册J,这是一个免费的在线工具。您可以选择手动输入施工细节,房间大小,方向,设备数量,相邻的条件空间,方向等,但程序还可以从Zillow中提取信息。当然,我手动进入所有内容,除了程序自动提供的设计温度。我在神秘,CT,我认为5是我们的低温,但我可能会被误解。
我的房子是从1840年起 - 我没有在图纸上提供任何比例,但总平方英尺是2300.我想我做得非常好,绝缘和空气密封,但我不会在附近做任何地方所有与新房子。我认为这就是我的热负荷似乎很高的原因。
在尝试了几个当地的承包商,并支付了一个人500美元的负荷计算,这家伙原来是使用coolcalc (beta)和他的数字完全不可靠-更大,绝缘较差的大房间,有更多的窗户,有一个更低的btu负荷比厨房。我认为这是无稽之谈,所以我谷歌coolcalc,发现我可以自己做。我得到了不同的数字和更低的总负荷。
关于我的4“管道,我非常肯定我做了数学吧,但也许不是?我基于我的CFM在高风扇速度下由单位生产的CFM数量,并将其乘以总负载的百分比每个房间。换句话说,如果你将房间的所有CFM的CFM一起添加在一起,你可以获得加热这些房间的单位的总CFM。也许这是我出错的地方?对于其余的,我使用了这里提供的说明:https://www.greenbuildingadadadisor.com/question/horizoNtal-ducted-miniSplittocting.
我的导管O-Lator纸板滑动规则中还有一个配方,这相当于同样的事情。当我用它来尺寸时,我的管道告诉我泥机需要4“导管和大房间需要8”管道;似乎合适地给出了它们的相对尺寸,但随后,也许这两种管道都是尺寸的?所以我错过了我对公式的理解。
在我的客厅和厨房之间,我有一个12K的单元,它隐藏在壁橱里,垂直安装。有两个极短的管道,每一个都有一个90˚弯曲,向相反的方向吹气。我承认,我很想简单地根据负载百分比划分设备上的供应口,并使用结果大小制作两个矩形管道(一个是6x10,一个是6x16,或附近的某个地方)。该单位的供应端是6x25 /8")。超级坏主意?
我还计划购买在它们中有阻尼器的扩散器,以便可以打开和关闭它们。我已经看到了那些(我认为是一个品牌)这一点,但我认为这个系统可能最终与MiniSplit打架;也许他们实际上是个好主意?
是啊,管道的尺寸有点不对劲。假设从18RLFCD来560 CFM(我认为这是正确的),你的mudroom是那个单元的25%的负载,你将有大约140 CFM。每分钟400英尺,需要一个8英寸导管。
为了得到3.5英寸的管道效果,你必须有超过2的摩擦率(18RLFCD在任何过滤器/阻尼器/格栅扣除之前只能做到0.36)和超过2000 fpm的速度,所以有些地方出了问题。试着在这里输入数字,看看你会得到什么:
http://ductcalc.ca/
你可以通过摩擦率或速度来查看各种cfm的尺寸。
从概念上讲,像“Flair Smart Vents”这样的东西有很多话要说。基本上每个房间都有一个恒温器和自动调节的阻尼器,但足够智能,不会造成气流过低的问题。
随着非常短,简单的运行,小管道尺寸在压降方面是正确的。如果您up-尺寸减小速度,那么您必须限制其他地方的流量(例如,阻尼器或扩散器)。
再次检查你的设计温度,我看到新伦敦,CT 14F
http://ashrae-meteo.info/places.php?continent=North%20America
这个地方比猜测大小的猜测更大。我在想你所表现出的地板计划是1000-1500SF。您可以随时在手册J上发布帖子。
CoolCalc是可以的,但我发现偶尔有一些灾难性的虫子,大多数与渗透/通风有关。所以检查这些数字。
我觉得你的管道速度很高,即使静电能起作用。你认为除非你真的知道你在做什么,否则你会冒噪音的风险。在扩散器的阻尼器可以添加到这个噪声。
自动阻尼器是一个相当先进的选择,以获得正确的迷你分裂在这一点上。你的问题似乎更多的是关于获得足够的混合和分布,而不是区域控制。
关于负载calcs,如果您的整个管道系统位于空调空间内,您是否在coolcalc的HVAC系统页面中选择了“无管道”?我问是因为我最近开始使用coolcalc来计算一个管道迷你分裂系统的负载,它将完全位于条件空间内。当管道出现故障时,我就知道会有问题。我发信息表示支持,这就是他们的回应,
“该计划仍将在报告的最后一页上为您提供CFM细分。处理导管的正确方法在条件空间中100%的方法是不添加Ductwork。即使我们有一个位置选项“条件空间”结果将是中立的,因为所有的损失和收益都会在条件空间中结束。“
我仍然认为他们应该添加这个选项,因为在设计管道系统时,选择“无管道”并不直观。
我在GBA上看到的CoolCalc的另一个问题是它高估了载荷,特别是渗透负载可能被估量。我选择了“平均”,但我并不真正了解“平均”的定义。这是CoolCalc的其他问题之一 - 没有定义。我仍然试图弄清楚衡量“平板边缘”,因为它也没有定义。没有定义和/或指示,可以进行错误,因为它是垃圾,垃圾出来。
Jeffesonm,我希望您能够利用NJ温暖优势计划,在那里他们为每个高效导管的迷你分割单元(每个户外冷凝器)提供2000美元的折扣。检查您的单位是否有资格。我不确定多头管道单位足够有效,但我知道单头管道富士通。)。我认为你可以在事实之后申请,但不确定所有资格。通过搜索“NJ Mavadvantage”来查看。
在CT中,如果批准的承包商进行工作,回扣只是良好。Boooo。
马特,你读到的比例可能是正确的,因为2300包括楼上的面积。我会重新检查我的设计温度,我会说我们去年12月看到-7˚F,但14˚F在这些地方更正常。
我没有发现酷酷的HVAC部分,但也许我只是没有寻找一个。这是一个免费帐户,所以也许是这样的吗?我正在使用在这里的许多人提供的指示。我很高兴与您的监督重新检查这些东西!
好的,所以这是我的数学例子。18K单位有554 CFM(Levinson先生你是对的)。基于负载,我为泥厅获得141.75 CFM,412.24为巨大的房间。因为我听到了超大管道的好,所以我将这些数字增加了20%,分别给了我170和494.7。
对于mudroom,我需要一个从矩形到圆形的东西(一个“起飞”或“漏斗靴”或类似的东西)。杰斐逊给了这个项目10分。我需要一个90˚的弯头,手册D说这些值20'。我给自己另一个6英尺直管道(我想我会减少这个,因为我改变了单位的位置从墙壁到天花板)。不管怎样,我的EL值是36。
我使用的可用静压值为。31,以说明返回静压箱和外部过滤器以及供应扩散器的压降。哈特和库利列出了他们的12x4侧壁扩散滴.062"在175CFM。我选择这个尺寸,因为这是我在CFM数字上遇到的第一个尺寸。
我需要重新检查退货过滤器,因为我不得不购买他们存储的内容,这是:https://elelectricaircleaners.com/255649-102.aspx.
Trion Air Bear的规格不会列出低于600 CFM的压力下降:http://docs.electricaircleaners.com/trion_airbear_specification.pdf.
但他们列出的最小值是.o5在600cfm。
.36是单元的ASP, sooo....
.36-.065 - .05 = .248。
.248÷36 x 100 =。69,这是摩擦率。所以当我使用我的科尔曼A型管道时,我得到的管道尺寸是4 /4"。所以真的,我应该把我的导管放大到5英寸。
我做对了吗?
我计划扩大我的回程静压箱的大小,这样过滤器基本上是唯一的损失在回程端。也许这是不可能的?
只用压力,我得到的数字和你一样。但你也应该计算速度(影响噪音),这将导致你走得更大。比如6英寸和11英寸。
>我使用的可用静压值是。31
走低(说<.2)将保持更安静,节省能源并提供更多的错误边距。
NJ似乎说同样的事情在网站上,但我打电话给处理回扣的人,他们说,他们会接受一个自我安装。时间会告诉我,当我尝试......但我建议你给他们打个电话,看看他们是否会在CT上破例,尤其是因为你做的计算比大多数专业人士都多!!不能伤害。
你好乔恩!
正如你可以看到的那样,我刚刚编辑了我的回复......
无论如何,我正在考虑重新设计泥机/大型房间管道,因为我将单位放在天花板上而不是墙上。实际上存在一个粉末室在拐角处(图上未示出),其可以具有降低的天花板来隐藏单元(当然有一个接入面板)。我降低了粉末室的墙壁,让空气与空间的其余部分自由流通。可能是通过我的整个房子分发臭味的好方法!供应管道可以沿着泥瓦机构的顶部隐藏,它只直接。
我可以轻松地以任何尺寸制作矩形管道。我拿到了一些Kingspan Koolduct板,它是酚醛绝缘板面向两侧的箔片,他们说摩擦与金属管道相同,R值为10.我可以将其切断在我的桌子上并粘贴它并粘贴它所以它强大而且紧张。在这个树干的某个地方,我可以切割一个洞加热泥潭,然后行李箱的末端可以终止橱柜里的地方,指着我很棒的房间。
但是,也许泥室应该有自己的5英寸圆形管道,最初设计,我应该隐藏一个8英寸的圆形管道在我的橱柜顶部?这个管道应该继续为整个房间的整个长度吗?没有好处隐藏它,在房间里尽可能低的地方仍然是7'。我宁愿不必看一个管道,而是当然我们确实需要热量和东西。我想知道螺旋铜成本的30英尺......否则我想我会只是把它画成黑色和挂在它上的圣诞灯......
最好是用11英寸的管道到房间的另一端。如果能将暖空气导向从窗户倾泻而下的冷空气,那就更好了。这些事情到底有多重要还不清楚。
计划使用Dehumidifier进行夏季AC。CFM / TON在少于满载的任何内容。
唯一悲哀的是,我拿到了导管装置,这样我就不用看了……我得想个有创意的办法把这根大管子藏起来。
大房间尽头的底部后面有个壁橱,我可以把房间藏在里面。我原本打算在这个底面上安装一个墙单元-我可以把这个单元放高吗?9”。好消息是,它会直接吹进大房间,大概有1英寸的直管道。这是目前最好的解决方案。
否则,也许我可以像正常人一样隐藏地下室中的管道?虽然不是板块,但地下室是绝缘的。
如果设计出足够的投掷(20+'?),虚线红线上的一个或两个大房间寄存器可能会很好。也许可以结合穿过地下室的小管道,从窗户下面得到一点供应。
有趣的是看到一些关于位置和投掷的一些数据。一个数据点 - 它在外面只有30f,我的地板是3f靠近6'双窗帘窗户。
那个房间里有什么窗户?什么尺寸和绝缘方式?
你在哪里想象坐在哪里?
我不是一个专家扔/分发,但我认为这应该是在拱门中的扩散器中的。
我附上了一个非常艰难的海拔,显示基本布局。希望它有点清晰。
加热器的两个可能位置在图上表示,但我也可以将其放在地下室。听起来像是隐藏在楼上的楼上的坐垫后面是我最好的赌注,因为管道在这个位置几乎是不存在的,而且该装置将在房子的条件包围。它看起来像我的天花板/泥机定位可能无法正常工作,尽管我可以延长管道并曝光它。此选项将包括更长的导管运行,但会降低扩散器的高度约18“。
窗户是单个窗格,具有三轨道风暴。我打算添加奴隶,但我还没有。窗户已经被精心恢复,并且是荒芜的。两个玻璃门是双层玻璃(我制作它们)。一对古董单独釉面的法式门在房子南端开放到一个未加热的玻璃保护室,这些都是紧紧的挡风玻璃。当然,我确实包括所有这一切当然。
在房间的尽头有一个阁楼,这是原来的楼层高度的半层楼上。这间阁楼是对其他空间开放的。阁楼下面的区域是对房间的其他部分开放的,但我不在乎它是否变冷,因为它是一个过渡区域。我可以加一扇门,但我觉得还是开着的好。有一个大砖石壁炉和蜂箱烤箱(!)分隔这个区域。我打算在天气很冷的时候使用壁炉。
使用单个窗格窗口,我将在房间的远端定位寄存器,气流定向,以解决流向地板的所有冷空气。
用一个专用的热泵来给大房间供暖会更容易,同时把储藏室的负荷和厨房的负荷结合起来。
看起来外面很冷的时候,会有大量的冷空气从玻璃上冲下来。如果你保留所有的座位,有几个离墙,事情应该是舒适的。坐在窗下可能会很冷。
一对类似于12x6的收银机,放在下面或壁橱里,靠墙放置,应该会很好用。这只是一个稍微有根据的猜测。
http://www.hartandcooley.com/files/assets/files/1494876831_92-engineering-data -page79-85-com-cat-grd.pdf.
如果你没做过负荷计算,我觉得你需要再做一遍。如果你最终减少了你的单位的大小,这可能是一个应用,在中间静态1吨单位是有意义的额外CFM鼓励混合。
谢谢你看看这个东西!!!
我已经购买了18k个单位,所以我担心我困住了它......
如果我把装置放在衣柜/拱门中,你认为我应该将漫射器指向下来并在拱门下定位它们,或者将它们面对南面面对的位置,以便他们吹入房间?我想我可以有一些向下指向的扩散器,看起来像外部烘干机的东西 - 这是你的意思吗?
也许把这个单元放在大房间下面的地下室更有意义?我可以在东墙上和西墙上都有一个管道,在对面墙上的窗户下面有一个开口。我将不得不找到一个创造性的地方,以定位回报,但我理解它应该远离供应,并尽可能高。也许这种分配的解决方案可以抵消将单元放在无条件地下室的负面影响?地下室的墙壁是绝缘的R21以上等级和R10以下与粉红色硬泡沫板密封边缘与伟大的材料。当然,我也可以对装置进行绝缘。
你会希望他们吹进房间。通常情况下,如果空气能够撞击对面的墙并向下移动,这种情况就不会发生在这里。使用可调节鳍片寄存器。我觉得你应该调整一下定位鳍,让它指向下方一点。比如瞄准壁炉上的6英尺标志点。你可以把它们往下一点,但你不会想真的感觉到暖风吹在你身上。
好的这个布局怎么样?不幸的是,泥瓦的管道将不得不做出掉头,但如果泥机场有点寒冷,那就没关系。我应该补充一点,它建在一个装备辐射的板坯上,但我不会加热地板,直到我买得起桑德空气源热水器。
选择2显示一个管道安装水平跨越的面,而不是两个扩散器在接近。我不确定如何保持空气流动,甚至在两个扩散器之间,但它肯定会更好地分配空气。
我不明白你为什么要把自己的生活弄得这么复杂,只为了得到一些基本可行的东西。老房子,老窗户,你必须小心登记的位置。即使是在有三层玻璃窗户的新房子里,窗户区域也会变冷,因为窗户附近没有热量/空气流动。
如果你有一个地下室,最简单的方法是在每个窗户下都有一个楼层记录。
最干净的是让树干沿着一面墙走,让饲料沿着地板搁栅走。喜欢的东西:
https://unskinnyboppy.com/wp-content/uploads/2017/07/basement-remodel-with-painted-blue_3.jpg.
如果您不想在地下室看到管道,也可以在边缘[]和墙壁上的墙壁上运行,或将其转换为存储。
阿尔卑斯山脉,
在一间地下室有管道的老房子里我该在哪里放一个有足够大的merv13来减少压降的回程箱呢?地板回收站应该是垃圾收集器,贝利斯建议不要把过滤器放在空气处理器。
>找到回报,但我理解它应该远离供应,尽可能高。
把它放在地板附近(最好的效率,因为那里更冷)和供电不正确的地方。除此之外,返回位置在同一房间并不重要。人们想象“短路”和“帮助分配”,但这基本上不会发生。
让空气沿着冷窗户流动比沿着天花板流动要好。
这个怎么样?蓝线将是回报。我可以在冰箱外壳/墙壁上放置回程格栅,也许是腰部高度?高于狗和幼儿。如果它是正确的,地板尘埃兔子会倒入它并迅速堵塞我的过滤器。
嗨,大家好,很抱歉再次讨论这个话题,但是我很难找到杰弗森拥有的那些令人惊讶的灰色金属系列320方形。有人有什么想法吗?似乎没有人在网上卖给房主,DASCO告诉我,他们不发货到纽约/新泽西/CT地区以外(我在科罗拉多州)。
对不起,我帮不上忙。只是给你点刺激,然后继续讨论。
有没有一种不先回答就能继续对话的方法?
更新:它看起来像ABL批发商可能能够为我找到这些(我能通过电子邮件到达他们)。SOFIANE,您可以在原始帖子下单击“保存到收藏夹”,但我不确定是否与以下内容成功。