MiniSplit Wall Mount VS. Slim管道
我几乎已经决定在我的楼上2个苗条的管道单元(保持主套房和东/西房间分开),所以我在那里很好。两者都安装在壁橱,只有一个有一个管道在阁楼。
我的问题在楼下。我可以安装一个壁挂式15K单元,将吹过2间客房,最热增益/损失。将浴室留在房子的另一端和餐厅没有足够的冷却/加热.....但是没有安装墙壁的好地方。
我的想法是,我要么运行一个管道,从那个地区,让它吸或吹的空气通过一个小管道风扇到房子的另一边的墙单位....循环。这将有助于分配颗粒炉在冬天的热量....因为那两个房间在冬天都很冷。
这是一个坏的主意运行一个单一的管道通过房子的空气分配和使用一个墙头?或者我应该在一楼安装另一个苗条的管道单元,然后把它吸上来....失去了地下室管道的净空,花时间运行额外的管道。
正如每个人在这里说的,富士通苗条的管道出来比三菱的P系列更便宜,并使用MXZ-C冷凝器。所以我决定用富士通的。富士通的1:1冷凝器很小,所以我可以有3个户外与2个三菱MXZ-C较小的单位生存。
我发现三菱钻石制造,更大的三菱MXZ-C单位与分支盒有一个很大的温度降,当你把他们降到63华氏湿灯泡,75华氏干灯泡…富士通的没有…令我惊讶。
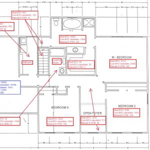
编辑:下面增加了一楼平面图。红盒子是墙头。橙色的盒子是一个管道,用来把空气穿过房子。客厅(现在是办公室/备用卧室)我打算在上面的壁橱/卧室上装一条管道。餐厅有两个通往走廊/厨房区域的开口,球团炉的热量没有问题(靠近墙头位置)。二楼平面图显示了2个细长的管道单元和管道的一般图像。



回复
段落中断使其更可读。
如果没有详细的房间手册j数字,很难说这些方法是否有效。单个区域的负荷不太可能大到足以合理地使用AOU/ARU9RLFCD微型管道来管理如图所示的两个楼上区域的负荷。也许带有两个ARU7RLFs的多重分裂可以工作……(或没有)。
逐个房间运行Manual J(或请工程师或RESNET评级人员,而不是HVAC承包商为您运行),在图纸中列出每个房间的加热/冷却数字,并指定1%和99%的外部设计温度。
丹娜,
你对段落中断的看法是对的。我添加了他们。
感谢您的回复和修改段落。这是一楼和二楼的手册J。
背景知识,我是一名机械工程师,正在研究暖通空调……目前更多的是和家人朋友一起玩,但我们会看到它的走向……虽然我设计过商业/工业的液体冷却系统。我的办公桌上有手册J, S和D,我拿到了EPA许可证,已经完成了一个小型的分离安装(拥有所有的设备)。我承认我在学习,因为我只做了2个手动J calcs到目前为止,为两个不同的房子(一个是我的)。但是已经阅读了j手册的大部分,每天学习一些东西,非常感谢帮助和指示!!:)
你就不能在图纸上乱写装货数字而不是让我们干活吗?;-)
我在Manual-J总结中没有看到1%和99%的外部设计临时工。
卧室的供暖负荷似乎很高,这让我想知道渗透+通风的假设是什么。
这是楼面荷载的好主意。我今晚不用手机的时候会想办法的。
室内db 70
室内设计冷却DB 75
室内冷却RH 50%
户外冬季99%DB 2
室外夏季1%dB。87.
谷物差异24.
HTD 68
供12
每日范围媒体
ACF 0.993
我知道我应该鼓风机门测试。但我在工作中有这么多项目,我会再次又一次。今年春天需要交流。由于大型和旧的垃圾泄漏窗口和大教堂天花板上的灯具,灯具灯具均配有空气渗透。强风将在一个区域吹门。必须尽可能地遵守,并继续使这个地方更有效率。我喜欢fusjitsu苗条管道,然后在7k,9k,12k和18k拒绝3k ...有帮助设计我的情况。
>“由于又大又旧的破漏窗户和罐头灯(尤其是在教堂天花板上),空气渗透设置为平均水平。强风会吹到某个地区的门。”
这是值得修复的,独立于暖通空调尺寸问题。
单个AOU/ARU18RLFCD输出19,700 BTU/hr到外面的70F房间@ +5F,外面@ -5F输出18,400 BTU/hr。你计算的整个二楼@ +2F的负荷是19,262 BTU/hr。
鉴于您的数字可能高于现实,并且在修复明显的空气泄漏后将高于加热负荷,我称之为在加热端上的相当不错,尽管在漏水计算的数量下有零余量。
对于舒适和效率而言,尺寸尺寸会更好,而不是与一对9个9个。单个9 rlfcd删除了14,000 btu / hr @ -5f,15,400 btu / hr @ + 5f,您即使在夸大的“空中密封升级之前”的夸张)也是超过1.5倍的超大尺寸。
单个18RLFCD在冷却端有备用容量。
一对7RLF是名义上的16,200 BTU / HR,但仅使用多分流压缩机(以较低的效率)。这可能会覆盖“空气密封后”负载刚刚精细(使用“使用”紧密的“假设运行手册-J),并且在7K冷却时仍占据了计算的冷却负荷的98%。
https://www.fujitsu-general.com/us/resources/pdf/support/downloads/submittal-sheets/ARU7RLF.pdf
如果其中一个区域可以真正使用9rlf盒式磁带,它不会改变使用的多拆分,但可能会影响安装它需要多少空间。
戴娜,你知道18RLFCD是否有排水盘加热器可用吗?我一直在看,似乎很奇怪,它到-5F,没有一个可选的排水锅加热器....除非我遗漏了什么。
同时,感谢您说明宽度…规格表是错误的,在图表上显示了较小的部件的尺寸。幸运的是,你对尺寸的说明让我翻出了设计手册,并在那里看到了正确的匹配昏暗....迫使我在另一个地方安装…提前知道很好。
RLFCD系列没有控制器或预先计划的位置/通道,以支撑漏极平移加热器。可以使用热带或平移加热器从另一个类似尺寸的迷你分配和手动控制它(将其插入漏油时插入冰塞),或设计你自己的控件。
rls3也不附带平底锅加热器,但我相信平底锅加热器可以安装后作为一个可选配件。而RLFCDs则不是这样
好吧,我刚有一段时间将所有数字放在平底飞机上。我也减少了窗户加载......你是对的,他们很高,我正在保守我的旧窗户。屏幕大多是破碎的,所以没有他们在那里,没有绘制的阴影.....屏幕上的屏幕和阴影在现在的校准中绘制:)
所以我想知道的一件事是,我是否应该在房子西侧的主卧室和/或浴室里安装一个劈开的墙头……夏天/冬天这些房间非常热/冷。主浴室的天花板像教堂一样,这一点也不重要。如果能把这两个房间和其他房间分开就太好了....为了舒适和孩子们的吵闹。
然后也许在前两间卧室安装一个小的管道处理程序,也许也用它覆盖办公室/卧室?似乎这3个房间的负载对于一个多分裂的6k墙头来说太小了,对吗?
想法吗?
请务必提供不产生过度压力的返回路径。
一开始我很纠结。我设法把2个苗条的管道设计成壁橱,所以只有一个真正棘手的卧室。希望那里有个大的导管?还是说这对那些小管道来说是个坏主意。
楼上也有一个浴室,需要通过走廊返回或增加跳线管道……但我不太担心那个,因为那个浴室的外墙很小,不会太热。
xxRLF导管盒可以垂直安装,如果你把卧室2号的壁橱的末端作为“杂物间”,回风静压箱可以有面向门厅的大格栅作为公共回风,用隔墙跳管作为房间回风。它将需要至少32英寸的壁橱深度,以容纳在任何方向的壁橱中甚至7RLF, 40英寸以上,以容纳18RLF。
一个18RLFCD垂直安装在洗衣房的角落,使用低于天花板的3英寸×宽的硬管道,可以覆盖整个房间,它必须穿过卧室2和卧室3。
这是一个垂直安装的18RLFCD,安装在加州伯克利一个约8平方英尺的微型壁橱中,使用大格栅共同回风方法加热和冷却整个房子:
https://uploads.disquscdn.com/images/2ffa6e108a7ded9f51130ff14126239b275b1244b7d53138beb63b4182d68f13.jpg
https://uploads.disquscdn.com/images/7843213f27734395e6ede8ea696552a8eafd3a2dd7f62c2b61241bb23189a293.jpg
请注意,他们使用Flex(不推荐用于转弯)并建立一个拱门,以适应大厅的运行。
这是值得翻入John Semmehack的Phius Slide演示文稿,用于富士通RLFC Cassettes周边设计:
http://www.phius.org/NAPHC2018/Think%20Little%20Slide%20Deck%20-%20NAPHC%202018.pdf
下载和存档睡前阅读设计和技术手册:
ARU9-18RLF-AOU9-18RLFC2015061.pdf https://hvacdirect.com/hvac/pdf/ (DT)
感谢所有的信息!
我刚看了卧室2的衣柜,深度太短了。我必须把这个装置垂直地放在后墙上,并在它下面创建一个大的增压箱,使门厅墙上的格栅垂直于这个装置。可行但不理想。
刚刚测量和18RLFCD,它看起来像我将阻止烘干机出来,除非我把洗衣机出了房间,首先慢跑它:(但是,我可以安装18RLFCD水平在主壁橱的天花板上……这不会真正阻碍太空……再一次让走廊的集中回程过滤器变得很麻烦,但我可以让它发生。这似乎是最轻微的罪恶。
你觉得我用一个18RLFCD有足够的气流吗?
你在1楼想什么?......似乎18 rlfcd不会完全削减它。让我想知道我是否不应该打折三菱多人。一个楼下24个楼下和18楼的楼上可以工作。在42K高热单元(如此真的〜34K BTU)上,我将0.81临时才用52%RH(如此真的〜34K BTU)......尽可能低,你可以在75F的DB W / O中指示进入线圈TEMP太低。价格肯定比富士通多得多。
另一种选择是楼上的PEAD 18和楼下的MLZ 18和FH06。除非你使用24k或30k的高温多冷凝器,否则降额真的会让你死得很惨:(
对于一些有趣的分析,回顾富士通的管道空气处理在潜在消除方面。不知道它是否有自动风扇速度控制,在任何情况下,它有小范围列出(554至442 CFM)。除非它能降得更低,否则它离单一速度系统并不远。因此,如果室外机调制到低输出,则没有湿度去除(1750+ CFM/ton)。
在任何情况下,计划单独除湿(只有一些大金空调除湿时,合理负荷为零)。
所以我看了操作手册。对于风扇速度,我看到的是自动,然后4个速度设置。你的意思是风扇从来没有完全关闭过?
我更习惯三菱控制器。
我刚刚比较了三菱Pead和SVZ CFM评级,你是对的,比富士通的较大范围,即使只有3速。
好的,它有一个自动风扇设置。但我认为没有迹象表明它可以在低压缩机输出下调制气流到生产合理的SHR的水平。即,使用具有1.25:1风扇的6.7:1的压缩机时,存在基本问题。
为了加热,越来越需要的气流是有益的 - 它保持适当的投掷和混合。