我应该把它放在哪里?
大家好!从下个月开始,我正在为我的新家庭建造一个新家。该住宅将占地2000平方公里。英尺,与2×6墙包裹1“陶氏板在外部与R-19电池绝缘。此外,整个房子将被硅胶,伟大的材料和胶带密封。阁楼将使用R-50-60吹入玻璃纤维,房子将建在混凝土板基础上。
我今天的问题是:我应该把我的迷你头放在哪里,我应该有多少个,我的单位应该有多大?非常感谢大家!
GBA细节图书馆
由气候和房屋部分组织的一千种建筑细节的集合
搜索和下载施工细节


你真的想删除名单吗,?
这不会删除你保存的文章,只会删除列表。
在beta站点预览期间,此功能已被暂时禁用。
回复
狄龙,
你没有告诉我们你的气候区或地理位置。
如果您想要设计一个加热或冷却系统,第一步是执行Manual J负载计算。
有关更多信息,请参见:
手动J和手动D节能
如何进行热损失计算-第一部分
如何进行热损失计算-第二部分
计算冷负荷
谁可以执行我的负载计算?
在不知道1%和99%的外部设计温度和逐个房间的负荷计算的情况下,这必须是非常具体的建议。所有的加热/冷却解决方案都是从负荷计算开始的,错误地指定迷你分块将会带来效率和舒适度的问题,以及前期成本。
你能在房子建造之前考虑这个问题是件好事,但如果许可已经被取消,这可能会影响到优化暖通空调的容易程度。例如:
如果屋顶可以用充气桁架设计标准上限方面你可以用一个无管头在大房间(我猜cathedralized上限?),和一个导管mini-split提供所有其他房间,或可能只是一个导管mini-split和无管wall-coils。这取决于数值的下落,以及99%的外部设计温度。
//m.etiketa4.com/blogs/dept/building-science/use-plenum-trusses-keep-ducts-out-your-attic
狄龙,
如果你愿意接受建议,我认为你应该把车库门移到洗衣房,要么移到10英尺墙的右侧,要么移到8英尺墙的后面,看哪个对你最合适。把它放在洗衣房意味着在车库和你的生活区之间增加了一堵墙/屏障,这对空气质量有很大的改善。此外,它还可以在你宽敞的房间里腾出更多的墙壁空间,在没有门干扰的情况下放置厨房/餐桌和椅子。
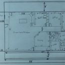
我知道这和你最初的问题无关,但我把你的计划放到了我的软件里,并制作了附件。它有2x6的外墙,我测量了你的外部尺寸为86'x32',因此必须对内墙做一些调整,所以它不完全像你画的那样。我试着让房间保持你想要的大小,但它不工作。我认为,如果你从车库走一英尺,从大房间走一英尺,你就能得到一个更好的生活和卧室耳朵,更多的是你想要的。
这些墙真的开始堆积起来,影响了室内测量。这纯粹是我对25年软件的一个爱好。刻度为1/8 ' = 1',可以打印在法律纸上。显然它需要窗口等,但希望这能有所帮助。我假设你们没有人按比例画这个,所以这可能有助于更多的测量。
这是附件
史蒂夫,你画得太棒了!我绝对会考虑你关于我的入口位置的建议!我在肯塔基州东南部的4A区。你们太棒了!还有人能推荐ERV系统吗?
谢谢你的家伙。
狄龙
调整是相对容易做的,增加一个屋顶,窗户,移动一些墙壁,等等。如果你愿意,我愿意花一点时间为你微调。只是给它一些想法,需要改变,并让我知道如果你感兴趣。就像我说的,这只是个爱好,所以我不是专家,而且我也不知道你需要应对什么样的建筑法规或其他地方法规。想想看,无论我创造了什么概念,在你能够构建它之前,都需要经过专家的审查。
松下的Intellibalance将是完美的