华盛顿州亚基马- 5B气候区净零建设
你好呀,
在过去的几年里,我一直是这个网站的忠实读者,但我并没有看到一篇文章,它解决了我在华盛顿州亚基马(5B气候区)试图设计和建造一个净零住宅时遇到的几个问题。
我确实理解,净零可以在任何具有足够大的太阳能阵列的房子内实现,但我希望根据我的设计选择,建立材料决策和施工技术尽可能多地使用尽可能少的能量。艰难的部分似乎在当前市场条件下找到了成本效益的线条。我绝不是一个富人,只能在十年左右内实现的投资回报率。
这是我们的结构看起来像是什么样的节能视角:
- 物业是南方山坡坡,没有障碍物,非常适合被动太阳能收益。
- 该结构是一个单层1000平方英尺的公寓,配有开放式平面图(两间卧室,单浴,洗衣,厨房和大房间)。
- 条件空间是26英尺的26英尺矩形。
-所有外墙的连续保温(目前安装在2 × 6的外墙上,外墙填充玻璃纤维棉和CI硬质泡沫,可能是2″的XPS)。
- 混凝土地板各处,通过A辐射加热Daikin Altherma系统,其中还包括一个用于夏季制冷的空气处理装置(当然是带有空调空间的管道)。
- 条件空间的气密性将达到1.5疼痛或更好。
-空气质量和循环将通过HRV进行监测。
-中庭的三窗格乙烯基窗户采用Low-e玻璃,除两扇外,其余均为固定窗。
- 大部分窗户都是南方面对的,在外部上有一个凉棚开销,在夏天提供必要的阴影,以避免过度过热构建信封。
- 天花板高10英尺,门都是8英尺高的。我知道这不是节能,但它是我妻子的必要妥协,因为我的所有能效要求lol ...加上它让公寓感到宽敞。
- 外门是单纤维门,但它们高8英尺,36英寸宽。
现在问题来了:
1)给定该构建信封的天花板,墙壁和板块中R值的甜点是什么?特别是在板坯,杆壁和外墙中需要多少刚性泡沫。WA状态的代码是在天花板中的R-49,墙壁R-21和板坯和阀杆的R-10。我已阅读R10 / R20 / R40 / R60规则在这里,但这似乎可能是我上面所指出的所有其他因素。
2)在我的搜索中,我在R-40墙上发现了一个很好的演示,比较不同的建筑策略和方法(链接在这里)。幻灯片31在指示对钱有效的事情方面做得很好。基于其结果,2×6墙与外部XPS CI,从1-3英寸的任何地方都具有相当效益。它只用2×8或双螺柱墙与外部XPS CI击败。在我读的一切中,护套和泡沫之间需要雨间隙,这会影响外部XPS CI的绝缘质量有多大?
3) Given the exterior door height of 8ft I am considering a multi-point locking system, this upgrade is expensive from Therma Tru which is the door manufacturer we are looking at and it also limits lock/handle selection to Therma Tru’s options according to their literature. Is this kind of upgrade going to be worth it?
对于这些问题的任何指导意见都将不胜感激。我觉得我想得太多了!




答案
为了让5B气候区达到净零能源,你需要拍摄至少R30“整面墙”,这将是2x6/绒毛+ 3“外部泡沫,而不是2”。它不需要是R40,尽管这大概是中心腔R. Polyiso将比XPS更加环保,因为使用的发酵剂对环境的影响有巨大的差异。
使用3“或3.5”回收的屋顶polyiso是正确的,或2“回收的货物与1“箔面原始库存,以方便空气密封。
看一下这份文件的表2 . p.10,记住那些是“整体装配- r”,所有的热桥接从框架因素:
https://buildingscience.com/sites/default/files/migrate/pdf/ba-1005_high%20r-value_walls_case_study.pdf.
那份文件是在2009年完成的,当时典型的优质屋顶光伏发电效率是15%(而不是现在的20%),优质热泵的HSPF约为10,而现在是12。在这两个因素中,如果你注意细节,你可能会在表格中的数字中作弊10%。
约书亚说:
我为在这里引入噪音而道歉,但如果您不介意发布,我会非常兴趣看到您的平面图?
我理解高高的天花板,但是8'高大的门?为什么?大上涨。
我同意DANA关于球场的建议进行绝缘。
我的两扇外门锁上了多点锁,空气密封效果明显好于没有锁的那扇。让它们正常工作也更容易,不会太松或太硬。多点的优势将更多地在一个8'门。也就是说,没有多点锁的体面的门周围的空气泄漏不会大到阻止你达到气密性的目标。
我选择了Thema-Tru的Jeld-Wen门,因为在门和Therma-Tru中使用低全球变暖 - 潜力泡沫的Jeld-Wen不会说他们使用的东西。
Intus门比Thermatru AR类似的价格更好。它们有一个标准的三点锁。
谢谢您到目前为止的反馈意见。
丹娜,谢谢你的链接。在第10页的图表中,我看到他们建议阁楼r值为R65。你对这个数字有什么看法?与我交谈过的当地专家告诉我,由于在我的规划设计中,阁楼的围护结构比一般的建筑围护结构要紧得多,因此对阁楼隔热比例的要求并不像一般家庭通常建议的那样必要。他们甚至说阁楼和墙壁上相同的r值就足够了。想听听其他的想法吗?
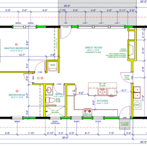
Drew,我附上了平面图的截图。鼓励反馈,许可证尚未提交:)
斯蒂芬,我知道8英尺高的门要贵得多,而且需要有更长的交货时间的特殊订单。我的妻子很喜欢这些东西,我不得不做出一两个妥协,因为这些东西在财政或能源效率上都没有意义。根据我的其他选择,8英尺的门是一个很好的妥协。我觉得6英尺8英寸的身高和10英尺的上限有点不合适。
查理,谢谢你的输入,它将有助于我做出决定。
史蒂夫,我正在研究托管门和报价进行比较。他们的窗户是如何定价的?
约书亚说:
如果你选择一个更简单的暖通空调系统,你会节省很多钱。你可以用一个没有管道的微裂缝来加热和冷却这个房子(特别是在你计划的优秀的热外壳的情况下)。这将比大金阿尔瑟玛(Daikin Altherma)配备水下液压油管少花费数千美元。
关于R65阁楼性能。如果是在阁楼地板上用开放的吹纤维素做的,你会惊讶于代码min R49 (R38整体组装)阁楼与R65(整体组装)阁楼之间的成本差异是多么的小。正如我指出最初,efficinncy PV和HSPF 12 ~ 20% +热泵你可能撞跌了10%(甚至向下移动整个线区4号雅吉瓦人一样阳光明媚的地方),仍然达到零如果你注意所有的细节。每平方英尺大约3美分每R,一旦你超过桁架弦或托梁深度,另一个R20每平方英尺60美分,或你的整个阁楼大约600美元。尽管性能的提高很小,但这仍然比使用更厚的墙壁或更高性能的窗口获得同样的性能要便宜。
在您的地板规划中,它并不表示每个墙壁面向的方向。限制面向窗户的(或完全消除)西部窗户的大小是明智的,因为在室外温度较高的那一天注入太阳能增益,屋顶甲板仍然非常接近它的峰值温度,因此为您的峰值增添了大量的分数峰值冷却载荷。
如果你真的用水楼层,那么在板块下安装至少4英寸的EPS。如果没有,2“会很好。
如果你建造一个〜1000平方英尺的矩形房屋净零水平,你的热负荷在yakima的+ 11f外部设计温度下将达到10,000 btu / hr,而辐射车间比房间温暖率小于5f,甚至比房间温暖。在设计条件下。虽然这是在设计日的漂亮柔软的时,但在你的平均冬季温度下,温暖的地板几乎不会被注意到。您可能会用1吨富士通--12 rlfcd(或最坏的情况,18 rlfcd)热和冷却整个Shebang,虽然这可能是exreme透支)迷你迷你分裂约1/4只是一个辐射的成本用altherma加热地板。如果将窗户的大小限制在门外卧室,您可以在长途室内使用1吨或3/4吨墙壁型迷你分割(或地板),因为马丁建议,在大约1/5(或更少)Altherma解决方案的成本。
http://www.fujitsu-general.com/us/resources/pdf/support/downloads/submittal-sheets/12rlfcd.pdf.
http://portal.fujitsugeneral.com/files/catalog/files/9RLFCD.pdf
http://www.centralmaineheatpumps.com/sites/default/files/ec_pro/centralmaineheatpumps/msz-fh09na_muz-fh09na_submittal.pdf.
https://www.master.ca/documents/regroupements/1fujitsu_submittal_asu9rls3h.pdf
印度门窗。UPVC窗户的定价相当不错。Windows是非常好的,非常健壮的硬件。门也很漂亮和坚固。我们为每扇7英尺x38英寸的全玻璃门支付了2800美元。我肯定会再买的,但我们有一个很好的当地经销商,在波特兰的性能大厦。如果没有本地买家,我会感到不安。虽然我们没有遇到任何问题,但如果有任何事情发生,有人可以帮助我们,这是令人欣慰的。另外,他们还派了两个人去教我们的GC如何在我们的双柱墙中间安装窗户。
顺便说一下:如果暖气负荷太低,壁炉几乎就不能用了——你只能自己做饭了。如果你想要一个木头炉,一个有一些固有热质量的小木头炉(如陶瓷或皂石炉)将是一个更好的选择。《炉石传说》中的Bari或Tribute模式也可以。有别人。
达娜,
你对阁楼绝缘的推理对我来说是有道理的,似乎是一个简单/廉价的升级。我从我的GC那里得到了一些推回,因为该地区的最佳绝缘子没有纤维素。因为这个原因,我的GC在他最近的任何房屋中没有完成纤维素。我仍然基于从特征和ROI角度研究的内容来倾斜阁楼和墙壁中的吹纤维素。
所有窗户都朝北的墙是为了在夏季获得被动式太阳能。这使得韦斯特在我上面附上的图像的右侧。那里没有窗户,只有一个车库。
如果我们的Altherma出价确实出现4倍,我们可能会考虑降级的直接矿化系统。我们与在我们讨论期间谈过的船舶谈话,但我认为我应该检查成本差异。我们喜欢混凝土楼层的外表,耐用性和太阳能弥撒,但我担心当地面冻结时,他们可能会在冬天变得多大。我们目前计划在板块和阀杆周围放入2英寸的XPS。
我会调查你提到的木炉选项。我们选择的单位是焦点250.供暖能力为800 - 1500平方英尺。我敢肯定这些数字不是为一个净零建设包膜过程。
斯蒂芬,
最接近的经销商看起来是Tumpwater,这是几个小时的距离。不确定我是否认为是本地的,但我会得到一个报价并与代表交谈。谢谢!
3“子板II型EPS(R12.6)将成本相同或少于2”XPS,并且将永远优于它。只有2英寸的XPS(R10)即使是新的,也将是换热板的边缘,并且由于它的氢氟碳溢出超过几十年(具有强大的温室气体冲击),它在完全耗尽时渐近地渐近至R8.4作为类似密度的ep。
如果你用极简主义的~R16(2”+ 2”EPS)绝缘混凝土形式(ICF)浇筑茎壁,这比事后保温更快。然后,你将平板漂浮起来,使用顶部壁的内部EPS来处理平板的膨胀/收缩,壁泡沫与次平板泡沫连续。将基础梁/螺柱墙板置于螺柱墙外部泡沫对准的位置。,或稍微自豪的外部ICF泡沫提供了一个连续的热断裂窗台板和外部。
在板下的EPDM窗台垫片将提供一个很好的毛细管断裂之间的壁和易受影响的木材。如果你在白蚁区,你可能必须使用铜闪光将ICF泡沫从木材中分离出来,这将重新创造热桥,但即使这样,它也不会像立柱板暴露在外部的混凝土上那样严重。
板边缘之间的R8和干墙或地面,和其他R8的暴露表面问题干墙你将没有安慰一个常温板即使外面-15 f(它甚至变得冷雅吉瓦人在过去的一个世纪吗?)
如果你在阁楼上用的是R60-65吹制玻璃纤维而不是纤维素那也不是什么灾难。使用像AttiCat这样的块状高密度产品,可以克服25年前低密度玻璃纤维的大部分缺陷。从那以后,大多数供应商的产品都得到了很大的改进,不再那么容易受到几十年前肆无忌惮的安装者的“敷衍”。
像9RLS3H或FH09这样3/4吨的寒冷气候迷你车在我家附近的售价不到3.5万美元(全包、全安装),而1吨的售价通常不到4K美元。我从来没有听说过一个只供暖的Atherma系统报价低到1.5万美元,但你的可能是第一个(?)当你加入冷冻水空气盘管的时候,它会更贵一点。看到的://m.etiketa4.com/articles/dept/musings/air-water-heat-pumps
根据管道问题的复杂程度,1吨重的微型管道系统的运行成本在5-6K之间。与你的平面图可以是非常直截了当的垂直安装富士通在墙的另一边从你的洗衣机/干衣机在MBR的衣橱,这也给它准备好访问一个空调冷凝水排水处理,和访问维护&过滤器等。
净零房屋,加热/冷却平衡点通常在50-55F的范围内,这敲了大约一个月的加热季节的开始和结束。在亚基姆的一个新的Code-min房子的加热季节将从5月底到9月底到5月底,但在净零房子中,它将来自10月中旬至4月底。
https://weatherspark.com/averages/31988/yakima-washington-unitings
约书亚。我的Intus Rep距离酒店大约是两个小时的距离,这不是一个问题。我在订购Windows的过程中发现了Intus太晚了,但代表在处理门口很棒。因为我们到目前为止的时间表,他把六个小时的时间推向查尔斯顿,然后拿起门然后制作平等的驱动器来带它使用。他和承包商的船员在我们看的时候安装了该装置。
但一定要对你的当地代表做些尽职调查。
达娜,
我对你的建议很好奇,以便使用eps和icf为板坯和阀杆墙。我的gc认为xps是去的方式。是否有一篇文章或文件在某处演示了您提出的概念,也许是横截面?
我还想询问一下外墙的硬质泡沫材料,你觉得那边用EPS怎么样?我已经看到一些面板系统,包括OSB护套预先粘附到泡沫与箔面EPS。我还看到了EPS板与脊在内部的一面,以协助排水锁在一起,类似于ICF块。说实话,我没有看到太多关于外部EPS CI的信息,但我喜欢EPS的一致性和价格,与polysio相比。
另外,我最近读了一些文章,也对外部CI接缝的粘合提出了质疑。这张纸是由材料制造商杜邦公司(Dupont)发布的,但我想知道是否有任何真正的共识,即接缝不应该用胶带粘住,以及是否应该在坚硬的泡沫下面/上面使用空气/包裹(链接在这里)?
在板坯绝缘下,您似乎不愿额外添加,但担心冬季地板将如何冷。我们使用6“与您的情况,EPS的成本低于XPS,因此您的额外额外的零售成本是最小的。请确保您将板坯与周围的基础隔离,或者您将失去热量在外面。在R-40/60房屋中,我们在区域的5B和6使用空气源热泵,又名迷你分裂,舒适程度与我所经历的任何东西不同 - 温度是恒定的,甚至整个房子将与屋顶太阳能的100%的热水,热水和电荷均匀地工作。我也不会担心天花板高度 - 用正确的绝缘水平和一个非常紧凑的房子,它会产生非常几点差异。
约书亚说:
问:“我想知道是否有任何真正的共识,即不应该录制外部刚性泡沫状物的接缝和包裹物是否应在刚性泡沫下使用?”
答:这里有几个问题。你所链接到的文章(来自杜邦特卫强)其实并不是关于泡沫接缝是否应该用胶带粘住。本文对硬泡沫作为防水屏障的合理性提出了质疑。
关于这个问题的更多信息,包括泡沫收缩的讨论,请看这篇GBA文章:使用硬质泡沫作为防水屏障.
胶带是一个非常好的主意是刚性泡沫的接缝是减少空气泄漏的原因。(减少空气泄漏总是一个好主意。)只要因为你拿起那些接缝,并不意味着刚性泡沫将成为你的WRB。
由特卫强制造商撰写的一份文件提倡使用特卫强也就不足为奇了。也就是说,我同意使用室内包装材料作为WRB,而不是试图让硬质泡沫材料作为WRB。
谈到家庭包衣是否应安装在刚性泡沫或刚性泡沫上的问题时,简要答案是任何一种方法都可以工作。有关问题的完整讨论,请参阅家包去哪里?
鲍勃和黛娜,
如果这是一个更有效的解决方案,完全可以在板下增加隔热层。在这一点上,我倾向于做我相信你和达纳推荐的ICF干壁和浮动板2或4英寸的EPS。然后我们会跳过Altherma加热地板和冷却解决方案,只是做一个迷你分裂代替。达纳在前文中提到的这个线程2英寸就可以不加热地板,如果我们不去加热层,添加另一个重大好处两英寸的EPS板的顶部3”的EPS我们需要达到R-10的佤邦代码(假设ICF干墙)?
我一直在寻找一个良好的墙和基础横截面,显示ICF干墙,浮动板下刚性泡沫和外墙刚性泡沫CI细节。你知道有这样的横截面的文章吗?还是我应该起草一些东西和我的承包商讨论?
马丁,
谢谢您的回复,我读过这些文章,我认为我们将卷起我们的刚性泡沫的接缝,并在护套和外部刚性泡沫之间使用房子包装。
约书亚说:
以下是GBA详细信息库的详细信息。
链接是//m.etiketa4.com/cad/detail/cosulated-basement-poured-concrete-4-interior-rigid-foam-framed-wall.
它不是ICF墙,但你仍然希望研究它。
.
约书亚说:
以下是ICFS制造商Quadlock的详细信息。
.
约书亚说:
这是建筑科学公司的细节
再次,它不是ICF墙,但你可能会发现它很有用。
.
约书亚说:
这是来自Fine Homebuilding的ICF地下室细节。
.
我不确定为什么GC认为XPS是去的方式(也许是营销Kool-Aid?:-))
在1.5磅中,标称密度(“II型”)或更密集的EPS是合理崎岖的,每个R比XP更便宜,并且非常适合于子级申请(毕竟,大多数ICF是EPS)。此外,由于XPS失去了它的气候损坏的吹风剂几十年来它的性能下降到II型EPS。给定厚度的性能优势只是暂时的。此外,在板坯下,您并不真正关心另一个〜20%的厚度,以击中给定(初始)性能点。
EPS性能不依赖于吹药的保留。它被吹出(相对较低的环境影响)戊烷,大多数在其到达经销商之前消失,在制造商的网站上恢复并为过程热量烧毁。如果没有这种依赖,它在多十年中具有稳定的R价。
XPS有时优选的是辐射加热承包器,其方法是将管子装订到泡沫(而不是将其绑在加强钢上),因为它具有相对于II型EPS的卓越钉保留。在2LB密度(IX型)中,EPS具有与XPS相同的主题保留,并且仍然比XPS更便宜,但有时很难找到。II型EPS通常很容易找到,因为它是用于屋顶绝缘的常见密度。
一个极简的ICF大约是R17-R19,并且经常节省时间(=金钱)浇铸和剥离形式,然后绝缘之后。QuadLock的ICF是2.25" +2.25",大约是R19, SmartBlock的版本是每面2.125" (~R18),你甚至可以通过家得宝订购,尽管通过分销商可能更便宜。一些ICF供应商开始在2.5“+ 2.5”(R21),但有一些其他的1.75“或2”开始,这将是一个stemwall。当每一面的厚度小于或等于2”时,浇注全高墙(4-5'的干墙不成问题)时,井喷风险更高,这就是为什么供应商倾向于每一面的最小厚度为2+”。
约书亚说:
您可能更喜欢XPS的一个原因是XPS中使用的吹风剂通常对全球变暖产生大量影响,而不是EPS中使用的吹药。这可能会最终发生变化,但据我所知,至少在美国,XPS仍然值得避免,如果可能的话。
编辑:看起来达娜打败了我到这里的冲击哈哈。
约书亚说:
在阁楼中升高的绝缘水平的一个潜在成本增加是可以与像瓦一样高地震区中的支撑升脚跟桁架相关的工作。不建议你不应该这样做,只需要意识到所涉及的成本可能不仅可以是吹吹绝缘体的额外深度。