喷雾泡沫绝缘建筑的通风或通风?
我计划在我的金属建筑中使用开孔喷雾泡沫保温材料,然后建造内部。我读过两篇由Allision Bailes写的文章,这两篇文章似乎互相矛盾,都是关于一个有SPF的家庭(或建筑)是否应该通风。2014年10月22日,GBA顾问Allison A. Bailes III博士在Greenbuldingadvisor.com上发表了一篇题为“喷雾泡沫隔热房屋需要通风”的文章。另一篇文章发表在EnergyVanguard.com网站上,标题为“当心使用喷雾泡沫隔热材料的屋顶工人”(Allison Bailes于2013年11月18日星期一发表)。我们计划使用LP供暖,HVAC承包商告诉我们需要一个山墙通风口,但在看了这两篇文章后,我比以往任何时候都更困惑,不知道正确的方法是什么。




回复
你令人困惑了两件不同的东西:阁楼通风和整个房屋通风。您应该包括机械整个房屋通风。您是否透气阁楼取决于您是否有条件阁楼。如果您在屋顶线上放置绝缘,您有一个有条件的阁楼。
特里,
迈克尔是对的。
如果您的目标是建造一个具有较低漏洞水平的房屋(即紧身房屋) - 这就是你的究竟应该你的房子需要一个机械通风系统,为住户提供新鲜空气。有关机械通风系统的更多信息,请参阅设计良好的通风系统。
如果你的房子有一个阁楼,阁楼可以通风或不通风。这两种方法都可以,只要阁楼设计得好、设计得详细。如果你计划在阁楼上安装任何暖通空调设备或管道,最好的方法通常是建造一个没有通风的空调阁楼。有关此问题的更多信息,请参见创建有条件的阁楼。
Michael和Martin,谢谢你指向我的正确方向。我现在知道了。这提出了更多问题。假设我正在使用开放式电池泡沫来提出这些问题,以创建密闭空间。首先,如果我的阁楼区域是有条件的,因此不透过,则可以安全地使用气体或LP设备安全,只要它们具有密封的燃烧和正确的排气?其次,我是否正确理解,如果阁楼区域是有条件的,并且不透过的是,我需要介绍一些整个家庭通风方法?
特里,
问:“如果我的阁楼区域是有条件的,因此不透过透气,那么使用燃气或LP设备是安全的,所以它们具有密封燃烧和适当的排气?”
答:是的。
Q。“我是否理解正确,如果阁楼区域是空调和不通风的,我需要介绍一些整个家庭通风的方法?”
答:对于机械通风系统的需求——无论是排气管通风系统,平衡通风系统,还是中央风扇综合供应通风系统——与你是否决定建造一个有空调的阁楼无关。
一般来说,许多漏水的家庭没有机械通风系统也能正常工作。所有紧凑的房屋(无论是否有有空调的阁楼)都需要机械通风系统。
如果您正在建造一所新房子,您希望(a)努力使您的房屋的建筑物尽可能紧,并且(b)包括机械通风系统,以确保占用者获得足够的新鲜空气。
无论您是否想要一个有条件的阁楼是一个独立的决定。
马丁,谢谢你这么彻底地回答了我的问题。如果他们中的许多人看起来头脑简单,我很抱歉,但我没有使用SPF和我希望通过使用它达到的密封效果的经验,我想确保我不会犯可能导致重大问题的错误。还有一个与家电相关的问题。燃气炉没有密封燃烧,在相对密闭的空间使用是否安全?
特里,
当用于烹饪时,煤气灶排放的污染物会损害人体健康。在使用煤气灶的时候,最好是把抽油烟机排到你家的外面。
有关此主题的更多信息,请参见用煤气做饭的危害。
你好,
我有一个和OP相似的问题。我是个能手,但不是专家。位于多伦多第6区
想知道有没有人能帮我回答。我已经提高了客厅平房的天花板,在这个过程中,我们给屋顶平台加了CC SPF。我们满足最小R值。我已经增加了挡板和一个山脊通风口之前喷洒泡沫甲板,试图消除热屋顶。我一直在与我的城市检查员和现在的建筑规范检查员斗争,因为他们声称我需要a)增加更多的隔热+聚蒸汽屏障或b)通风阁楼在我的客厅,因为它是“一个没有条件的空间”..谁错了?我厌倦了在未发明的空间中添加聚。
我需要给这个小阁楼通风吗?
新天花板和屋顶间距之间的空间高度约为3英尺。
非常感谢任何帮助
大卫,
如果你已经安装了喷雾泡沫椽海湾,它听起来像你,和绝缘绝缘是连续的墙壁,这意味着它是顶板的安装你的墙的山脊,回到顶部板(假设一个简单的屋顶),阁楼现在是家里有条件的空间的一部分。如果你所在地区的代码中有r值,检查人员可以要求更多的r值和蒸汽屏障,但要让阁楼空间通风,就等于否定了你在屋顶甲板下安装的绝缘材料。
我希望我能理解你的问题。以下是一些应该有用的文章。
//m.etiketa4.com/article/creating-a-conditioned-attic
//m.etiketa4.com/article/all-about-attic-venting
//m.etiketa4.com/article/how-to-build-an-insulated-cathedral-ceiling
为了加入Brian表示,直接施加到屋顶护套的下侧的闭孔喷雾泡沫(CCSPF)将密封脊通风口。由于CCSPF密封屋顶,因此在本申请中没有必要。由于阁楼现在是现有的空间,因此您不需要拱门或山墙通风口。我不确定蒸汽屏障的点是什么,因为CCSPF也是这样的功能。
可能我们还没有完全了解你的情况。你能提供一些图片或图纸吗?重要的是要知道喷雾泡沫是如何安装的。
账单
我不认为我们了解你的建筑正在发生什么,几张照片可能值千言万语。请张贴一些帮助我们了解你如何有喷雾器泡沫。
沃尔塔
我认为他们有理由担心你的迷你阁楼是绝缘的(上面)和空气密封的(即设置为空调),但实际上并没有空调。你应该加一条供水管来修理。
谢谢你的回复,
不幸的是,我的手机被擦除了,但我会尽我所能地阐明发生了什么
椽湾有挡板安装从拱腹到山脊通风孔,并用5.5英寸的泡沫喷雾密封。满足最小r值(32)。我的工程师关于消除“热屋顶”的建议。于是我们在塑料挡板上方的椽子之间喷了泡沫
我对增加通风没有问题,从下面移动空气在空间周围的进出,但我确实担心向外通风到屋顶一侧。
我更关心的是增加另一个蒸汽屏障,因为ccSPF应该不需要
检查员一字不差地说:“阁楼是无条件的空间”。我很困惑,大家都这么说。它只是目前没有排气
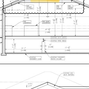
我拿到了图纸,还设法抢救了一张照片
同时也在寻求机械通风的解决方案
再次感谢您的帮助全部和链接。我会尽力摇曳检查员
谢谢你的图片。
问检查员“如果你在阁楼上增加供应和退货登记,它仍然是无条件的吗?”与检查员打交道时要小心,如果他们决定这样做,你的生活会很艰难。
沃尔塔
我同意,也许是“我没有阁楼,我有一个下落的天花板”。
首先,你有没有让工程师对你的领带和其他东西进行评估?我在那些打印摘要上没有看到任何标记诸如"插入新的脊梁"之类的东西。如果你移除领结和椽系,你只有一个脊板,就像在图纸上显示的(这是非常不同的脊梁),你的屋顶可能有结构失败。这是一件大事。要确保操作正确。
关于隔热层,看起来你有一个拱形的大教堂天花板?如果是这样的话,图中显示的是一个正常的通风屋顶组件,在挡板上喷洒泡沫以创造一个通风空间。这没有什么问题,只要它做得正确,脊和拱腹通风口连接到屋顶护套和喷沫之间的通风口空间。
如果你在这个拱形天花板的末端有一个部分阁楼,但是屋顶组件在那个区域是用同样的方式隔热的,那么阁楼是在建筑围护结构内部的,被认为是有条件的空间。也有可能像其他人说的那样,检查员只是想让封闭区域的空气流通。这应该不是问题,如果屋顶的通风部分没有连接到阁楼空间的任何地方。
另一种可能是巡官不知道自己在说什么。不幸的是,这在建筑中是一种令人惊讶的常见情况,特别是当检查员可能不熟悉复杂的现代建筑组件时。如果你在这个项目中与建筑师和/或工程师一起工作,让他们为你和审查员谈谈可能是值得的。就像其他人提到的,你对检查员说的话要小心,因为他们会为难你。典型的“检查员对你很生气”的问题是,他们开始挑剔你项目中的其他一切。
账单
谢谢你们所有的话
我会谨慎地询问有关空气流通的问题。虽然我不知道你担心什么,空气不新鲜?
@bill,谢谢你花时间。你是纠正的,我有一个不经常和密封的部分阁楼。我会问是否增加机械通风口以循环空气会很好。
我有一个建筑师和结构工程师和我一起工作。这些计划加盖公章并获得批准。在检查时,阁楼的绝缘问题出现了,我试图解释,因为ccSPF,阁楼被认为是“有条件的空间”,我的SPF安装。现在我正试图寻找教育或影响他们的方法。我做了他们想要的一切,包括提交修改。
要回答您的Q,现有的山脊板在播放和工程师中,建议姐妹现有的椽子具有较大的椽子来实现应用CCSPF的深度。
安全是我对我和我的家人担心的。我会尝试与工程师交谈。
我没有发出通风循环空气的问题,我确实在绝缘层中添加了吹入的问题,另一个蒸汽屏障是检查员所建议的。
此时,我觉得我可能必须向城市提出申诉。
没有支撑的山脊的问题是,由屋顶的重量产生的向下的力会导致蔓延,并倾向于将两面墙推到分开的椽子。在这里,用姊妹状的椽子是没有用的,你需要在顶部有支撑(一个脊梁),或者其他东西来防止墙向外蔓延。你的工程师应该考虑到这一点,而且很可能已经考虑到了,所以如果一切顺利,那么结构的其他方面就会抵抗这种扩散力。
关于阁楼空间是有条件的空间,它不是使其调节空间的CCSPF,至少不是自身的。是什么让阁楼条件空间是泡沫的位置,在屋顶上。如果CCSPF安装在天花板上方,则阁楼不会被调节空间。这一切都与建筑信封所在的地方有关,在这种情况下,它是定义建筑信封的绝缘层的位置。
你可能想看看GBA的文章,和建筑科学公司的网站。这两个网站都有解释这一点的文章,这可能有助于说服你的检查员。
你也可以打电话给你的州检查员,看看他们是否会告诉当地的检查员这是可以的。如果你不得不走这条路,你的工程师会知道该怎么做。
账单
我不确定这些信息是否有用,但还是开始了。澄清一下:你的屋顶组件是一个通风组件。然而,隔热屋顶组件下面的阁楼空间是一个没有通风的空调阁楼。
很有可能有一个没有通风的有空调的阁楼,阁楼上有一个通风的隔热屋顶组件。这就是你所拥有的。
关于蒸汽屏障,你当然是对的。闭孔喷雾泡沫已经是一个蒸汽屏障,所以你不需要额外的内部蒸汽屏障。
大卫,
希望你对你们的绝缘/通风/蒸汽屏障情况有一个很好的了解,但如果还不清楚,请告诉我们。
这将帮助你理解Bill在谈到屋顶框架时所说的:
https://www.finehomebuilding.com/2013/11/07/how-it-works-collar-and-rafter-ties