图片一:迈克·安德森
编者注:这是David Goodyear的一系列博客中的第二部分,描述了纽芬兰Flatrock的新家建造。家庭将成为该省中的第一个建造在被动房屋标准中。GBA博客系列的第一款题为标题Flatrock被动房简介.你可以找到goodyear的完整博客这里.
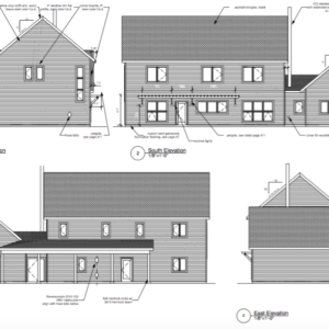
我们的设计师,麦克·安德森,一直忙!现在的房子测量2176平方英尺。目前的改进已经定稿,以至于我们准备将其提交到镇上为我们的建筑许可证......。好了,我们已经拥有了建筑许可证,但没有一个附加车库。Flatrock镇将只允许你建立一个车库,一旦房子已经开始。为了避免这种情况,我们已附上房子,所以无论是房子和车库可同时建造。
在目前的方向上,住宅的长轴距离地理南向小于15°。这将确保我们的太阳能覆盖率在冬季将超过95%。夏季会有一些能量消耗,因为日落会导致太阳在当天晚些时候获得能量。主层窗户上的一些格子阴影应该可以解决这个问题,但只有能量建模才能说明问题。
车库外立面稍微改变了一点。车库门不再是双开门,而是单开门。车库将成为一个木工车间。车库门顶多就是个可怕的R-18,而且会泄漏你无法相信的能量。最小化门的尺寸将有助于保持热量,并为我的设备提供更多的墙壁面积。车库将在楼上有一个巨大的储藏室,大约14英尺乘25英尺。这将弥补地下室存储的损失。然而,把东西搬到楼上可能是一件痛苦的事,我不希望车库的固定楼梯占用宝贵的地板空间。我们决定安装一个阁楼楼梯,从内部进入空间。为了便于将大件物品提升到第二层,设计师提出了一个简单的解决方案:一个干草棚门和一个滑轮。 Simple yet effective!
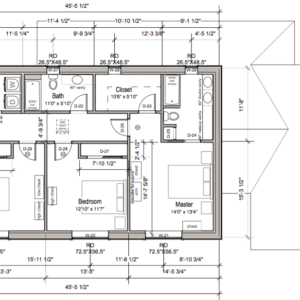
由于在确定供暖需求之前需要完成能源建模,所以目前还没有木材炉子的烟囱。在楼上,事情发生了一些变化(楼层平面图,见图2和图3)。
对于大多数情况下,我喜欢布局,但我们已经建议在楼上的楼上靠在楼上,墙壁有两个双滑轮,带有磨砂玻璃窗口。它将允许我们为亚麻布,毛巾等提供额外的存储,并使我们能够在仍然允许光溢出到走廊时关闭门。套房已被调整大小的大小,以适应我的妻子的化妆桌。主人有点小,但仍然大约14英尺的广场,这足够大。除了这些变化,楼层计划可能已经完成。
一些细节尚未公布
我不确定垂直板和钢筋壁板。板和板条需要双雨屏,这需要更长时间才能安装,并且它不会脱落水以及标准斜面壁板。我提出我们使用灯泡壁板并在屋檐下安装板块,并用染色的雪松震撼,分手了东部和西部墙壁。
我也提出了一座多色建筑,享有市中心的圣约翰斯和传统的纽芬兰·萨尔箱在出口中看到。家里可能是一种颜色,车库将是另一个颜色,使得颜色将眼睛吸引到房子上作为焦点。
此时,房子已准备好进行能源建模。被动设计解决方案将使用被动房屋规划包(PHPP)软件来查看几何问题是否存在任何粗略的问题。该软件将确定冬季太阳能收益和夏季过热损失的问题。根据这些结果,我们可以确定对面向朝南窗口的需求,最大限度地减少面向朝鲜的窗户,窗户悬垂,以防止过热。最后,我们将更好地了解房屋的加热和冷却要求。
能源模型的结果令人鼓舞
第一轮能量建模已经完成。从模型和场地上房子的朝向来看,能耗看起来很好。有太多的数字要讲,所以我将集中在重要的数字上。
用于模拟房屋的PHPP软件相当复杂。数据输入是详尽的,它包含了从窗户的透明度到与建筑上吹的风相关的换气率的信息。
首先,让我们看看总能量平衡(见下图4)。蓝色的柱子表示建筑损失的能量,红色的柱子表示建筑获得的能量(基于我们的气候)。窗户通常会消耗建筑物的能量。然而,如果方向正确,窗户可以在冬天提供太阳能,这可以抵消通过窗户损失的热量。
在我们的模型中,南部窗户的能量比信封中所有窗户丢失的能量稍微更多!这是一个很好的开始!在夏天,面向朝南的窗户比迷路更大,但单独的通风照顾大部分热量。由于没有阴影结构,导致这一点的主要窗户在主层面上。该模型表明,在建筑物外部添加了太阳屏幕将其降低了60%,因为它们将太阳辐照度降低约50%。
加热和冷却载荷
现在让我们看看负载(见下图5)。负荷是能量的瞬时使用或获得。这里负载以Btu/h表示,但我们通常使用功率单位kW来表示。冬季余额是在一年中最冷的一天。夏季收支平衡是在一年中最热的一天。
这一切意味着什么?好吧,让我们来解读这些平衡,试着从正确的角度来看待这件事。首先,我想谈谈供暖的需求或全年能源使用量。我将用kWh来表示,而不是图中使用的Btu/h惯例。看看下面的图片#6。将图中的红条(单位为Btu/h并转换为kW)相加,可以得出全年供暖的总能耗为17千瓦时/平方米。
这与代码构建的主页相比如何?一个典型的代码建造的家庭大约需要70千瓦时/平方米!因此,该模型估计仅供暖成本就能节省75%。
一年中最冷的一天的负荷怎么样?在负载条图中,建筑物使用的总热量约为13,000 BTU / H或3.8 kW。这对一个尺寸为2,176平方英尺的房子来说非常小。实际上,每平方米的加热载荷确定为约13瓦。大多数代码内置的房屋这个数字约为5到10倍。
预测电力使用
如果大楼里的所有东西都用电,每年的总用电量约为12400千瓦时,包括暖气、电器、热水等。记住,我们位于气候带6区。按照现在的价格,平均费用大约是每月100美元。使用热泵进行空间供暖和热泵热水加热器,这将下降到10,300千瓦时或每月83美元。一个典型的代码建造的相同大小的房子将使用近24,000千瓦时或大约195美元每月。按照我们目前的速度,每年节省的电费大约是1,330美元,每年每月的电费总额是1,001美元。不是太寒酸!
被动式住宅设计的原则之一是增加可再生能源,以进一步降低总能源使用量。你认为你能在生活舒适的同时,在电网上最小化能源消耗吗?那还用说!通过结合加热和热水系统,安装木材气化锅炉和热泵,我们进一步减少了3,000千瓦时的电力消耗。(关于该系统的另一篇文章即将发表。)
我们的总能耗估计将在7300千瓦时左右。如果一切按计划进行,我们估计每月的电费将是86.30美元,包括税金和服务费。相比之下,用代码建造的房子,费用是245.67美元。节省了65%。我很高兴。
与同等大小的标准建造的住宅相比,Flatrock被动式住宅总节能65%,供暖需求减少75%,它将成为纽芬兰最节能的独立式住宅!



43岁的评论
从技术上说,这房子还算不错吧?
这并不是挑剔,但为了获得认证,被动式节能屋应该是这样的
还是美国被动房协会有不同的标准?
非常糟糕的布局
天啊,我不喜欢你的平面图。虽然我可以看到,从能源效率的角度来看,我们花了大量的时间来设计房子,但布局很糟糕。
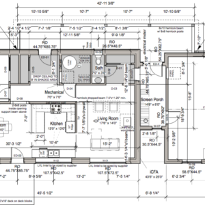
你走在前门(看起来在大厅中间的中心),没有地方坐下来脱掉湿鞋,没有地方放下帽子,手套,邮件,钥匙等。只是一个衣柜门侧面和一堵空白墙直接前方。然后是允许进入起居室,办公室和厨房的大“霍尔”,允许进入客厅(无处不在的空白墙)。
厨房糟透了。从餐厅到客厅有一条主要的交通路线。后面的“密室入口”是一个死气沉沉的空间,有一扇壁橱门和一扇通往盥洗室的门。屏风门廊是.......一个无用的空间。为什么会在那里?有窗户吗?屏幕吗?
至于楼上,卧室看起来不错。良好的尺寸,良好的自然采光。另一条长长的、空荡荡的走廊。为什么不沿着它的墙壁建一些书架呢?主浴室是斯巴达式的,而主套间里面有很多东西,会让人觉得非常狭窄。楼梯口的开放空间(当你加上你提到的那些墙后,它会变得更小)是另一个浪费的机会。
在你花更多的钱建造这个之前,我建议你阅读一些由Sarah Susanka写的建筑设计书籍。她的这个系列源自她的第一本书《不那么大的房子》。她分析了一所房子里的每个房间,写出了这个空间需要的功能,以及如何花很少的钱增加很棒的功能。你可以在平面图上添加大量的功能,但仍然保持房子的基本大小不变。
抱歉讲得这么生硬,但该死的!该计划很烂(特别是厨房)。
举个例子
这是莎拉·苏珊卡在出版她的第一本书时为自己建造的房子。看看这些空间是如何相互连接的,以及功能是如何重叠以创建多个使用房间的。在规划中没有死角,交通模式在整个房子中流动,不会造成瓶颈或干扰关键功能(如洗碗)。这是一座小房子,但却有很多特色。这些类型的空间是你的房子应该有的。
数字上的错误?
“全年用电总量约为12,400千瓦时,”…使用热泵进行空间供暖和热泵热水加热器,这将下降到10,300千瓦时“这仅仅减少了20%。热泵应至少减少60%的需求。我认为这些数字中有一些错误或混淆。热水和空间热在总能量中所占的比重必须很大。
从技术上讲,这将是一个“相当不错的房子”?R
PHIUS的数量是不同的,而且是基于气候的。
RE:数字上的错误?
我理解你的困惑。热泵热水器被建模为一种较新的气源顶部水箱模型。由于在我们的气候条件下,将其输送到室外是毫无意义的(他们通常需要室外温度>7摄氏度),它可以在冬天从生活空间中收集热量。迷你分离式热泵将不得不弥补这一差距。这真的是拆东墙补西墙。要记住的另一件事是,为了运行不同的场景,必须假设在PHPP软件中使用某些参数。这些都是用户输入的,所以结果和假设一样好。有些使用场景实际上是基于猜测的,因为您确实不知道使用模式,但试图给出一个“最佳猜测”。这就是说,它确实表明,当你切换加热机制,你可以减少你的现场能源使用在仪表。希望这个有帮助。
非常糟糕的布局
在布局上花了不少时间。我的目标是在房子的南侧有一个居住/睡觉的空间。它将在冬季为居住空间提供大量的自然光和巨大的加热潜力。虽然这看起来像是一片死区,但我有一些关于如何使用这些空间的想法。并不是所有的建筑或木制品细节都包含在计划中。我的车库其实不是车库。这是一个木工车间。我对我的工作感到自豪,我总是用漂亮的细节/内置的东西填充我的家,使空间更有用。然而,这并不适用于“我现在就需要这个”的方法。我没有10年的时间盖房子,但我有10年的时间来做我一次只考虑一件事的事情。 This fits with adding great features for not much money. I just need to buy wood...the rest is my time.
要记住的另一件事是你在这里看到的计划是重新改变的修订。楼梯顶部的空间现在将是一个单独的房间,内置亚麻储存和折叠空间。将有两个大型滑动门打开走廊的空间,所以它似乎仍然关闭,我们仍然能够将门关门,因为袜子繁殖......他们总是这样......我不是当然他们都来自哪里!!!同样我已经考虑在楼上的走廊里添加书柜。至于入口道,因为它在计划中看起来鲜明,将有一个小型的长凳,我为Mysellf和一个带有账面的门板的美丽的燕尾钥匙柜。我的房子将成为我家具/内置的展示案例。进入的空白墙也有计划。我的感觉是你谈到的浪费机会是基于我们没有想到任何不是这种情况的人的假设。我在规划将如何使用空间以及我将添加的功能进行了大量的时间,以使它们可以使用。
屏幕门廊真的是一个门廊。这是一个空间封闭,现在有一个窗户和一个带有缺口的门。这个空间作为几种目的。这是我的木店和房子之间的过渡空间,以便将它们分开,因此没有直接访问。它作为雨冬衣服的空间在1月份播放2小时后,它几乎在每个主要的雪落后几乎雨水雨)。这将是我干燥的火木的空间,这将很容易地从房子内部提供一个可堆叠的木质车,我将能够直接滚到门廊上,然后返回木炉。虽然没有细节,但是空间已经过。当他们可以存放在更合适的位置时,我真的不想要湿靴和冬天的雪套装。连接到那个摩尔塔的1/2浴室为我提供了一个空间,让我在户外进入户外,而无需上楼,或者在店内漫长的一天后才能抵达生活空间。
啊…厨房……有一条交通路线穿过它。和这个人战斗…并且做了几次修改。在其当前的配置中,它在住宅的三个主要生活空间之间提供了一条直线,并使厨房成为餐厅和客厅的中心,方便访问。我认为交通对一个三口之家来说不是主要问题,所以我不太担心,几个月前就放弃了。我们的厨房通常只有一个厨师,所以我认为它会工作得很好。这是希望!
此外,在楼梯空间下将用作储层......计划中的当前门配置发生了变化。
只要您想到如何使用前期空间,就可以成为一个正在进行的工作,所以将来可以方便地添加任何东西。虽然我所提到的大多数都没有在纸上,但它在我的脑海里。
无需是近乎生硬对不起!由于这是一个开放的论坛,这是确定你的以形成与计划和伟大的意见,你是开放提供批评。它实际上是强制执行我的一些有关如何在该计划更有效地利用空间之前的想法...并可能引发其他的东西更多一些想法。
唷! !太拗口了!!
厨房布局
大卫:我建议你找一些空的车库或地下室,找一些锯木架和硬纸板,做一个厨房的全尺寸模型。斯科特·威尔逊是对的。它看起来像一个糟糕的布局。我特别不喜欢水槽的位置。你能考虑把厨房搬一下吗?
雇用建筑师可以通过缩小仓库来拯救您的财富,现在有很多浪费的空间。Sarah Susanka的书籍是一个有价值的资源。
厨房布局
史蒂芬,谢谢你的建议,但是这匹马已经出马厩了,真的。我们对厨房的中心位置很有限,我同意。我们希望清理区域能看到后院,所以唯一的选择就是南墙....我会祈祷一切顺利的!
绝缘水平必须设计为冬季负荷
你好大卫,
这是一个非常丰富的博客文章,我特别欣赏你的夏季和冬季能量平衡图。他们揭示的信息对于对为最低碳排放的建筑物的任何有兴趣的人都有用,这使得能够实现全再生源能源供应(Wether提供的宏观或微网格。)
如果我们看看墙体在冬季和夏季的损失差异,我们就能很容易地看到,为什么设计冬季条件下的隔热水平如此重要(当太阳能光伏处于最低产量时),而不是与光伏的成本竞争。在任何建筑中,墙壁通常是最大的表面积,因此会失去最多的热量(这似乎是违反直觉的)。一旦你将供暖需求(或负荷)降低到被动式住宅标准所定义的水平,在冬季可再生能源供应处于最低或最不可靠的时候,你就大幅减少了所需的能源量。这对公用事业有巨大的好处(和碳排放的减少),他们最大的挑战是冬季高峰负荷——每年的这个时候,他们想要点燃燃煤发电厂,因为我们没有足够的可再生能源储存(目前)。
恭喜。(你的厨房布局很好。)你在这里完全专注于正确的事情:减少冬季加热。
设计vs。“设计”
显然,许多思想进入了能源建模和技术设计考虑因素。所有者应该在绿色家庭中掌握这项大量投资。但是,我会回应地面计划布局的其他评论:需要大大提高,或者您可能会不喜欢它,以至于您将在5 - 10年内(根本不是绿色)重新改造。最可持续的项目包括智能平面图。每天使用的空间的“居住能力”就像节能一样重要。
GBA House的博客和设计建议
值得记住的是,尽管博客出现了一段时间,但它们几乎总是描述一个已经完成的项目。
回复:设计vs设计
克里斯,在我们的楼层规划中有很多选择实际上是基于我们现在的房子。我们已经在那栋房子里住了将近10年了,非常喜欢它的布局,所以我们把它的一些功能整合到了现在的房子里。我们将看到此时会发生什么。正如我提到的,马已经出了马厩。施工已经开始了,我们已经完成了一半的框架。站在空间里,我感到很幸福。我们看看是否适合居住……希望在10月。
固特异的教皇。
难道你不快乐,你没有写这个博客,征求输入您的厨房的设计?你可能会收到建议堆如何调整能源模型... :)
PS.如果你还能稍微优化一下这个设计,我将考虑寻找稍微好一点的窗口,可能使用更低的SHGC(或g值)。目前,你的热平衡图表显示,你的窗户在冬天失去的比获得的多,在夏天获得的热量更多。室外百叶窗可以解决这两个季节的问题?
我的选择
除了由Sarah Susanka写的一系列书籍外,我会建议您阅读另一本名为“模式语言”的伟大资源书。回到1970年代的建筑教授和他的学生正在研究世界各地的建筑物,看看房间规模,放置或方向是否存在任何共同主题。他们发现,无论气候,文化或其财务资源,人们还会在他们的房屋中更喜欢他们房屋中的相同“设计模式”。像“始终从两侧的主要房间里有日光”的模式和“在房子里找到主要房间依赖于太阳在当天的时间里,你主要使用那个房间”。
例如,由于大多数人通常想要一个明亮的阳光明媚的厨房和下午,那么该房间应位于东南角。餐厅沿着南墙坐落在南墙中,以便您可以在午餐和晚餐时享用阳光。起居室通常在房子的西侧,因为你很可能在晚些时候和晚上使用它。其他房间喜欢办公室,入口,泥室和粉末室不需要太阳,所以它们可以在房子的北侧。一旦您了解一般房间位置,您就可以开始规划循环路径和视线以查看。
我在主楼层平面图上看到的两个主要问题是流通通道和缺乏自然采光。拿出你的平面图,画出所有你打算用于缩放的家具,然后用红色记号笔画出循环路径。您将看到,为了到达其他房间,您有几条主要路径穿过房间。穿过餐厅有三条主要路径(一条从餐厅入口到厨房入口,一条从餐厅入口到楼梯,第三条从楼梯到厨房入口)。这使得餐桌和椅子更像是一个障碍,而不是一个吃饭的地方。
在客厅里,有三条主要的流通路径贯穿整个房间。一个从门厅到厨房,另一个从门厅到储藏室最麻烦的一个从储藏室到厨房入口。为了从车库把食品杂货运进来,必须穿过客厅,这将非常不方便(更不用说让摆放家具变得困难了)。
布局的另一个问题是主要房间本身的位置。我感觉你想要一个“开放概念”的生活空间,三个主要房间布置在房子的南半部。最好的办法是把厨房搬到东南角,把餐厅放在中央,客厅放在西侧。现在,储藏室就在厨房旁边(去盥洗室很方便)。厨房现在方便多了,有很多柜台空间,有一个可以吃东西的半岛空间,也没有穿过工作三角形的流通路径。(顺便说一句,当从主要起居空间可以看到入口时,没有客人会想要使用化妆室)。
随着厨房移动到更好的位置,前部门和餐厅之间的墙壁现在可以通过窗口,以帮助将两个空间连接在一起,并从前门提供美丽的景色。该条目包含对办公室,小衣柜,纸张,邮件,钥匙等的低机柜以及座椅替补席。如果您希望您还可以将低柜台和台面添加到通行墙的用餐室侧,以充当自助餐。
移动楼梯是解决房屋内部流通问题的另一个关键变化。事实上,让楼梯通向餐厅的另一边意味着你不能在那面墙上开窗户。实际上,楼梯本身变成了一个黑暗的垂直通道,只是简单地楔在墙壁之间。如果你移动楼梯所以他们开始北墙的客厅,然后把它们运行在办公室楼上(构建在办公室桌子上运行下面的楼梯,你没有空间),然后每个人都可以访问二楼其实并没有进入客厅。
通过removing the central hall (that really only existed to allow access to the office, dining room and living room) and changing it to a “circulation spine” that visibly connects all three major ground floor rooms you’ve effectively included that space within each room, thereby making all the spaces feel larger. You also get much more natural daylight throughout the main floor and beautiful views (hopefully there will be a couple of small windows added to the east and west walls).
最后,在这样一个紧凑的房子里,你不应该浪费宝贵的室内地板空间在机械房,因为它可以很容易地放在其他地方。把它放在车库或一个小的新空间连接房子和车库。
当然,内墙,门窗的最终放置(以及房间的尺寸)都将取决于您房屋的实际外部尺寸和您自己的个人品味,但我希望这个计划给您提供一些额外的选择.
如果你需要关于楼上的建议就告诉我。
斯科特……
你能提供一个能源模型用于你的设计吗?
能量模型
不幸的是,没有。我没有那种软件,说实话,我也不认为能源建模真的那么重要。
亵渎!
嗯,是。是绝对做能源建模如果房子内的基本布局和流通路径不工作是没有意义的。没有人会在6个月至在乎,因为你改变了大小或窗口建筑物上的热负荷下降了0.5%,这是相同的之类的说法我做的位置,当我告诉人们没有在会议上没有必要同一家银行经理借$ 200000盖房子,直到布局完美的作品。
不幸的是,古德伊尔现在已经完成了框架阶段的一半(但现在停止并做出改变还为时不晚)。我认为他应该停止诬告的关键原因是他的声明“Ahhhh....厨房……有一条交通路线穿过它。和这个人战斗…并进行了几次修改,然后“在几个月前放弃了对它的痴迷”。
仅仅因为他放弃了解决一个主要的循环问题并不意味着循环问题不再存在。必须修复循环问题,或整个构建是完全浪费的时间和金钱。厨房和工作三角形尤其如此。我怀疑,在那个厨房水槽和装载洗碗机的人才会是一个时间问题,因为为了让别人在他们身后而厌倦了“擦除”。想象一年来必须这样做。
事实上,我希望我几个月前见过这个计划(在框架开始之前),因为可能很少有时间来解决东西。我也很好奇,听到他的妻子在这个晚期对我的设计建议的看法。
RE Goodyear for Pope。
巴里,很有趣!我相信随着博客的继续,也会有批评的声音。我们将会看到。
回复:我的选择
斯科特,我希望我能有时间及时回答所有的问题但我可能不得不打断这个问题。我想说的是,我的土地并没有考虑到多少地产界线上的退让。房子和车库的位置基本都是固定的。我很幸运地在一个朝南的小斜坡上找到了一个好位置。然而,这个奇怪的形状几乎固定在一个小区域的脚印上。这对设计影响很大。在房子东侧的起居区(或者在你的规划中是厨房)开一扇窗户,意味着可以看到车库的墙。从能源的角度来看,这完全没有意义。我们对不同的平面图进行了5次修改,最终选定了这个,尽管它现在有点不同。
在被动式住宅中,将机械装置保持在房屋的热边界内,并将它们集中起来,以提高效率,否则它们会对能源使用产生巨大影响。对于一个机械房来说,7x7的占地面积并不算多。木柴炉将热水送回该空间的水箱。把这个水箱放在一个偶尔有暖气的地方会再次导致更多的能源浪费。
主楼层的“办公室”将是一个多功能房间。它将是一间游戏室、一间办公室,还会为客人准备一张折叠床。它需要有一个好的卧室那么大,才能像我们现在的房子那样工作。
我们尝试了中央楼梯,但它不适合有房间在南边的家。
至于我的妻子,她在平面图上有很多意见,厨房并不比我们现在的家大或小,有和我们现在一样多的台面空间。就像我之前说的,一些房子的布局和我们现在的家很相似,我们没有遇到交通问题。
西墙现在有一个相当大的窗户(约8英尺高),在楼梯的顶部有几个窗户。我想它可以用来照亮楼梯。
我非常感谢您的疑虑和评论。你显然很熟悉房子设计。
就到这里吧……去工作,然后我的第二份工作…盖房子……还有一堆没完没了的事情要做……其他项目我稍后再跟进。
我的选择
谢谢你的赞美(我已经当了35年的建筑师)。我理解场地位置、大小、地形和曲折对你的限制。这些是你在规划房子时必须考虑的重要因素,它们通常是不能改变的。
我理解你想建造一个符合被动节能标准的高效住宅的愿望。为了获得他们的认证,你必须遵循大量的规则、指导方针和要求,我认为将它们包含在你的设计中是明智的。
我也理解你想为房子建造尽可能简单的形状的愿望。你的房子是一个基本的矩形盖在另一个矩形上,顶部有一个简单的山墙屋顶。没有慢跑,没有凸起,没有凹痕,没有繁琐的细节。没有比这更容易建立的了。
问题在于(并将继续存在)流通路径。有太多的座位穿过一楼的主要房间(只是为了去其他房间或楼梯间),基本上每个房间只有一个座位区。例如,在客厅里只有一个地方可以放沙发(靠东墙),而在厨房墙上可能可以放两把小椅子、一张咖啡桌、两张茶几和一套娱乐设备(除非木火炉要放在那里)。在餐厅,在房间的中央有一张桌子和六把椅子的空间,仅此而已(可能有书架,一张桌子,或者一个室内的靠窗的座位吗?)你的计划中没有太多的“适应性”。如果有更多的人可以同时使用每个房间进行不同的活动,那就太好了。
如果至少,你将每个墙都留到位(同时也保持机械室,楼梯在那里,办公室和主要走廊,只是转换了主房间,以便厨房位于东南角,用餐室位于中间,客厅位于家店的西侧,它将解决90%的循环问题。相同的框架,相同的房子尺寸,相同的能量建模。
除了旁边,我认为你要拥有一个伍德商店,你将能够利用你的时间和技能来创造精彩的内置,如长凳,关键机柜和其他木材工作项目,以个性化你的家。但是,也有危险。你可能会发现在你花了一些时间生活在房子里,这么多时间和精力创造和安装那些精彩的项目,当你终于坐下来实现“你知道的,这个平面图就不工作了。我们应该把厨房放在那里“你将无法改变任何东西,因为你不想撕掉所有这些精彩的项目。
我强烈建议你(在你做任何能量模型之前,在管道系统和管道和电气安装之前,在橱柜被订购之前,或者在钉子被钉进螺柱之前)现在纠正你循环路径中的主要缺陷。我向你保证,现在做出这样的改变所带来的痛苦和额外的费用将会为你在未来的道路上节省大量的悲伤
有用的辩论
无论原始海报是否能够或愿意改变它,我都在享受有关地板的辩论。这些类型的文章的主要受众是其他人考虑或计划踏上类似的努力。多个观点对该受众非常有用。在专业建筑师批评家庭主任的批评,所生成的计划是启发关于带有绘图包的任何其他家用主的人应该考虑。我也喜欢家用主的推翻质疑一些假设,让专业建筑师几十年来做的方式。
门廊
我同意里德的观点。看到这种讨论是很有用的。
设计的一个方面困扰我是门廊。它只有六英尺宽。我想知道它是否会因任何东西而被使用?在车库和房子之间夹着,它根本都会弄得一口气吗?雪会融化吗?远离阳光侧面的角落可能变得发霉。
再保险:玄关
嗨,Stephen,门廊实际上是一个封闭的空间,有2x6面墙。所以技术上没有筛选!我们最初认为这是一种解决城镇需求问题的方法,但后来决定将车库通过封闭的门廊连接到房子上。
门廊
嗨大卫:你想仅仅有房子和车库之间的开放的门廊,只有屋顶?
我期待着你的进步。
门廊
我做但是害怕雪,雨等我也希望轻松进入干燥的火木,我将沿着其中一个墙壁堆叠。我只需要大约3/4的木头,所以它会占用很少的空间。
存储
你打算做什么来储存?似乎只有前厅壁橱,办公室壁橱,一个小摩擦室壁橱和餐厅楼梯下的储藏室。一天到哪里的东西会去哪里?
如果你的门廊只有6英尺宽,你打算在那里储存干柴火(可能有18英寸长,需要3-6英寸的后方,以确保适当的空气流通),那么这就占用了2英尺宽。我会将门廊加宽到至少8英尺,并在南甲板上增加一扇门。
你是在洗衣机下安装地板排水吗?如果软管爆裂,你可以充满洪水淹没二楼。你计划在夏天挂在外面晾干吗?在楼梯底部附近的外门可能是一个好主意。
楼上的
卧室的门永远不能朝你开到大厅。把主卧室门的那一段墙向西拉,使墙与主卧室的壁橱墙对齐。现在门可以靠着一堵空白的墙打开(而且楼上的大厅也变短了)。
在主浴室,你应该创建两个区域,这样两个人可以同时使用浴室。把一个水槽放在前面的厕所对面,把第二个水槽移到浴缸区(连同任何架子或储物柜)。在浴缸区域放一个口袋门(或者至少放一个窗帘),也可以考虑把主浴室的门换成一个口袋门。
洗衣店
如果你要把洗衣区围起来,你可以考虑使用堆叠式洗衣机/烘干机,并在相邻的柜台上安装洗衣水槽(这对于预浸泡和一般清理来说是非常宝贵的资产)。如果你使用的是地下洗衣槽,你可以做一个木制的插入物盖住洗涤槽,这样当你不需要洗涤槽的时候,你就可以有一个完整的台面来分类和折叠。
有趣的评论。我的
有趣的评论。我对这个平面的第一反应是它很好,很有效率,给了很多墙壁空间来放艺术作品。我唯一想要改变的是把主卧室的门移到大厅的另一边,这样它就可以朝另一个方向移动。在办公室/洗衣房对面放一扇半透明的门。
会对你的项目感兴趣的。
存储,楼上洗衣
嗨斯科特。柴炉将于帆船长达15" ,但在12" 最好,所以堆栈不会占用太大空间。堆放柴火的线的3/4是不是真的很多木材。我也将有诸多存储的木材也棚。事实上,我们没有一大堆的东西。在我国目前的地下室,我们有大约20×10至少两个存储区,在那里很少。车库的第二个故事是怎么样的一个地下室更换。这是24x26与普通椽使地板空间楼上是巨大的。在冬季将保持在相同的温度我们的地下室在我们现在的房子,即约15℃。
洗衣房的配置相当合理。我们还没有缩小配置范围。但一直在探索橱柜、水槽等的想法。由于烘干机是一个热泵模型,所以它的位置不是真的依赖于外墙,所以不会有出口到外面。很有可能这个垫圈会安装在某种基础平底锅里,如果我能找到一个分流到排水沟的。夏天有时我们把衣服挂在外面晾干。我妻子很想在二楼洗衣服,因为寒冷天气的天数远远超过我们可以用晾衣绳晾衣服的天数。
我想过沉没的想法和插入。我们将探索这些选项,因为我们到达他们。
移动那堵墙,让门向内转动,这样做很好,也很容易实现。
主浴室门现在改为口袋门,我会看到其他浴室的想法也如何解决。
之后,
DJG
木制火炉
木火炉要往哪里去?我没看到有烟囱追到二楼。我认为被动式住宅组织不赞成在建筑围护结构内安装一个木火炉。
你还说你将在办公室里留下一张墨菲床。如果是一个大号床垫,它将需要一个66英寸宽度的机柜,当床出来的时候,床垫将投入到大约86“的房间。你将如何放置其他家具(书桌,椅子,梳妆台在房间里,在房间里,你可以在床上用房间用作办公室?
您是否使用架构软件对内部进行了任何计算机图像?
平面图
这是我送给你的楼上的设计。我试图保持一致在楼下的墙壁,以帮助轴承载荷,也使其更易于运行管道和管道所有主要墙。你原来的计划是不是太糟糕。主卫生间的5'10” 宽度是有点怪,但。为了适应更大尺寸的浴缸,你应该去到任何一个5'6” 或6’ 个宽度(我选6’ )。
我也试着对准在楼下的窗户楼上的窗户,但由于南卧室的窗户比它们下面的窗口,我决定排队卧室窗户的一侧,它下面的窗口的一侧小。它应该仍然期待在外观上美观大方。
正如你所看到的那样,我搬到了大厅的大厅。大厅也看起来相当宽,所以你可能会考虑使用双门进入主卧室,但如果你不喜欢单门仍然看起来很好。在主人套房中,步入式衣服壁橱有点小,但如果您在那里包含一个窗口(你真的需要一个),你会得到更多的存储和灵活性。然而,最大的变化是在主浴室。
将一个小亚麻衣柜夹在主浴室的外墙中并不能使其非常方便的其他两间卧室的乘客来检索床单或获得干净的毛巾。因此,我将亚麻衣柜搬到了楼梯头上的更好位置。主浴室也太狭隘,所以我将它扩大到9',让您在站在水槽时留出更多的空间。我还对齐两个内部卫生间墙壁,以将第二个口袋门安装到浴缸区域。这将允许某人在别人使用淋浴时使用厕所或洗手。第二个水槽和更多的亚麻储存也位于浴缸区域。在原始计划中,浴室窗口不应该悬挂浴缸的边缘或挤在沉没柜台上。浴室一直扩大,这不会发生。
我仍然没有兴奋的洗衣服(我认为它应该更大,并且有更多的柜台空间,一个带水槽的长台和滴水杆,但洗衣衣柜仍然工作。
我还有几个关于主楼的问题。
1.扫把间在哪里?
2.你是否打算在任何地方建立一个垃圾回收中心,用来回收厨房废料、纸制品、塑料、金属和玻璃?
3.你要如何以及在哪里给厨房的抽油烟机排气?
4.木火炉是否要位于客厅厨房的墙边(最可能的位置,并在平面图上显示为绿色)。如果是这样,你如何确保从前厅或厨房走来的人不会不小心撞到热炉子的角落?我知道许可必须考虑可燃物在定位任何木制火炉,但因为木制火炉伸出进房间至少3 '和你有几个循环路径传递正确的柴炉前的人(特别是儿童)可能误判他们的速度或距离他们在拐角处和运行。
内饰
这是我根据你提供的平面图上的尺寸制作的一些图片。确切的窗户尺寸可能是错误的,但我是根据它们与平面图上的房间尺寸的比例来设计的。
再保险:地板计划
嗨,斯科特,我不知道该说什么?一定要谢谢你!效果图和我预想的一模一样。很有帮助!
我已经上传了最终方案。与最初用于能源建模的计划有关的一些方面发生了变化。很遗憾,我没有时间像你在回复中那样详尽,但我可以试着触及你提到的几个方面。我认为移动主门是有道理的…容易可行。主卧的壁橱现在可以从浴室进入了。楼上的洗衣房要用墙围起来。门的大小还没有决定,但我们认为,如果有几扇带有不透明玻璃的大型悬挂推拉门,光线就会从洗衣房的窗户洒到走廊上。洗衣房已经重新布置过了。一个可堆叠的洗衣机烘干机将在西北角,然后较低的橱柜围绕房间到东南角。也会有高层内阁。 and a sink. The room will be much more functional for storage of a lot of stuff including laundry supplies, linens, etc.
我同意浴室的窗户。它已经改变了,现在会更好用了。
在新的平面图中,你可以看到楼梯下的入口现在可以从餐厅进入。这很可能会成为储藏室/扫帚间的一种小墙。
为了回收利用,下面的一个橱柜将有一个拉出的双垃圾筒。我们经常换衣服,在我们的棚子里有更大的容器。
抽油烟机是复杂的,被动式房屋。有几个问题。很多时候,房子是如此紧张,他们需要补充空气,通常是通过主动排气口。当抽油烟机打开时,控制电路将打开一个阻尼器在空气中,让...其他明智的,你的风险由柴炉进入空间吸吮一氧化碳......还有一个巨大的能量损失,因为你扔把所有的能量通过吹出来的窗口。具有良好的过滤器再循环罩有助于减少这部分浪费,而不是把它扔了。也有看中HRV抽油烟机,但它们很昂贵。
木炉很复杂。只要您在房屋中安装一氧化碳传感器并且燃烧室被密封,它们就会很好,因此它将空气直接从外部源直接到炉子。我们计划在图表中显示的位置。但是,它导致几个问题,交通是其中之一。在那个位置,我害怕它,尽管从能量建模的角度来看,通过信封的内部运行烟囱是有意义的。这个设置适用于一个故事的家。我将使用ICC Excel Chimney。他们的系统具有气密顶针,但是,如果烟囱通过第二级,则必须追逐并渗透到阁楼,必须使用阁楼辐射屏蔽和一堆使与阁楼连接的其他东西打开而不是气密。如果你经过外墙,这个问题被淘汰了,并且可以是气密的。 The other problem with the interior wall is that a 5" duct would have to be run under the slab and out through the foundation in order to provide make up air....there were too many uncertainties with this interior wall setup and I know it will work on an exterior wall so we moved it.
这就是说,炉子的外部覆盖在一个绝缘套件,不会得到像传统炉子....一样热
就到这里吧……我得去修房子了!!
最终方案
楼上当然看起来不错,不过我还是会把主浴室分成两个单独的区域这样你们两个就可以同时使用这个房间了。那里还有一条长长的室内走廊,没有自然光。
我对你的计划唯一的不满就是厨房。它的位置让主楼层感觉像.......分隔开来,创造了太多的循环通道,简单地穿过房间,让你可以到达其他房间。
只是为了好玩,这是我的最终计划。厨房就在mudroom的旁边。当你回家在冬季15袋杂货车的后面你不会想携带他们进了房子,穿过客厅,大厅,走进餐厅,抛售他们在餐桌上为了解决问题,然后把它在楼梯下的储藏室。
通过这个计划,扫帚壁橱和储藏室由后门是正确的。把杂货放在半岛上,把它们放在上面。快速简单。厨房在冰箱,炉子和水槽之间有很多柜台空间,半岛的洗碗机和大量的上柜子存放(也没有通过厨房工作三角形的主要循环路径)。餐厅现在,厨房和起居室距离南部的距离酒店提供长的景点。在餐厅和前进入之间,还可以通过窗户,允许光线和景观,通过空间和下面的大型餐具柜。
至于木炉,如果你一定要一个的话,我建议你买一个皂石炉。它不必是一个像tulikiv那样的固体皂石炉,但可以只是一个普通的金属炉与皂石外壳。与普通金属盒柴炉(升温很快,弹奏出一吨干热,然后快速冷却)皂石炉甚至提供了一个温和的热量在大部分的白天还是晚上(如果你应该遭遇它你不会被烧毁)。此外,由于你的炉子位于房子的另一端,你会得到一个又热又干的客厅。不会有太多的热量到达主楼层的其余部分(楼上可能也没有)。
在这个计划中,皂石炉放置在起居室和餐厅之间。如果你从未见过肥皂晶木炉,那么它们看起来像家具很好。如果它在房间中间出来,那将是一个美丽的焦点(即使不点亮),并为整个主楼提供温和的热量。
房屋的后出口可以是滑动玻璃门,如图所示(必须有用于被动房屋的滑动门),但如果你不喜欢那个想法,那么窗口和单门会起作用。
好吧,就是这样。我真的很喜欢分析你的房子。我希望你不要见怪。祝你好运与您的新版本。
再保险:平面图
斯科特,
非常感谢你的分析和效果图。我没有生气!根据你的意见,计划中有几处需要修改。我妻子和我一直在讨论主浴室和主卧室入口,缩短走廊。还有很多你提到的我们正在审查的东西。我希望其他GBA成员发现这个讨论有启发性!
我们选择的炉子是Walltherm由http://www.wallnoefer.it/en.html
它的输出功率约为15 kW,但只有2.4 kW左右的保温套件和红外玻璃。其余的能量(约12.6kW)通过加热水收集,然后存储在机械室内1000l的储罐中。分配将通过在拉德的trv操作的恒压循环rad系统进行。该系统还将配置为提供家用热水。这个炉子在新斯科舍省有一个“本地”分销商(pse .ca)。皂石模型是伟大的,但壁热炉是真正的客厅模型炉子,可在当地用于加热水(它是CSA批准的加拿大市场)。在设计的时候,没有办法把可再生能源添加到房子里,因为电网计量在这里是不可能的。有一个木火炉是增加一些可再生能源和减少对电网的依赖的好方法。
网络计量现在是可能的,我的申请提交了…更多内容将在稍后的博客中跟进…
更多关于Walltherm的信息
它看起来像Walltherm锅炉由一个叫做Wallnöfer的意大利公司制造。
有个网页提到了马萨诸塞州比利亚的一个住宅装置。安装费用为6495美元:
https://www.energysage.com/project/6229/walltherm-living-room-style-wood-gasification-boil/
制造商的联系信息:
WallnöferGmbH.
透明INDUSTRIALE
I - 39026普拉托allo stelvio (BZ)
博尔扎诺省的
意大利
电话。+39 0473 616361
传真。+ 39 0473 617141
http://www.wallnoefer.it/
(电子邮件保护)
挫折和代码
你把车库裱起来有多久了?如果还来得及你能把车库再往东挪10英尺吗?我这么问的原因是,与其把房子和车库之间的空间用作存放柴火的地方,不如把它变成一个通向朝南露台的封闭式门廊。我不知道纽芬兰在夏天的情况如何,但增加一个屏蔽门廊将是一个积极的福利(加上车库稍微远一点,你可以在客厅墙壁的东南角增加一扇窗户。
如果你把墨菲床放入办公室,你必须添加一个代码强制性窗口(自房间在技术上是一间卧室)?
你也可以考虑在楼上的走廊增加太阳隧道。与天窗不同的是,太阳隧道不允许大量的热量通过屋顶逃逸,同时仍然允许大量的自然光。
我看到你们有一个“遮阳”屋顶附加在南外墙,以保护主地板窗户免受过多的夏季阳光。这些结构可能很难正确地闪烁。你可以考虑建一个独立的藤架,把它放在离外墙大约6英寸的地方。你仍然可以使用藤架来获得遮阳的好处,但不必为了将遮阳屋顶固定在房子上而打断墙壁覆盖物或外部隔热层。
建筑物的信封
您会在所有外门和窗户下安装Sill Pans吗?
外墙是如何建造的?
你们用什么产品或方法在墙上做空气/湿气屏障?
你是如何将南露台连接到房子上的(或者它是一个混凝土露台)?
你是如何隔离和通风阁楼的?
回应斯科特威尔逊
斯科特,
这是一系列博客中的第二篇。就像他们过去在广播连续剧每集的结尾都会说的那样:“下周继续收听。”一切都会在适当的时候揭晓。
更多的来…
这是一个相当长的系列,我一个星期每周两次,有时写作。更多跟随!
调整
你好。我抽出根据提供的建筑图纸尺寸的主场更精确的版本,我有几个调整的,你要考虑。
包括墨菲床在你的主层办公室将使它很难使用房间作为办公室当床(也很难将任何其他房间里的家具如一张桌子、一个有抽屉的柜子,或者一把椅子)。既然折叠床的柜子通常是66英寸宽、24英寸深的,为什么不更进一步,在折叠床的两侧放置24英寸深的站立式衣柜,在办公室西墙上打造一面墙的橱柜呢?然后你可以把现有的壁橱区域改成一个壁龛,把桌子放在那里。你也可以在桌子上方安装浅壁柜,以增加储物空间。有了这种布局上的改变,你就可以在床放下的时候把房间用作办公室了。
我还建议你改变几次摇门的方向。机械房的门应该打开另一个方向,因为当你在那里做维修工作时,你很可能需要在机械房和车库之间走着去取工具。你不希望走到前厅,然后不得不关上机械室的门,以便绕过它,朝车库走去。
我记得你之前提到过你把盥洗室的门改成了一个口袋门,我已经展示过了。我想让你改变的另一扇门是从纱窗门廊到车库的那扇门,然后把它移到墙上一点,这样你就可以增加另一扇通向纱窗门廊的门。事实上,从餐厅到整栋房子的南侧只有一扇外门。通过纱窗门廊的第二扇外门,你可以从后院把东西(比如柴火)带进房子,而不必穿过整个房子或绕着房子的一侧走到前面。
我最后的建议是增加一个绝缘茶水间车库非易腐物品。我的第二个图显示的距离则需要当前移动以便在饭厅楼梯带来的杂货每个负载从汽车到厨房。这是相当的艰苦跋涉。你也可以考虑增加旁边的车库储藏室一个冷冻柜。
办公室图片
这里的办公室是什么样子的提议。一个选项对壁床的任一侧匹配衣柜,而另一个具有抽屉的具有上侧机壳上面在一侧上具有低的胸部。
登录或创建一个帐户来发表评论。
报名 登录